MÃ BẢN VẼ
                                        63048
                                        
                                        
                                    
                                    Hồ sơ thiết kế nhà phố 4 tầng hiện đại 7x17m
                                    
                                    
                                    
                                        
                                            Hồ sơ thiết kế nhà phố 3 tầng hiện đại (7mx17m) đầy đủ bản vẽ kiến trúc, kết cấu, điện nước và ảnh phối cảnh 3D
                                    
                                    
                                 
                             
                            
                                
                                    
                                        
                                        
                                        
                                        Ngày đăng: 29/10/2025 
                                        
                                            File download: 
                                            Hồ sơ thiết kế nhà phố 4 tầng hiện đại (7x17m).rar
                                        
                                        
                                            Dung lượng file: 
                                            5.7 MB
                                        
                                        Phong cách: Hiện đại
                                        Kích thước: Rộng 7m, Dài 17m, DT 119m2
                                     
                                 
                                
                                    
                                        CÔNG CỤ THIẾT KẾ:
                                        
                                                
                                            
                                                
                                                    
                                                    Autocad
                                                
 
                                            
                                                
                                                    
                                                    Sketchup
                                                
 
                                            
                                                
                                                    
                                                    3D Max
                                                
 
                                            
                                                
                                                    
                                                    Revit
                                                
 
                                            
                                                
                                                    
                                                    Khác...
                                                
 
                                            
                                                 
                                            
                                     
                                    
                                        CÁC HẠNG MỤC CỦA BẢN VẼ:
                                        
                                                
                                            
                                                
                                                    
                                                    Kiến trúc
                                                
 
                                            
                                                
                                                    
                                                    Kết cấu
                                                
 
                                            
                                                
                                                    
                                                    Điện
                                                
 
                                            
                                                
                                                    
                                                    Nước
                                                
 
                                            
                                                
                                                    
                                                    PCCC
                                                
 
                                            
                                                
                                                    
                                                    Phối cảnh
                                                
 
                                            
                                                
                                                    
                                                    Dự toán
                                                
 
                                            
                                                
                                                    
                                                    Tài liệu
                                                
 
                                            
                                                
                                                    
                                                    Khác...
                                                
 
                                            
                                                 
                                            
                                     
                                    
                                        
                                    
                                 
                             
                            
                            NGƯỜI ĐĂNG
                            
                                
                                    
                                        
                                        
                                            
                                                 Bản vẽ
                                                38
                                                Bản vẽ
                                                38
                                             
                                            
                                                 Bộ sưu tập
                                                0
                                                Bộ sưu tập
                                                0
                                             
                                            
                                                 Đánh giá (68)
                                                5/5
                                                Đánh giá (68)
                                                5/5
                                             
                                            
                                                 Ngày tham gia
                                                16/11/2024
                                                Ngày tham gia
                                                16/11/2024
                                             
                                         
                                     
                                 
                             
                            
                            Mô tả chi tiết
                            
                            
                                
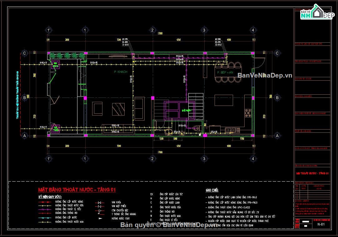
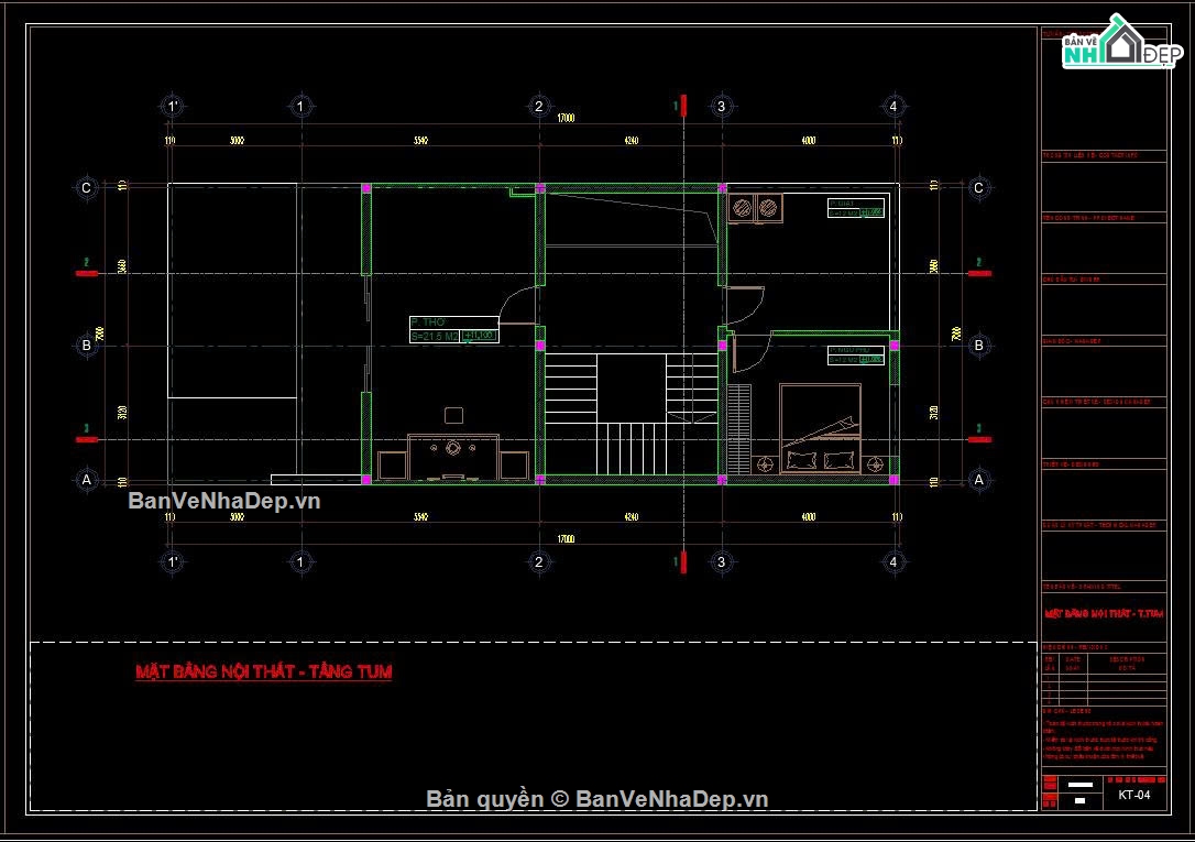
	Hồ sơ thiết kế nhà phố 4 tầng hiện đại (7mx17m) bao gồm:
	- Ảnh phối cảnh 3D công trình
	- Bản vẽ thiết kế kiến trúc
	- Bản vẽ thiết kế kết cấu
	- Bản vẽ thiết kế điện nước
                             
                            
                            
                            
                            
                            Bình luận (0)
                            
                            
                            
                            Đánh giá (1)
                            
                            
                            
                                
                                    
                                        
                                            
                                                ĐÁNH GIÁ TRUNG BÌNH
                                                5/5
                                                
                                                
                                                
                                                (
1 Nhận xét)
                                        
                                             
                                            
                                                
                                                Bản vẽ rất tốt (1)
                                                
                                                Bản vẽ tốt (0)
                                                
                                                Bản vẽ rất hay (0)
                                                
                                                Bản vẽ hay (0)
                                                
                                                Bình thường (0)
                                             
                                         
                                        
                                     
                                 
                                
                                        
                                            
                                            
                                                
                                                Bản vẽ rất tốt
                                                  
                                                 Đã đăng bản vẽ này
                                                Bản vẽ rất tốt và phù hợp để tham khảo