MÃ BẢN VẼ
63100
Hồ sơ thiết kế nhà phố 6 tầng tân cổ điển 4x10m
Hồ sơ thiết kế nhà phố 6 tầng tân cổ điển (4mx10m) đầy đủ bản vẽ kiến trúc, kết cấu, điện nước và ảnh phối cảnh 3D
Ngày đăng: 18/11/2025
File download:
Hồ sơ thiết kế nhà phố 6 tầng tân cổ điển (4mx10m).rar
Dung lượng file:
13,1 MB
Phong cách: Tân cổ điển
Kích thước: Rộng 4m, Dài 10m, DT 40m2
CÔNG CỤ THIẾT KẾ:

Autocad

Sketchup

3D Max

Revit

Khác...
CÁC HẠNG MỤC CỦA BẢN VẼ:

Kiến trúc

Kết cấu

Điện

Nước

PCCC

Phối cảnh

Dự toán

Tài liệu

Khác...
NGƯỜI ĐĂNG
Bản vẽ
40
Bộ sưu tập
0
Đánh giá (70)
5/5
Ngày tham gia
16/11/2024
Mô tả chi tiết
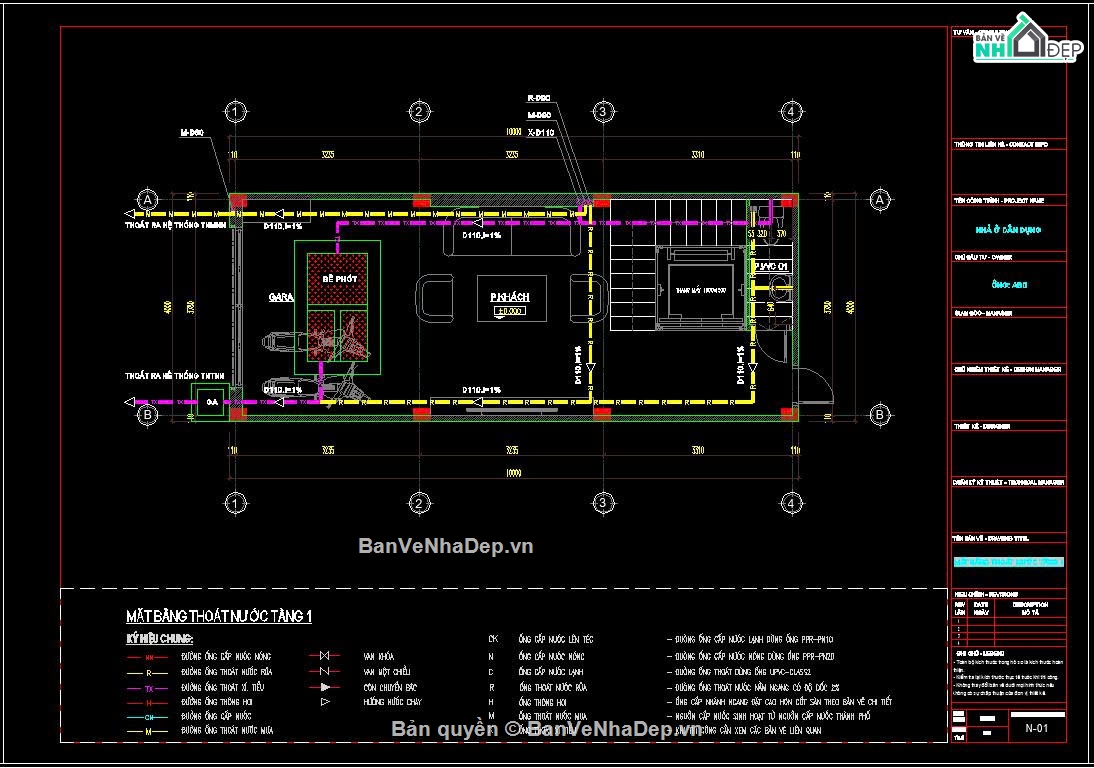
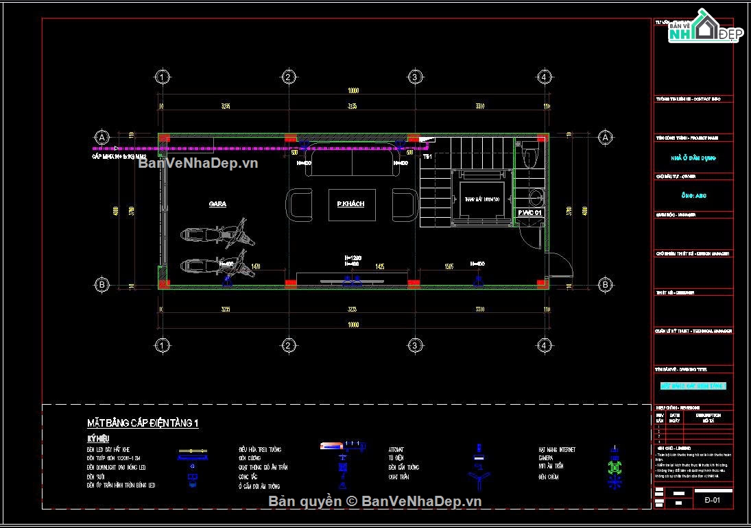
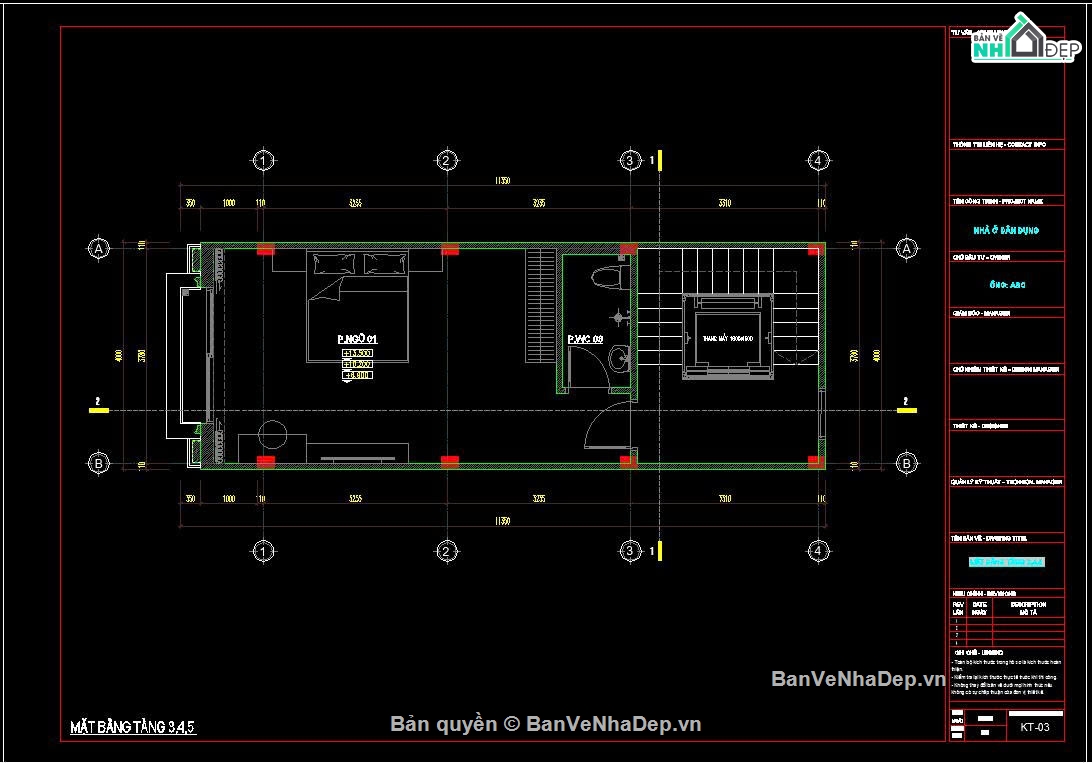
Hồ sơ thiết kế nhà phố 6 tầng tân cổ điển (4mx10m) bao gồm:
- Ảnh phối cảnh 3D công trình
- Bản vẽ thiết kế kiến trúc
- Bản vẽ thiết kế kết cấu
- Bản vẽ thiết kế điện nước
Bình luận (0)
Đánh giá (1)
ĐÁNH GIÁ TRUNG BÌNH
5/5
(
1 Nhận xét)
Bản vẽ rất tốt (1)
Bản vẽ tốt (0)
Bản vẽ rất hay (0)
Bản vẽ hay (0)
Bình thường (0)
Bản vẽ rất tốt
Đã đăng bản vẽ này
Bản vẽ rất tốt và phù hợp để tham khảo