MÃ BẢN VẼ
54990
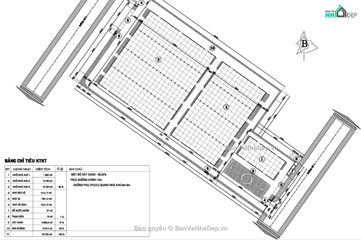
Hồ sơ thiết kế tổ hợp khu xưởng, kho (Kho 1: 1800m2, Kho 2:8748m2, Kho3:13.122m2) và các hạng mục phụ trợ khác
(
1 Nhận xét)
Viết đánh giá
Bình luận: 0
Download: 0
Lượt xem: 112
Hồ sơ thiết kế tổ hợp khu xưởng bao gồm Kho 1: 1800m2, Kho 2:8748m2, Kho3:13.122m2, nhà để xe, nhà bảo vệ, nhà vệ sinh, bể nước ngầm, trạm điện, cây xanh, sân đường
Ngày đăng: 01/6/2025
File download:
to hop khu xuong--1-001.zip
Dung lượng file:
19.2 MB
Phong cách: Hiện đại
Kích thước: Rộng 150m, Dài 305m, DT 45750m2
CÔNG CỤ THIẾT KẾ:

Autocad

Sketchup

3D Max

Revit

Khác...
CÁC HẠNG MỤC CỦA BẢN VẼ:

Kiến trúc

Kết cấu

Điện

Nước

PCCC

Phối cảnh

Dự toán

Tài liệu

Khác...
NGƯỜI ĐĂNG
Bản vẽ
20
Bộ sưu tập
0
Đánh giá (24)
5/5
Ngày tham gia
3/12/2023
Mô tả chi tiết
Hồ sơ thiết kế tổ hợp khu xưởng bao gồm Kho 1: 1800m2, Kho 2:8748m2, Kho3:13.122m2, nhà để xe, nhà bảo vệ, nhà vệ sinh, bể nước ngầm, trạm điện, cây xanh, sân đường
Bình luận (0)
Đánh giá (1)
ĐÁNH GIÁ TRUNG BÌNH
5/5
(
1 Nhận xét)
Bản vẽ rất tốt (1)
Bản vẽ tốt (0)
Bản vẽ rất hay (0)
Bản vẽ hay (0)
Bình thường (0)
Bản vẽ rất tốt
Đã đăng bản vẽ này
Bản vẽ rất tốt và phù hợp để tham khảo