Đăng nhập
Đăng kí
NẠP TIỀN
THƯ VIỆN BẢN VẼ
HỘI KIẾN TRÚC SƯ
ĐĂNG TIN & THẢO LUẬN
CÔNG CỤ
Autocad
Sketchup
3D Max
Revit
Khác...
DANH MỤC
Biệt thự
Lâu đài, dinh thự
Biệt thự 1 Tầng
Biệt thự 2 Tầng
Biệt thự 3 Tầng
Biệt thự Trên 3 Tầng
Nhà phố
Nhà phố 1 Tầng
Nhà phố 2 Tầng
Nhà phố 3 Tầng
Nhà phố 4 Tầng
Nhà phố Trên 4 Tầng
Nhà xưởng
Nội thất
Biệt thự
Nhà phố
Chung cư, Văn phòng
Cửa hàng, Quán
Nội thất khác...
Ngoại thất
Bản vẽ khác...
Nhà thờ, Đình chùa
Chung cư, Văn phòng
Công trình xã hội
Cửa hàng, Quán
Khách sạn
Nhà cấp 4
Bản vẽ khác...
BỘ SƯU TẬP
Tìm bản vẽ
Autocad
Sketchup
3D Max
Revit
Khác...
ĐĂNG BẢN VẼ
×
ĐĂNG NHẬP
Đăng nhập nhanh
Log in
Log in
Bạn chưa có tài khoản Banvenhadep.vn?
Đăng ký ngay
Email
*
Password
*
Mã khác
Quên mật khẩu?
Đăng nhập
Trang chủ
Nhà phố "Nhà phố Trên 4 Tầng"
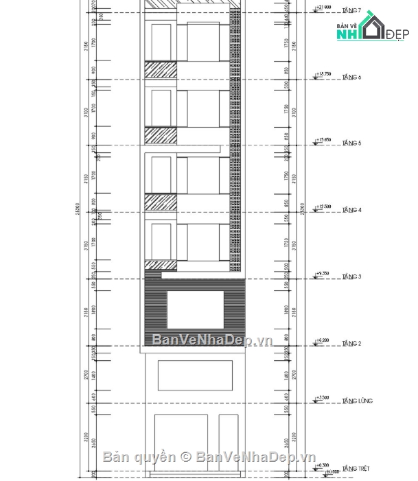
Hstk nhà dân 7 tầng 4.7x11.5m bản vẽ cad
MÃ BẢN VẼ
60014
Hstk nhà dân 7 tầng 4.7x11.5m bản vẽ cad
(
1 Nhận xét
)
Viết đánh giá
Bình luận:
0
Download:
0
Lượt xem:
36
Share gửi tới cho các bạn tham khảo hstk nhà dân 7 tầng 4.7x11.5m thiết kế
Danh mục:
Nhà phố
Nhà phố Trên 4 Tầng
Ngày đăng:
21/7/2025
File download:
.rar
Dung lượng file:
MB
Phong cách:
Hiện đại
Kích thước:
Rộng
4,7m
, Dài
11,5m
, DT
54,05m
2
CÔNG CỤ THIẾT KẾ:
Autocad
Sketchup
3D Max
Revit
Khác...
CÁC HẠNG MỤC CỦA BẢN VẼ:
Kiến trúc
Kết cấu
Điện
Nước
PCCC
Phối cảnh
Dự toán
Tài liệu
Khác...
NGƯỜI ĐĂNG
Lan Chi Arc
(Hạng vàng)
Xem
trang
Bản vẽ
356
Bộ sưu tập
0
Đánh giá (
458
)
5/5
Ngày tham gia
9/6/2025
Mô tả chi tiết
Công năng đầy đủ gồm:
tầng 1: phòng kinh doanh
tầng lửng: 1 phòng khách
tầng 2,3,4,5,6: mỗi tầng 1 phỏng ngủ + wc
tầng mái: phòng giặt + sân phơi
Bình luận (
0
)
BÌNH LUẬN
BÌNH LUẬN
Đánh giá (
1
)
ĐÁNH GIÁ TRUNG BÌNH
5
/5
(
1 Nhận xét
)
Bản vẽ rất tốt
(1)
Bản vẽ tốt
(0)
Bản vẽ rất hay
(0)
Bản vẽ hay
(0)
Bình thường
(0)
Chia sẻ nhận xét về bản vẽ
Viết nhận xét của bạn
Lan Chi Arc
Thời gian 23:17
10/8/2025
Bản vẽ rất tốt
Đã đăng bản vẽ này
Bản vẽ thiết tốt thích hợp để tham khảo
Hiển thị 20
Hiển thị 50
Tất cả
×
NẠP TIỀN DOWNLOAD NGAY
Bạn đang download:
[Mã bản vẽ
60014
]
Phí tải
100.000
đ
CHUYỂN KHOẢN
Bạn cần đăng nhập để tải bản vẽ qua chức năng này!
ĐĂNG NHẬP NGAY
Phí download
100.000
đ
DOWNLOAD
NGAY
Link download dự phòng
Bạn có bản vẽ hay
ĐĂNG
BÁN
NGAY
LƯU
VÀO
YÊU THÍCH
Báo
vi phạm
bản quyền
Gửi hỗ trợ - Báo lỗi
Gửi ngay
CHIA SẺ NHANH
(BẢN VẼ
60014
)
Gửi tới email bạn bè
TỪ KHÓA LIÊN QUAN
7 tầng
nhà phố 7 tầng
File cad nhà phố 7 tầng
Bản vẽ tương tự
BẢN VẼ
Nhà phố Trên 4 Tầng
55
File sketchup nhà phố 7 tầng 5x17.7m
20.000
đ
BẢN VẼ
Nhà phố 4 Tầng
322
Nhà phố 8x18 7 tầng full (Kiên trúc +kết cấu ) năm 2024
55.000
đ
BẢN VẼ
Nhà phố Trên 4 Tầng
353
Mẫu nhà phố 7 tầng 5.5 x 17.8 hiện đại
25.000
đ
BẢN VẼ
Chung cư, Văn phòng
764
Thiết kế căn hộ dịch vụ 7 tầng 9x14.2m, hồ bơi trên mái, phong cách tân cổ điển
250.000
đ
BẢN VẼ
Công trình xã hội
481
Full chia sẻ đồ án tốt nghiệp full trung tâm trung tâm y tế diện tích thiết kế 51.5x24 ,7 tầng(kiến trúc+kết cấu thép+móng+thuyết minh+tính toán)
100.000
đ
Gợi ý cho bạn
BẢN VẼ
Nhà phố 3 Tầng
27
Bản vẽ Cad full kiến trúc kết cấu điện nước mẫu nhà phố 3 tầng 1 tum kết hợp kinh doanh 5x19m
30.000
đ
BẢN VẼ
Nhà phố 3 Tầng
20
Bản vẽ CAD kiến trúc hoàn thiện mẫu nhà phố 3 tầng mái Thái 4.5x20m
10.000
đ
BẢN VẼ
Chung cư, Văn phòng
21
Bản vẽ CAD hệ Cơ chung cư BooYoung Hà Đông
15.000
đ
BẢN VẼ
Nhà phố 2 Tầng
25
Bản vẽ CAD full kiến trúc kết cấu nhà phố 2 tầng 7.5x15m (tầng 1 kinh doanh)
25.000
đ
BẢN VẼ
Nhà thờ, Đình chùa
20
Bản vẽ CAD hệ thống điện, điện nhẹ nhà máy ở Bắc Ninh
15.000
đ
HỖ TRỢ TRỰC TUYẾN