MÃ BẢN VẼ
60015
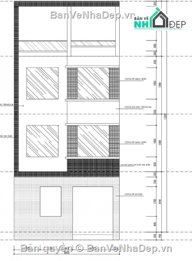
Hstk nhà ở 4 tầng kích thước 6x7.5m autocad
Gửi đến gửi tới cho anh chị tham khảo bộ hstk nhà ở 4 tầng kích thước 6x7.5m cad, bản vẽ kiến trúc, kết cấu
Ngày đăng: 21/7/2025
File download:
.rar
Dung lượng file:
MB
Phong cách: Hiện đại
Kích thước: Rộng 6m, Dài 7,5m, DT 45m2
CÔNG CỤ THIẾT KẾ:

Autocad

Sketchup

3D Max

Revit

Khác...
CÁC HẠNG MỤC CỦA BẢN VẼ:

Kiến trúc

Kết cấu

Điện

Nước

PCCC

Phối cảnh

Dự toán

Tài liệu

Khác...
NGƯỜI ĐĂNG
Bản vẽ
356
Bộ sưu tập
0
Đánh giá (458)
5/5
Ngày tham gia
9/6/2025
Mô tả chi tiết
Công năng bao gồm:ý tưởng bản vẽ nội thất
tầng 1: phòng bếp, phòng khách
tầng 2: phỏng ngủ, phòng làm việc, nhà vệ sinh
tầng 3: 2 phòng ngủ + nhà vệ sinh
tầng 4: phòng thờ, sân thượng, giặt phơi
Bình luận (0)
Đánh giá (1)
ĐÁNH GIÁ TRUNG BÌNH
5/5
(
1 Nhận xét)
Bản vẽ rất tốt (1)
Bản vẽ tốt (0)
Bản vẽ rất hay (0)
Bản vẽ hay (0)
Bình thường (0)
Bản vẽ rất tốt
Đã đăng bản vẽ này
Bản vẽ thiết tốt thích hợp để tham khảo