MÃ BẢN VẼ
                                        63002
                                        
                                        
                                    
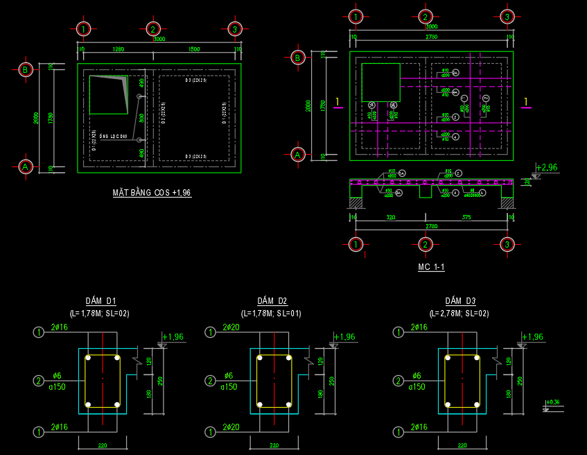
                                    Kết cấu bể lọc nước chuẩn bản vẽ
                                    
                                    
                                    
                                        
                                            File “kết cấu bể lọc nước” bao file cad bản vẽ đầy đủ cấu tạo bể lọc nước dùng trong công trình dân dụng và công nghiệp, thể hiện đầy đủ móng, tường, sàn, dầm, thép gia cường, ống dẫn và đầy đủ kỹ
                                    
                                    
                                 
                             
                            
                                
                                    
                                        
                                        
                                        
                                        Ngày đăng: 23/10/2025 
                                        
                                            File download: 
                                            10.BE LOC NUOC.dwg
                                        
                                        
                                            Dung lượng file: 
                                            284 KB
                                        
                                        Phong cách: Hiện đại
                                        Kích thước: ...
                                     
                                 
                                
                                    
                                        CÔNG CỤ THIẾT KẾ:
                                        
                                                
                                            
                                                
                                                    
                                                    Autocad
                                                
 
                                            
                                                
                                                    
                                                    Sketchup
                                                
 
                                            
                                                
                                                    
                                                    3D Max
                                                
 
                                            
                                                
                                                    
                                                    Revit
                                                
 
                                            
                                                
                                                    
                                                    Khác...
                                                
 
                                            
                                                 
                                            
                                     
                                    
                                        CÁC HẠNG MỤC CỦA BẢN VẼ:
                                        
                                                
                                            
                                                
                                                    
                                                    Kiến trúc
                                                
 
                                            
                                                
                                                    
                                                    Kết cấu
                                                
 
                                            
                                                
                                                    
                                                    Điện
                                                
 
                                            
                                                
                                                    
                                                    Nước
                                                
 
                                            
                                                
                                                    
                                                    PCCC
                                                
 
                                            
                                                
                                                    
                                                    Phối cảnh
                                                
 
                                            
                                                
                                                    
                                                    Dự toán
                                                
 
                                            
                                                
                                                    
                                                    Tài liệu
                                                
 
                                            
                                                
                                                    
                                                    Khác...
                                                
 
                                            
                                                 
                                            
                                     
                                    
                                        
                                    
                                 
                             
                            
                            NGƯỜI ĐĂNG
                            
                                
                                    
                                        
                                        
                                            
                                                 Bản vẽ
                                                7
                                                Bản vẽ
                                                7
                                             
                                            
                                                 Bộ sưu tập
                                                0
                                                Bộ sưu tập
                                                0
                                             
                                            
                                                 Đánh giá (7)
                                                5/5
                                                Đánh giá (7)
                                                5/5
                                             
                                            
                                                 Ngày tham gia
                                                26/10/2022
                                                Ngày tham gia
                                                26/10/2022
                                             
                                         
                                     
                                 
                             
                            
                            Mô tả chi tiết
                            
                            
                                
	file “kết cấu bể lọc nước” bao file cad bản vẽ đầy đủ cấu tạo bể lọc nước dùng trong công trình dân dụng và công nghiệp, thể hiện đầy đủ móng, tường, sàn, dầm, thép gia cường, ống dẫn và đầy đủ kỹ
                             
                            
                            
                            
                            
                            Bình luận (0)
                            
                            
                            
                            Đánh giá (1)
                            
                            
                            
                                
                                    
                                        
                                            
                                                ĐÁNH GIÁ TRUNG BÌNH
                                                5/5
                                                
                                                
                                                
                                                (
1 Nhận xét)
                                        
                                             
                                            
                                                
                                                Bản vẽ rất tốt (1)
                                                
                                                Bản vẽ tốt (0)
                                                
                                                Bản vẽ rất hay (0)
                                                
                                                Bản vẽ hay (0)
                                                
                                                Bình thường (0)
                                             
                                         
                                        
                                     
                                 
                                
                                        
                                            
                                            
                                                
                                                Bản vẽ rất tốt
                                                  
                                                 Đã mua bản vẽ tại Banvenhadep.vn
                                                Bản vẽ thiết tốt thích hợp để tham khảo