MÃ BẢN VẼ
63006

Lan can - mái kính hồ sơ

  (1 Nhận xét)     Viết đánh giá        0     0     67

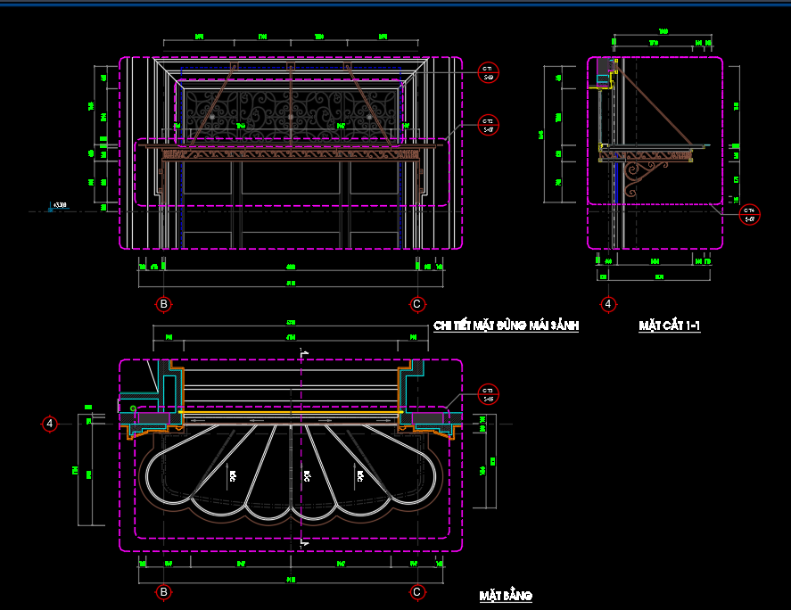
File “lan can mái sảnh kính” hạng mục bản vẽ hồ sơ đầy đủ cấu tạo lan can kính cho khu vực mái sảnh, thể hiện rõ khung thép, pad liên kết, tay vịn inox, chân trụ, bulông neo và tấm kính cường lực. hồ sơ t

Ngày đăng: 23/10/2025
File download: 02.LAN CAN MAI SANH.dwg
Dung lượng file: 800 KB
Phong cách: Hiện đại
Kích thước: ...
CÔNG CỤ THIẾT KẾ:
Autocad
Sketchup
3D Max
Revit
Khác...
CÁC HẠNG MỤC CỦA BẢN VẼ:
Kiến trúc
Kết cấu
Điện
Nước
PCCC
Phối cảnh
Dự toán
Tài liệu
Khác...

NGƯỜI ĐĂNG
(Hạng vàng)
Xem trang
bản vẽ nhà
Bản vẽ
7
bộ sưu tập bản vẽ nhà
Bộ sưu tập
0
đánh giá mẫu bản vẽ
Đánh giá (7)
5/5
ngày tham gia bản vẽ nhà đẹp
Ngày tham gia
26/10/2022

Mô tả chi tiết

file “lan can mái sảnh kính” danh mục hồ sơ đầy đủ cấu tạo lan can kính cho khu vực mái sảnh, thể hiện rõ khung thép, pad liên kết, tay vịn inox, chân trụ, bulông neo và tấm kính cường lực. hồ sơ thể hiện tỉ mỉ từng đầy đủ lắp đặt, phù hợp cho bản vẽ và thi công các công trình sang trọng như nhà ở, biệt thự, khách sạn, hoặc trung tâm thương mại, đảm bảo an toàn, thẩm mỹ và độ bền lâu dài.

 
 

Bình luận (0)


Đánh giá (1)

ĐÁNH GIÁ TRUNG BÌNH
5/5

(1 Nhận xét)
Bản vẽ rất tốt (1)
Bản vẽ tốt (0)
Bản vẽ rất hay (0)
Bản vẽ hay (0)
Bình thường (0)
Chia sẻ nhận xét về bản vẽ
 Viết nhận xét của bạn
Hùng Trương
Thời gian 08:48
25/10/2025
Bản vẽ rất tốt   
 Đã đăng bản vẽ này
Bản vẽ thiết tốt thích hợp để tham khảo
HỖ TRỢ TRỰC TUYẾN