MÃ BẢN VẼ
                                        45777
                                        
                                        
                                    
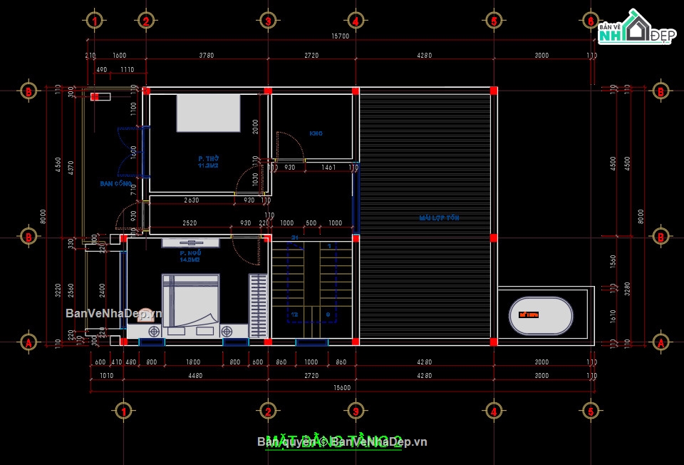
                                    Mẫu bản vẽ mẫu nhà 2 tầng mái lệch 8x15.5m
                                    
                                        
                                            
                                              (
1 Nhận xét)   
                                        
 Viết đánh giá     
                                          Bình luận: 0
                                                Download: 1
                                                Lượt xem: 254
                                         
                                     
                                    
                                    
                                        
                                            Mẫu bản vẽ mẫu bản vẽ mẫu full (có model sketchup) nhà 2 tầng mái lệch gửi các bạn tham khảo!
                                    
                                    
                                 
                             
                            
                                
                                    
                                        
                                        
                                        
                                        Ngày đăng: 08/3/2024 
                                        
                                            File download: 
                                            85. Nhà 2 tầng mái lệch 8x15.6m.rar
                                        
                                        
                                            Dung lượng file: 
                                            176 MB
                                        
                                        Phong cách: Hiện đại
                                        Kích thước: Rộng 8m, Dài 15,5m, DT 124m2
                                     
                                 
                                
                                    
                                        CÔNG CỤ THIẾT KẾ:
                                        
                                                
                                            
                                                
                                                    
                                                    Autocad
                                                
 
                                            
                                                
                                                    
                                                    Sketchup
                                                
 
                                            
                                                
                                                    
                                                    3D Max
                                                
 
                                            
                                                
                                                    
                                                    Revit
                                                
 
                                            
                                                
                                                    
                                                    Khác...
                                                
 
                                            
                                                 
                                            
                                     
                                    
                                        CÁC HẠNG MỤC CỦA BẢN VẼ:
                                        
                                                
                                            
                                                
                                                    
                                                    Kiến trúc
                                                
 
                                            
                                                
                                                    
                                                    Kết cấu
                                                
 
                                            
                                                
                                                    
                                                    Điện
                                                
 
                                            
                                                
                                                    
                                                    Nước
                                                
 
                                            
                                                
                                                    
                                                    PCCC
                                                
 
                                            
                                                
                                                    
                                                    Phối cảnh
                                                
 
                                            
                                                
                                                    
                                                    Dự toán
                                                
 
                                            
                                                
                                                    
                                                    Tài liệu
                                                
 
                                            
                                                
                                                    
                                                    Khác...
                                                
 
                                            
                                                 
                                            
                                     
                                    
                                        
                                    
                                 
                             
                            
                            NGƯỜI ĐĂNG
                            
                                
                                    
                                        
                                        
                                            
                                                
                                                Bản vẽ
                                                9
                                             
                                            
                                                
                                                Bộ sưu tập
                                                0
                                             
                                            
                                                
                                                Đánh giá (12)
                                                5/5
                                             
                                            
                                                
                                                Ngày tham gia
                                                16/3/2021
                                             
                                         
                                     
                                 
                             
                            
                            Mô tả chi tiết
                            
                            
                                
	thiết kế nhà 2 tầng mái lệch công năng các tầng như sau: (file dwg + sketchup)
	- tầng 1: sân trước, phòng khách, 02 phòng ngủ, 01 wc, phòng bếp + ăn, cầu thang bộ
	- tầng 2: phòng thờ, 01 phòng ngủ, kho, tum bể nước
	hồ sơ bao gồm: 
	- kiến trúc:
	    + phần phương án (đủ): mặt bằng, mặt cắt, mặt đứng.
	    + phần đầy đủ (đủ): đầy đủ mặt đứng, đầy đủ cửa, mặt bằng trần, mặt bằng lát nền, đầy đủ vệ sinh
	- kết cấu
	- điện nước
                             
                            
                            
                            
                            
                            Bình luận (0)
                            
                            
                            
                            Đánh giá (1)
                            
                            
                            
                                
                                    
                                        
                                            
                                                ĐÁNH GIÁ TRUNG BÌNH
                                                5/5
                                                
                                                
                                                
                                                (
1 Nhận xét)
                                        
                                             
                                            
                                                
                                                Bản vẽ rất tốt (1)
                                                
                                                Bản vẽ tốt (0)
                                                
                                                Bản vẽ rất hay (0)
                                                
                                                Bản vẽ hay (0)
                                                
                                                Bình thường (0)
                                             
                                         
                                        
                                     
                                 
                                
                                        
                                            
                                                
                                            
                                                Hoàng
                                                
                                                    Thời gian 23:10
                                                    5/4/2024
                                                
                                             
                                                
                                             
                                            
                                                
                                                Bản vẽ rất tốt
                                                  
                                                 Đã mua bản vẽ tại Banvenhadep.vn
                                                Bản vẽ thiết tốt thích hợp để tham khảo