Đăng nhập
Đăng kí
NẠP TIỀN
THƯ VIỆN BẢN VẼ
HỘI KIẾN TRÚC SƯ
ĐĂNG TIN & THẢO LUẬN
CÔNG CỤ
Autocad
Sketchup
3D Max
Revit
Khác...
DANH MỤC
Biệt thự
Lâu đài, dinh thự
Biệt thự 1 Tầng
Biệt thự 2 Tầng
Biệt thự 3 Tầng
Biệt thự Trên 3 Tầng
Nhà phố
Nhà phố 1 Tầng
Nhà phố 2 Tầng
Nhà phố 3 Tầng
Nhà phố 4 Tầng
Nhà phố Trên 4 Tầng
Nhà xưởng
Nội thất
Biệt thự
Nhà phố
Chung cư, Văn phòng
Cửa hàng, Quán
Nội thất khác...
Ngoại thất
Bản vẽ khác...
Nhà thờ, Đình chùa
Chung cư, Văn phòng
Công trình xã hội
Cửa hàng, Quán
Khách sạn
Nhà cấp 4
Bản vẽ khác...
BỘ SƯU TẬP
Tìm bản vẽ
Autocad
Sketchup
3D Max
Revit
Khác...
ĐĂNG BẢN VẼ
×
ĐĂNG NHẬP
Đăng nhập nhanh
Log in
Log in
Bạn chưa có tài khoản Banvenhadep.vn?
Đăng ký ngay
Email
*
Password
*
Mã khác
Quên mật khẩu?
Đăng nhập
Trang chủ
Biệt thự "Biệt thự 2 Tầng"
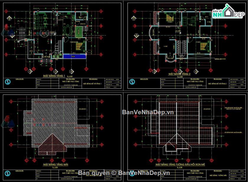
Mẫu biệt thự 2 tầng diện tích xây dựng 10x10m
MÃ BẢN VẼ
60406
Mẫu biệt thự 2 tầng diện tích xây dựng 10x10m
(
1 Nhận xét
)
Viết đánh giá
Bình luận:
0
Download:
0
Lượt xem:
50
Hồ sơ mẫu thi công mẫu biệt thự 2 tầng diện tích 10x10m gửi các bạn tham khảo
Danh mục:
Biệt thự
Biệt thự 2 Tầng
Ngày đăng:
31/7/2025
File download:
.rar
Dung lượng file:
MB
Phong cách:
Hiện đại
Kích thước:
Rộng
10m
, Dài
10m
, DT
100m
2
CÔNG CỤ THIẾT KẾ:
Autocad
Sketchup
3D Max
Revit
Khác...
CÁC HẠNG MỤC CỦA BẢN VẼ:
Kiến trúc
Kết cấu
Điện
Nước
PCCC
Phối cảnh
Dự toán
Tài liệu
Khác...
NGƯỜI ĐĂNG
Thu
(Hạng vàng)
Xem
trang
Bản vẽ
185
Bộ sưu tập
0
Đánh giá (
515
)
5/5
Ngày tham gia
27/3/2025
Mô tả chi tiết
File cad kiến trúc
Bình luận (
0
)
BÌNH LUẬN
BÌNH LUẬN
Đánh giá (
1
)
ĐÁNH GIÁ TRUNG BÌNH
5
/5
(
1 Nhận xét
)
Bản vẽ rất tốt
(1)
Bản vẽ tốt
(0)
Bản vẽ rất hay
(0)
Bản vẽ hay
(0)
Bình thường
(0)
Chia sẻ nhận xét về bản vẽ
Viết nhận xét của bạn
Thu
Thời gian 23:19
10/8/2025
Bản vẽ rất tốt
Đã đăng bản vẽ này
Bản vẽ thiết tốt thích hợp để tham khảo
Hiển thị 20
Hiển thị 50
Tất cả
×
NẠP TIỀN DOWNLOAD NGAY
Bạn đang download:
[Mã bản vẽ
60406
]
Phí tải
100.000
đ
CHUYỂN KHOẢN
Bạn cần đăng nhập để tải bản vẽ qua chức năng này!
ĐĂNG NHẬP NGAY
Phí download
100.000
đ
DOWNLOAD
NGAY
Link download dự phòng
Bạn có bản vẽ hay
ĐĂNG
BÁN
NGAY
LƯU
VÀO
YÊU THÍCH
Báo
vi phạm
bản quyền
Gửi hỗ trợ - Báo lỗi
Gửi ngay
CHIA SẺ NHANH
(BẢN VẼ
60406
)
Gửi tới email bạn bè
TỪ KHÓA LIÊN QUAN
Biệt thự 2 tầng
File biệt thự 2 tầng
cad biệt thự 2 tầng
Bản vẽ tương tự
BẢN VẼ
Biệt thự 2 Tầng
40
Mẫu biệt thự 2 tầng 15.5x7m bản vẽ cad
80.000
đ
BẢN VẼ
Biệt thự 2 Tầng
48
Bản vẽ nhà biệt thự 2 tầng 33.9x22.7m có hồ bơi chi tiết kiến trú, kết cấu, etabs
39.000
đ
BẢN VẼ
Biệt thự 2 Tầng
38
Biệt thự 2 tầng diện tích 23x25m
250.000
đ
BẢN VẼ
Biệt thự 2 Tầng
63
Mẫu biệt thự 2 tầng kt 8x18m
199.000
đ
BẢN VẼ
Biệt thự 2 Tầng
67
Cad và su mẫu biệt thự mái nhật 2 tầng diện tích 13x10m
50.000
đ
Gợi ý cho bạn
BẢN VẼ
Nhà thờ, Đình chùa
814
Mẫu file cad file cad kiến trúc nhà thờ họ rất đẹp, được sử dụng nhiều trong file cad
5.000
đ
BẢN VẼ
Công trình xã hội
995
File kiến trúc quy trình xây dựng hạ tầng khu nhà quản trang rất đẹp
10.000
đ
BẢN VẼ
Nhà thờ, Đình chùa
1627
Mẫu công trình phật bà Quan Âm rất đẹp
10.000
đ
BẢN VẼ
Nhà thờ, Đình chùa
1615
File autocad thiết kế nhà thờ họ Đào hạng mục kiến trúc
20.000
đ
BẢN VẼ
Nhà thờ, Đình chùa
809
File autocad thiết kế nhà thờ họ KT 10x14m đã thi công xong
20.000
đ
HỖ TRỢ TRỰC TUYẾN