MÃ BẢN VẼ
60321
Mẫu nhà ngang kt 10x7m 2 tầng đẹp
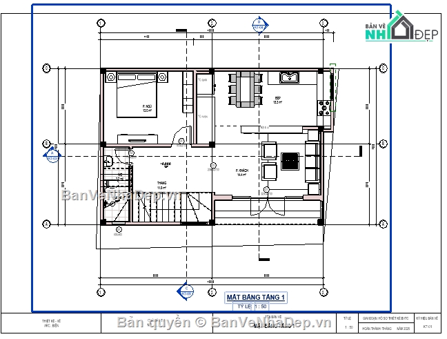
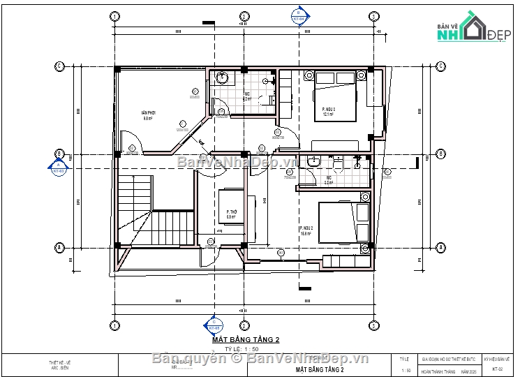
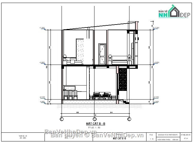
Bản vẽ phương án thiết kế nhà ngang kt 10mx7mx2 tầng với công năng 1 phòng khách, 1 phòng bếp ăn + 3 phòng ngủ, 1 phòng thờ, 1 sân phơi, khu vệ sinh chung và riêng, ô thang lên tầng
Ngày đăng: 29/7/2025
File download:
10x7mx2 tang.rvt
Dung lượng file:
181 MB
Phong cách: Hiện đại
Kích thước: Rộng 7m, Dài 10m, DT 70m2
CÔNG CỤ THIẾT KẾ:

Autocad

Sketchup

3D Max

Revit

Khác...
CÁC HẠNG MỤC CỦA BẢN VẼ:

Kiến trúc

Kết cấu

Điện

Nước

PCCC

Phối cảnh

Dự toán

Tài liệu

Khác...
NGƯỜI ĐĂNG
Bản vẽ
55
Bộ sưu tập
0
Đánh giá (67)
5/5
Ngày tham gia
2/3/2022
Mô tả chi tiết
Bản vẽ revit kiến trúc phương án nhà ngang 2 tầng kích thước xây dựng 10m x 7m x 2 tầng
- Công năng tầng 1 hạng mục bản vẽ phòng khách, 1 bếp ăn, 1 phòng ngủ, 1 khu vệ sinh chung, thang lên tầng
- Công năng tầng 2 hạng mục bản vẽ 2 phòng ngủ, 1 khu sân phơi, 1 phòng thờ, 1 khu vệ sinh chung, 1 vệ sinh khép kín
- Phong cách đơn giản và tinh tế phù hợp với thiết kế nhà ngang có diện tích nhỏ
- Bản vẽ bao hạng mục bản vẽ mặt bằng, mặt đứng, mặt cắt chính. đầy đủ thì ae tự triển khai trong mô hình
Bình luận (0)
Đánh giá (1)
ĐÁNH GIÁ TRUNG BÌNH
5/5
(
1 Nhận xét)
Bản vẽ rất tốt (1)
Bản vẽ tốt (0)
Bản vẽ rất hay (0)
Bản vẽ hay (0)
Bình thường (0)
Bản vẽ rất tốt
Đã đăng bản vẽ này
Bản vẽ thiết tốt thích hợp để tham khảo