MÃ BẢN VẼ
63289

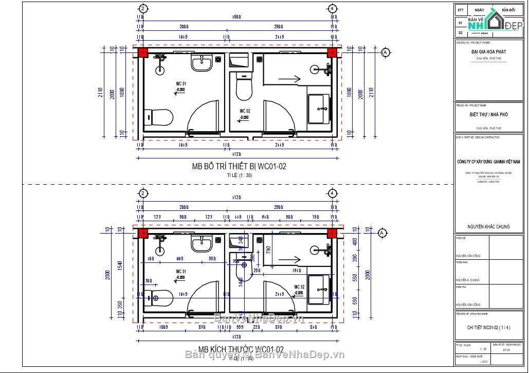
Mẫu revit biệt thự 2 tầng 1 tum phong cách hiện đại

  (1 Nhận xét)     Viết đánh giá        0     0     17

Mẫu revit biệt thự 2 tầng 1 tum phong cách hiện đại có mái kính và cầu thang xoắn

Ngày đăng: 23/12/2025
File download: nhà pc hiện đại 2,5 tầng 9x13m.rar
Dung lượng file: 275.18MB
Phong cách: Hiện đại
Kích thước: Rộng 9m, Dài 13m, DT 117m2
CÔNG CỤ THIẾT KẾ:
Autocad
Sketchup
3D Max
Revit
Khác...
CÁC HẠNG MỤC CỦA BẢN VẼ:
Kiến trúc
Kết cấu
Điện
Nước
PCCC
Phối cảnh
Dự toán
Tài liệu
Khác...

NGƯỜI ĐĂNG
(Hạng vàng)
Xem trang
bản vẽ nhà
Bản vẽ
193
bộ sưu tập bản vẽ nhà
Bộ sưu tập
0
đánh giá mẫu bản vẽ
Đánh giá (226)
5/5
ngày tham gia bản vẽ nhà đẹp
Ngày tham gia
2/4/2024

Mô tả chi tiết

Mẫu revit biệt thự 2 tầng 1 tum phong cách hiện đại có mái kính và cầu thang xoắn

quy mô xây dựng 9x13m

Bình luận (0)


Đánh giá (1)

ĐÁNH GIÁ TRUNG BÌNH
5/5

(1 Nhận xét)
Bản vẽ rất tốt (1)
Bản vẽ tốt (0)
Bản vẽ rất hay (0)
Bản vẽ hay (0)
Bình thường (0)
Chia sẻ nhận xét về bản vẽ
 Viết nhận xét của bạn
TungARC
Thời gian 15:16
23/12/2025
Bản vẽ rất tốt   
 Đã mua bản vẽ tại Banvenhadep.vn
Bản vẽ rất tốt và phù hợp để tham khảo
HỖ TRỢ TRỰC TUYẾN