MÃ BẢN VẼ
63301

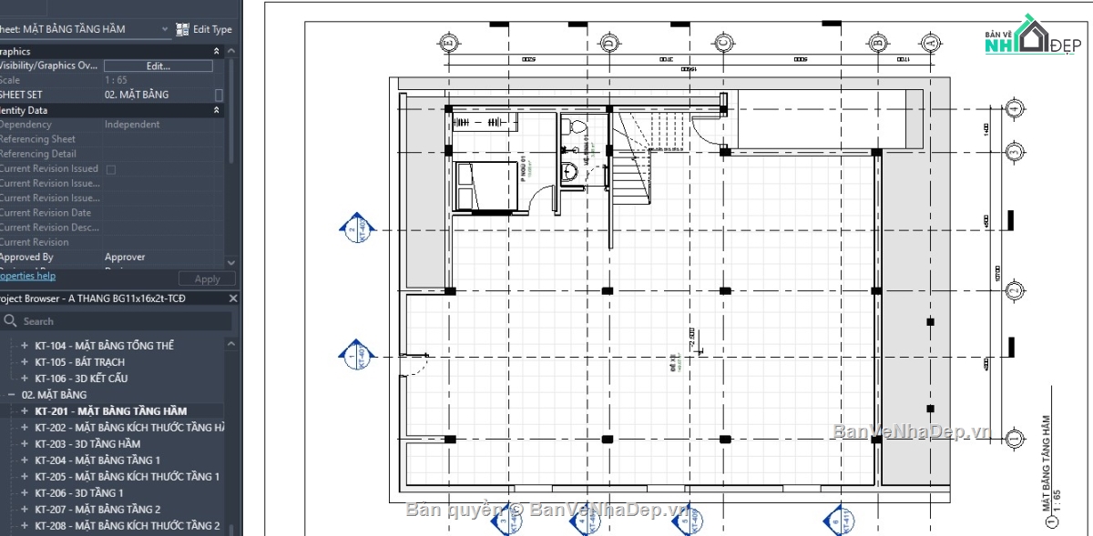
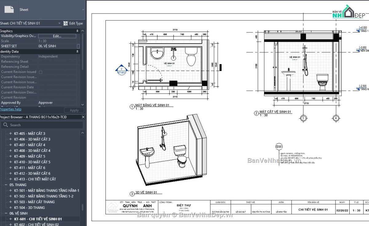
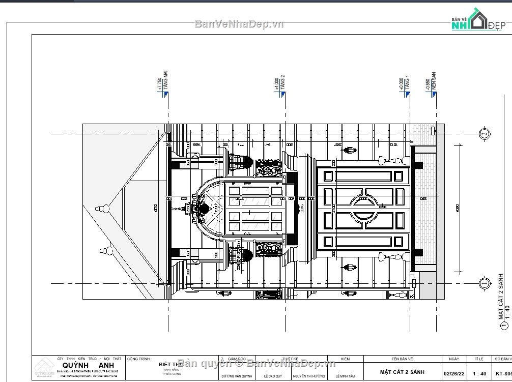
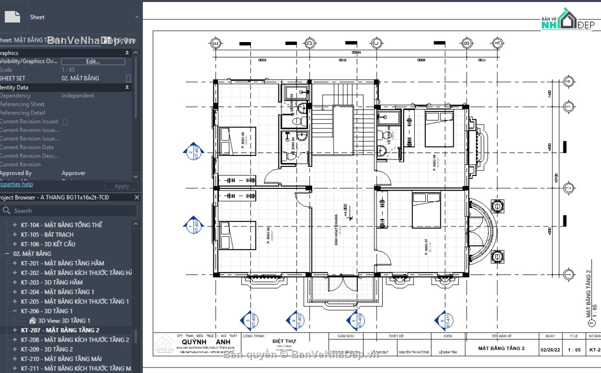
Mẫu revit biệt thự 2 tầng phong cách tân cổ điển 11x16m (đầy đủ trình bày)

  (1 Nhận xét)     Viết đánh giá        0     0     17

Mẫu revit biệt thự 2 tầng phong cách tân cổ điển 11x16m rất đẹp, có tầng hầm

Ngày đăng: 24/12/2025
File download: A THANG BG11x16x2t-TCĐ.rar
Dung lượng file: 127.84 MB
Phong cách: Tân cổ điển
Kích thước: Rộng 11m, Dài 16m, DT 176m2
CÔNG CỤ THIẾT KẾ:
Autocad
Sketchup
3D Max
Revit
Khác...
CÁC HẠNG MỤC CỦA BẢN VẼ:
Kiến trúc
Kết cấu
Điện
Nước
PCCC
Phối cảnh
Dự toán
Tài liệu
Khác...

NGƯỜI ĐĂNG
(Hạng vàng)
Xem trang
bản vẽ nhà
Bản vẽ
193
bộ sưu tập bản vẽ nhà
Bộ sưu tập
0
đánh giá mẫu bản vẽ
Đánh giá (229)
5/5
ngày tham gia bản vẽ nhà đẹp
Ngày tham gia
2/4/2024

Mô tả chi tiết

Mẫu revit biệt thự 2 tầng phong cách tân cổ điển đầy đủ trình bày dàn trang chi tiết, quy mô xây dựng 2 tầng 11x16m rất đẹp, có tầng hầm

Bình luận (0)


Đánh giá (1)

ĐÁNH GIÁ TRUNG BÌNH
5/5

(1 Nhận xét)
Bản vẽ rất tốt (1)
Bản vẽ tốt (0)
Bản vẽ rất hay (0)
Bản vẽ hay (0)
Bình thường (0)
Chia sẻ nhận xét về bản vẽ
 Viết nhận xét của bạn
TungARC
Thời gian 16:31
24/12/2025
Bản vẽ rất tốt   
 Đã đăng bản vẽ này
Bản vẽ rất tốt và phù hợp để tham khảo
HỖ TRỢ TRỰC TUYẾN