MÃ BẢN VẼ
63184

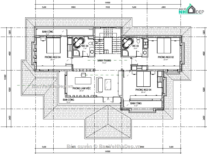
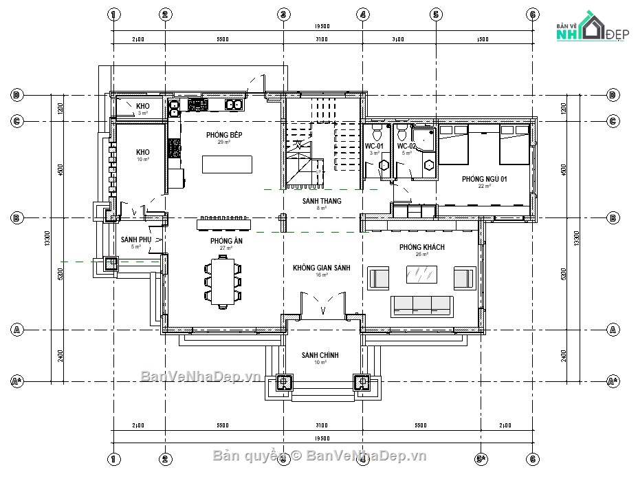
Mẫu revit biệt thự 3 tầng 13x20m phong cách Nhật

  (1 Nhận xét)     Viết đánh giá        0     0     4

Mẫu revit biệt thự 3 tầng kích thước 13x20m phong cách Nhật (trình bày dàn trang chi tiết)

Ngày đăng: 03/12/2025
File download: nhà 3 tầng phong cách Nhật 13x20m.rar
Dung lượng file: 163 MB
Phong cách: Hiện đại
Kích thước: Rộng 13m, Dài 20m, DT 260m2
CÔNG CỤ THIẾT KẾ:
Autocad
Sketchup
3D Max
Revit
Khác...
CÁC HẠNG MỤC CỦA BẢN VẼ:
Kiến trúc
Kết cấu
Điện
Nước
PCCC
Phối cảnh
Dự toán
Tài liệu
Khác...

NGƯỜI ĐĂNG
(Hạng vàng)
Xem trang
bản vẽ nhà
Bản vẽ
109
bộ sưu tập bản vẽ nhà
Bộ sưu tập
0
đánh giá mẫu bản vẽ
Đánh giá (127)
5/5
ngày tham gia bản vẽ nhà đẹp
Ngày tham gia
2/4/2024

Mô tả chi tiết

Mẫu revit biệt thự 3 tầng kích thước 13x20m phong cách Nhật (trình bày dàn trang bổ chi tiết đầy đủ) rất phù hợp để thi công hoặc cho các bạn tham khảo cách trình bày revit

Bình luận (0)


Đánh giá (1)

ĐÁNH GIÁ TRUNG BÌNH
5/5

(1 Nhận xét)
Bản vẽ rất tốt (1)
Bản vẽ tốt (0)
Bản vẽ rất hay (0)
Bản vẽ hay (0)
Bình thường (0)
Chia sẻ nhận xét về bản vẽ
 Viết nhận xét của bạn
TungARC
Thời gian 16:05
3/12/2025
Bản vẽ rất tốt   
 Đã đăng bản vẽ này
Bản vẽ rất tốt và phù hợp để tham khảo
HỖ TRỢ TRỰC TUYẾN