MÃ BẢN VẼ
63287

Mẫu revit biệt thự phong cách tân cổ điển siêu đẹp

  (1 Nhận xét)     Viết đánh giá        0     0     4

Mẫu revit kiến trúc biệt thự phong cách tân cổ điển siêu đẹp 8x17m 3 tầng (đầy đủ trình bày)

Ngày đăng: 22/12/2025
File download: TCĐ ANH TUẤN 8x17m-RV2022.rar
Dung lượng file: 414.36MB
Phong cách: Tân cổ điển
Kích thước: Rộng 8m, Dài 17m, DT 136m2
CÔNG CỤ THIẾT KẾ:
Autocad
Sketchup
3D Max
Revit
Khác...
CÁC HẠNG MỤC CỦA BẢN VẼ:
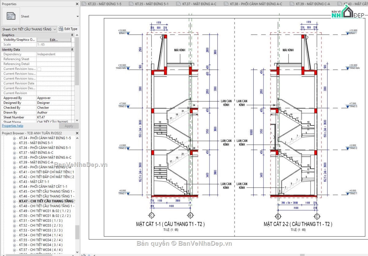
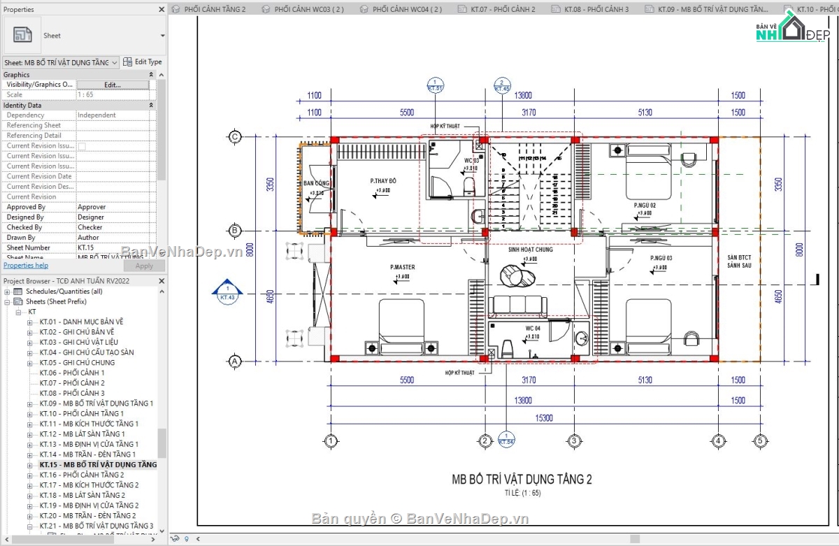
Kiến trúc
Kết cấu
Điện
Nước
PCCC
Phối cảnh
Dự toán
Tài liệu
Khác...

NGƯỜI ĐĂNG
(Hạng vàng)
Xem trang
bản vẽ nhà
Bản vẽ
185
bộ sưu tập bản vẽ nhà
Bộ sưu tập
0
đánh giá mẫu bản vẽ
Đánh giá (209)
5/5
ngày tham gia bản vẽ nhà đẹp
Ngày tham gia
2/4/2024

Mô tả chi tiết

Mẫu revit kiến trúc biệt thự phong cách tân cổ điển siêu đẹp và ấn tượng với kích thước 8x17m và quy mô 3 tầng (đầy đủ trình bày dàn trang)

Bình luận (0)


Đánh giá (1)

ĐÁNH GIÁ TRUNG BÌNH
5/5

(1 Nhận xét)
Bản vẽ rất tốt (1)
Bản vẽ tốt (0)
Bản vẽ rất hay (0)
Bản vẽ hay (0)
Bình thường (0)
Chia sẻ nhận xét về bản vẽ
 Viết nhận xét của bạn
TungARC
Thời gian 16:16
22/12/2025
Bản vẽ rất tốt   
 Đã đăng bản vẽ này
Bản vẽ rất tốt và phù hợp để tham khảo
HỖ TRỢ TRỰC TUYẾN