MÃ BẢN VẼ
33681

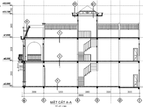
Mẫu .skp nhà phố 2 tầng kích thước 12.6x16m

  (1 Nhận xét)     Viết đánh giá        0     0     477

Hôm nay anh em kỹ thuật xin gửi đến với các mọi người em trong nghề nhà phố 2 tầng được vẽ trên su.

Ngày đăng: 11/7/2023
File download: Nhà phố 2 tầng 12.6x16m.rar
Dung lượng file: 8.6 MB
Phong cách: Hiện đại
Kích thước: Rộng 12,6m, Dài 16m, DT 201,6m2
CÔNG CỤ THIẾT KẾ:
Autocad
Sketchup
3D Max
Revit
Khác...
CÁC HẠNG MỤC CỦA BẢN VẼ:
Kiến trúc
Kết cấu
Điện
Nước
PCCC
Phối cảnh
Dự toán
Tài liệu
Khác...

NGƯỜI ĐĂNG
(Hạng vàng)
Xem trang
bản vẽ nhà
Bản vẽ
3685
bộ sưu tập bản vẽ nhà
Bộ sưu tập
6
đánh giá mẫu bản vẽ
Đánh giá (3887)
4/5
ngày tham gia bản vẽ nhà đẹp
Ngày tham gia
21/12/2014

Mô tả chi tiết

Mẫu nhà phố 2 tầng đang là thiết kế bản vẽ thông dụng nhất hiện nay, đáp ứng chi tiết về cả chất lượng và tính thẩm mỹ. Nhà phố 2 tầng được bản vẽ trên .skp rất thích hợp để tham khảo.

Bình luận (0)


Đánh giá (1)

ĐÁNH GIÁ TRUNG BÌNH
5/5

(1 Nhận xét)
Bản vẽ rất tốt (1)
Bản vẽ tốt (0)
Bản vẽ rất hay (0)
Bản vẽ hay (0)
Bình thường (0)
Chia sẻ nhận xét về bản vẽ
 Viết nhận xét của bạn
Thanh Tâm Arc
Thời gian 08:53
26/7/2023
Bản vẽ rất tốt   
 Đã đăng bản vẽ này
Bản vẽ thiết tốt thích hợp để tham khảo
HỖ TRỢ TRỰC TUYẾN