MÃ BẢN VẼ
52860

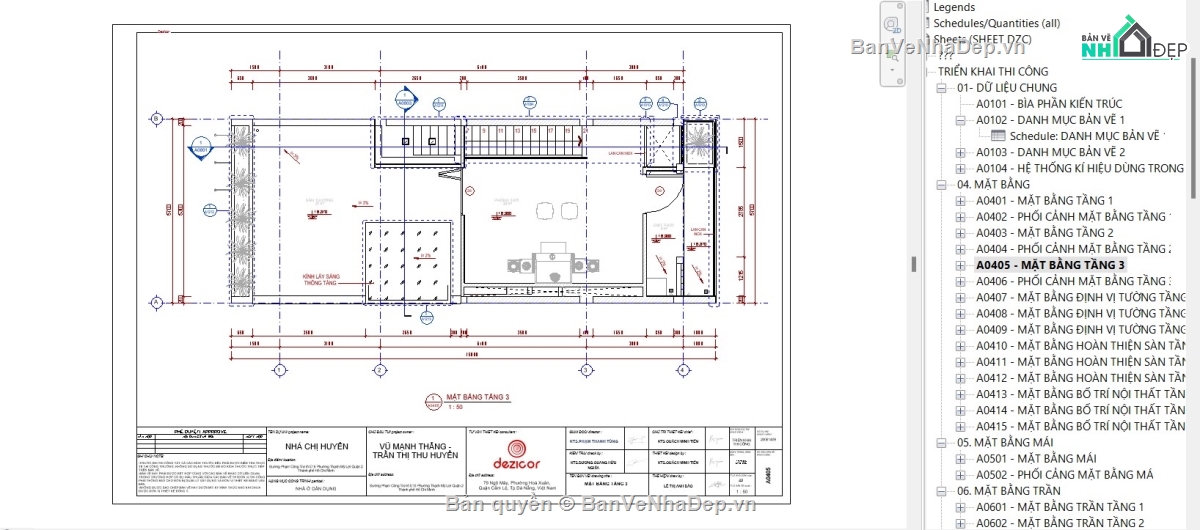
Model 3d revit nhà ở phố 3 tầng 5.7x14.9m(kiến trúc+kết cấu+nội thất+điện nước+điều hòa không khí+phối cảnh

  (1 Nhận xét)     Viết đánh giá        0     2     120

Model 3d revit nhà ở phố 3 tầng 5.7x14.9m. rất thích hợp tham khảo học tập phát triển

Ngày đăng: 21/1/2025
File download: DSC - MO HINH THIET KE NHA DAN.rar
Dung lượng file: 613 MB
Phong cách: Hiện đại
Kích thước: Rộng 5,7m, Dài 14,9m, DT 84,93m2
CÔNG CỤ THIẾT KẾ:
Autocad
Sketchup
3D Max
Revit
Khác...
CÁC HẠNG MỤC CỦA BẢN VẼ:
Kiến trúc
Kết cấu
Điện
Nước
PCCC
Phối cảnh
Dự toán
Tài liệu
Khác...

NGƯỜI ĐĂNG
bản vẽ nhà
Bản vẽ
303
bộ sưu tập bản vẽ nhà
Bộ sưu tập
0
đánh giá mẫu bản vẽ
Đánh giá (672)
4/5
ngày tham gia bản vẽ nhà đẹp
Ngày tham gia
15/5/2023

Mô tả chi tiết

Model 3d revit nhà ở phố 3 tầng 5.7x14.9m

+kiến trúc

+kết cấu

+nội thất

+điện nước

điều hòa không khí

+phối cảnh

Bình luận (0)


Đánh giá (1)

ĐÁNH GIÁ TRUNG BÌNH
5/5

(1 Nhận xét)
Bản vẽ rất tốt (1)
Bản vẽ tốt (0)
Bản vẽ rất hay (0)
Bản vẽ hay (0)
Bình thường (0)
Chia sẻ nhận xét về bản vẽ
 Viết nhận xét của bạn
Kỹ Sư Hạ Tầng
Thời gian 15:17
1/2/2025
Bản vẽ rất tốt   
 Đã đăng bản vẽ này
Bản vẽ thiết tốt thích hợp để tham khảo
HỖ TRỢ TRỰC TUYẾN