MÃ BẢN VẼ
39547

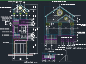
Model .skp nhà biệt thự trệt 7.5x12.7m

  (1 Nhận xét)     Viết đánh giá        0     0     427

Model sketchup việt nam nhà biệt thự trệt được bản vẽ hiện đại, sang trọng, phù hợp với điều kiện của nhiều gia đình làng hiện nay.

Ngày đăng: 27/10/2023
File download: biet thu 1 tang.rar
Dung lượng file: 18.6 MB
Phong cách: Hiện đại
Kích thước: Rộng 7,5m, Dài 12,7m, DT 95,25m2
CÔNG CỤ THIẾT KẾ:
Autocad
Sketchup
3D Max
Revit
Khác...
CÁC HẠNG MỤC CỦA BẢN VẼ:
Kiến trúc
Kết cấu
Điện
Nước
PCCC
Phối cảnh
Dự toán
Tài liệu
Khác...

NGƯỜI ĐĂNG
(Hạng vàng)
Xem trang
bản vẽ nhà
Bản vẽ
1708
bộ sưu tập bản vẽ nhà
Bộ sưu tập
0
đánh giá mẫu bản vẽ
Đánh giá (1876)
5/5
ngày tham gia bản vẽ nhà đẹp
Ngày tham gia
2/11/2020

Mô tả chi tiết

trong quá trình file mình nhận thấy biệt thự cấp 4 này đang được khá nhiều khách hàng quan tâm, chính vì thế hôm nay mình muốn share tới các bạn thiết kế để gửi tới các bạn tham khảo trong quá trình làm thiết kế gửi tới khách hàng của mình.

Bình luận (0)


Đánh giá (1)

ĐÁNH GIÁ TRUNG BÌNH
5/5

(1 Nhận xét)
Bản vẽ rất tốt (1)
Bản vẽ tốt (0)
Bản vẽ rất hay (0)
Bản vẽ hay (0)
Bình thường (0)
Chia sẻ nhận xét về bản vẽ
 Viết nhận xét của bạn
Van Anh
Thời gian 15:25
13/11/2023
Bản vẽ rất tốt   
 Đã mua bản vẽ tại Banvenhadep.vn
Bản vẽ thiết tốt thích hợp để tham khảo
HỖ TRỢ TRỰC TUYẾN