Đăng nhập
Đăng kí
NẠP TIỀN
THƯ VIỆN BẢN VẼ
HỘI KIẾN TRÚC SƯ
ĐĂNG TIN & THẢO LUẬN
CÔNG CỤ
Autocad
Sketchup
3D Max
Revit
Khác...
DANH MỤC
Biệt thự
Lâu đài, dinh thự
Biệt thự 1 Tầng
Biệt thự 2 Tầng
Biệt thự 3 Tầng
Biệt thự Trên 3 Tầng
Nhà phố
Nhà phố 1 Tầng
Nhà phố 2 Tầng
Nhà phố 3 Tầng
Nhà phố 4 Tầng
Nhà phố Trên 4 Tầng
Nhà xưởng
Nội thất
Biệt thự
Nhà phố
Chung cư, Văn phòng
Cửa hàng, Quán
Nội thất khác...
Ngoại thất
Bản vẽ khác...
Nhà thờ, Đình chùa
Chung cư, Văn phòng
Công trình xã hội
Cửa hàng, Quán
Khách sạn
Nhà cấp 4
Bản vẽ khác...
BỘ SƯU TẬP
Tìm bản vẽ
Autocad
Sketchup
3D Max
Revit
Khác...
ĐĂNG BẢN VẼ
×
ĐĂNG NHẬP
Đăng nhập nhanh
Log in
Log in
Bạn chưa có tài khoản Banvenhadep.vn?
Đăng ký ngay
Email
*
Password
*
Mã khác
Quên mật khẩu?
Đăng nhập
Trang chủ
Biệt thự "Biệt thự 2 Tầng"
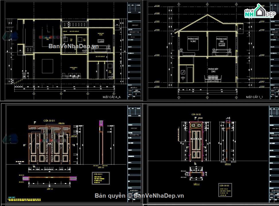
Nhà biệt thự 2 tầng 8.7x14.7m
MÃ BẢN VẼ
60421
Nhà biệt thự 2 tầng 8.7x14.7m
(
1 Nhận xét
)
Viết đánh giá
Bình luận:
0
Download:
0
Lượt xem:
58
Hồ sơ mẫu mẫu biệt thự 2 tầng 8,7x14.7m gửi cho các bạn tham khảo nhé
Danh mục:
Biệt thự
Biệt thự 2 Tầng
Ngày đăng:
31/7/2025
File download:
.rar
Dung lượng file:
MB
Phong cách:
Hiện đại
Kích thước:
Rộng
8,7m
, Dài
14,7m
, DT
127,89m
2
CÔNG CỤ THIẾT KẾ:
Autocad
Sketchup
3D Max
Revit
Khác...
CÁC HẠNG MỤC CỦA BẢN VẼ:
Kiến trúc
Kết cấu
Điện
Nước
PCCC
Phối cảnh
Dự toán
Tài liệu
Khác...
NGƯỜI ĐĂNG
Thu
(Hạng vàng)
Xem
trang
Bản vẽ
185
Bộ sưu tập
0
Đánh giá (
515
)
5/5
Ngày tham gia
27/3/2025
Mô tả chi tiết
Bộ bản vẽ thiết kế kiến trúc mẫu biệt thự đầy đủ thiết kế cad đầy đủ từ mặt bằng đến mặt đứng, mặt cắt...
Bình luận (
0
)
BÌNH LUẬN
BÌNH LUẬN
Đánh giá (
1
)
ĐÁNH GIÁ TRUNG BÌNH
5
/5
(
1 Nhận xét
)
Bản vẽ rất tốt
(1)
Bản vẽ tốt
(0)
Bản vẽ rất hay
(0)
Bản vẽ hay
(0)
Bình thường
(0)
Chia sẻ nhận xét về bản vẽ
Viết nhận xét của bạn
Thu
Thời gian 23:19
10/8/2025
Bản vẽ rất tốt
Đã đăng bản vẽ này
Bản vẽ thiết tốt thích hợp để tham khảo
Hiển thị 20
Hiển thị 50
Tất cả
×
NẠP TIỀN DOWNLOAD NGAY
Bạn đang download:
[Mã bản vẽ
60421
]
Phí tải
100.000
đ
CHUYỂN KHOẢN
Bạn cần đăng nhập để tải bản vẽ qua chức năng này!
ĐĂNG NHẬP NGAY
Phí download
100.000
đ
DOWNLOAD
NGAY
Link download dự phòng
Bạn có bản vẽ hay
ĐĂNG
BÁN
NGAY
LƯU
VÀO
YÊU THÍCH
Báo
vi phạm
bản quyền
Gửi hỗ trợ - Báo lỗi
Gửi ngay
CHIA SẺ NHANH
(BẢN VẼ
60421
)
Gửi tới email bạn bè
TỪ KHÓA LIÊN QUAN
biệt thự
biệt thự 2 tầng
file cad biệt thự 2 tầng
Bản vẽ tương tự
BẢN VẼ
Nhà phố 2 Tầng
663
Hồ sơ bản vẽ Biệt thự 2 tầng (Kiến trúc, Kết cấu)
20.000
đ
BẢN VẼ
Biệt thự 2 Tầng
975
Share miễn phí kiến trúc biệt thự 2 tầng mái thái
MIỄN PHÍ
BẢN VẼ
Nhà phố 1 Tầng
759
File cad kiến trúc thiết kế nhà 2 tầng hiện đại
10.000
đ
BẢN VẼ
Biệt thự 3 Tầng
998
File cad kiến trúc, điện nước thiết kế biệt thự 2.5 tầng KT 7x17m
20.000
đ
BẢN VẼ
Biệt thự 2 Tầng
2195
File cad kiến trúc, kết cấu, móng giằng thiết kế biệt thự 2 tầng 7.72x12.1m
20.000
đ
Gợi ý cho bạn
BẢN VẼ
Công trình xã hội
762
Full bộ hồ sơ trường TH & THCS 3 tầng 8.6x31.42m xã phường, thị trấn theo tiêu chuẩn BGD 2020
180.000
đ
BẢN VẼ
Công trình xã hội
2143
Bản vẽ cad đầy đủ kt, kc, đn Bệnh viện quốc tế 200 giường 40.8x61.1m
200.000
đ
BẢN VẼ
Nhà thờ, Đình chùa
831
Hồ sơ cad thiết kế Chùa kích thước 10.9x21.1m - Khu tưởng niệm Mũi trèo - Quảng trị - 5 800 m2
15.000
đ
BẢN VẼ
Chung cư, Văn phòng
781
File su 2020 nội thất phòng khách chung cư + ảnh ren PC
10.000
đ
BẢN VẼ
Chung cư, Văn phòng
843
File su 2020 nội thất phòng khách + bàn chung cư
20.000
đ
HỖ TRỢ TRỰC TUYẾN