MÃ BẢN VẼ
54592
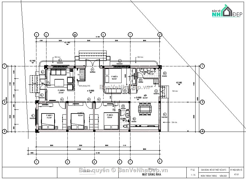
Nhà mái nhật kích thước xây dựng 8x15m
File revit phương án kiến trúc nhà vườn đẹp mái thái kích thước xây dựng 8x15m
Ngày đăng: 29/4/2025
File download:
8x12.5m mai thai.rar
Dung lượng file:
567 MB
Phong cách: Hiện đại
Kích thước: Rộng 8m, Dài 15m, DT 120m2
CÔNG CỤ THIẾT KẾ:

Autocad

Sketchup

3D Max

Revit

Khác...
CÁC HẠNG MỤC CỦA BẢN VẼ:

Kiến trúc

Kết cấu

Điện

Nước

PCCC

Phối cảnh

Dự toán

Tài liệu

Khác...
NGƯỜI ĐĂNG
Bản vẽ
55
Bộ sưu tập
0
Đánh giá (67)
5/5
Ngày tham gia
2/3/2022
Mô tả chi tiết
File revit phương án kiến trúc nhà vườn đẹp mái thái kích thước xây dựng 8x15m 1 tầng
- Công năng bố trí bao hạng mục bản vẽ phòng khách kết hợp phòng thờ, 4 phòng ngủ, 1 vệ sinh khép kín và 1 vệ sinh chung. phòng ăn + bếp, sân phơi ngoài nhà
- Bản vẽ bao hạng mục bản vẽ file phối cảnh đã render, hồ sơ mặt bằng, hình mẫu trong revit
- Phù hợp làm nhà vườn
Bình luận (0)
Đánh giá (1)
ĐÁNH GIÁ TRUNG BÌNH
5/5
(
1 Nhận xét)
Bản vẽ rất tốt (1)
Bản vẽ tốt (0)
Bản vẽ rất hay (0)
Bản vẽ hay (0)
Bình thường (0)
Bản vẽ rất tốt
Đã đăng bản vẽ này
Bản vẽ thiết tốt thích hợp để tham khảo