MÃ BẢN VẼ
61731
Full autocad Nhà phố 2 tầng 5x17m (đất 5x20m). Hồ sơ thi công kiến trúc, kết cấu, điện nước
(
1 Nhận xét)
Viết đánh giá
Bình luận: 0
Download: 3
Lượt xem: 233
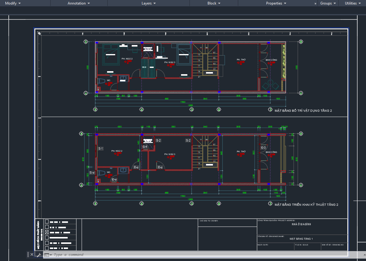
Nhà phố 2 tầng 5x17m (đất 5x20m) thiết kế theo xu hướng đẹp hiện đại có đầy đủ phối cảnh, bản vẽ kiến trúc, kết cấu và điện nước thi công. File Autocad và file PDF hồ sơ thi công.
Ngày đăng: 18/9/2025
File download:
NHÀ PHỐ 2 TẦNG 5x20 FULL HS THI CÔNG.rar
Dung lượng file:
2.4 MB
Phong cách: Hiện đại
Kích thước: Rộng 5m, Dài 20m, DT 100m2
CÔNG CỤ THIẾT KẾ:

Autocad

Sketchup

3D Max

Revit

Khác...
CÁC HẠNG MỤC CỦA BẢN VẼ:

Kiến trúc

Kết cấu

Điện

Nước

PCCC

Phối cảnh

Dự toán

Tài liệu

Khác...
NGƯỜI ĐĂNG
Bản vẽ
24
Bộ sưu tập
0
Đánh giá (61)
5/5
Ngày tham gia
18/9/2025
Mô tả chi tiết
Nhà phố 2 tầng 5x17m (đất 5x20m) thiết kế theo xu hướng đẹp hiện đại, không gian thông thoáng và đầy đủ công năng sử dụng cho gia đình trẻ:
Công năng dử dụng: Sân trước, phòng khách, phòng bếp ăn, 3 phòng ngủ, phòng thờ, sân phơi
Bình luận (0)
Đánh giá (1)
ĐÁNH GIÁ TRUNG BÌNH
5/5
(
1 Nhận xét)
Bản vẽ rất tốt (1)
Bản vẽ tốt (0)
Bản vẽ rất hay (0)
Bản vẽ hay (0)
Bình thường (0)
Bản vẽ rất tốt
Đã mua bản vẽ tại Banvenhadep.vn
Bản vẽ rất tốt và phù hợp để tham khảo