MÃ BẢN VẼ
61734
Full Autocad Pdf Nhà phố 3 tầng 5x12,7m (đất 5x17.2m). Hồ sơ thi công kiến trúc, kết cấu, điện nước
(
1 Nhận xét)
Viết đánh giá
Bình luận: 2
Download: 0
Lượt xem: 183
Nhà phố 3 tầng 5x12,7m (đất 5x17.2m) thiết kế theo xu hướng đẹp hiện đại có đầy đủ phối cảnh, bản vẽ kiến trúc, kết cấu và điện nước thi công. File Autocad và file PDF.
Ngày đăng: 18/9/2025
File download:
NHÀ PHỐ 3 TẦNG 5x17.2.rar
Dung lượng file:
7.3 MB
Phong cách: Hiện đại
Kích thước: Rộng 5m, Dài 17,2m, DT 86m2
CÔNG CỤ THIẾT KẾ:

Autocad

Sketchup

3D Max

Revit

Khác...
CÁC HẠNG MỤC CỦA BẢN VẼ:

Kiến trúc

Kết cấu

Điện

Nước

PCCC

Phối cảnh

Dự toán

Tài liệu

Khác...
NGƯỜI ĐĂNG
Bản vẽ
24
Bộ sưu tập
0
Đánh giá (61)
5/5
Ngày tham gia
18/9/2025
Mô tả chi tiết
Nhà phố 3 tầng thiết kế theo xu hướng đẹp hiện đại, không gian thông thoáng và đầy đủ công năng sử dụng:
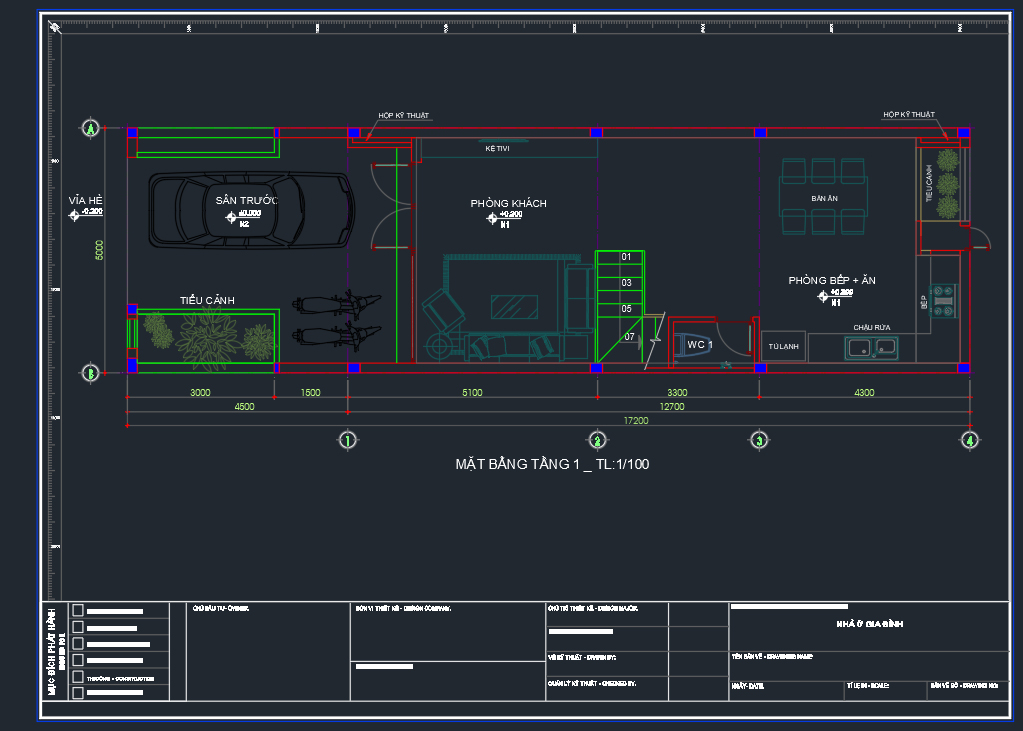
Tầng 1: Sân trước, phòng khách, phòng bếp ăn
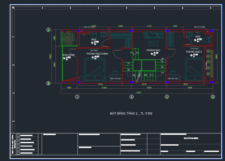
Tầng 2: 2 phòng ngủ,1 phòng Sinh hoạt chung
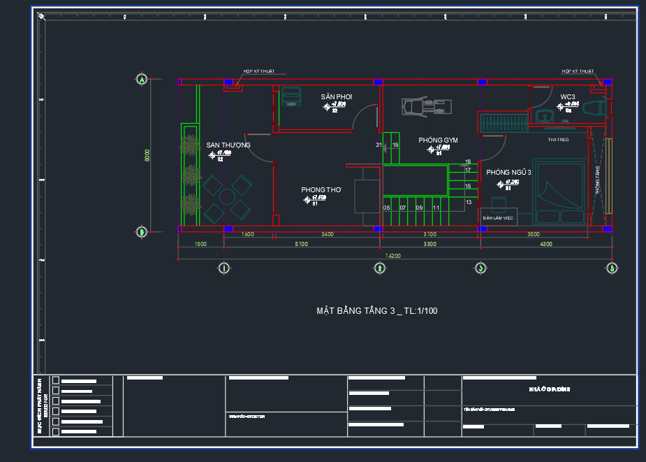
Tầng 3: 1 phòng ngủ, 1 phòng thờ, sân phơi, sân thượng
Bình luận (2)
Mình muốn xem qua hồ sơ công trình xây dựng này bạn có không ?
@Minh Đạt Hồ sơ mình đăng là hồ sơ thiết kế kỹ thuật thi công đầy đủ kiến trúc, kết cấu, điện nước đó bạn. Còn về công năng sử dụng từng tầng:
Tầng 1: Sân trước, phòng khách, phòng bếp ăn
Tầng 2: 2 phòng ngủ trước sau,1 phòng Sinh hoạt chung ở giữa
Tầng 3: 1 phòng ngủ sau, 1 phòng thờ trước nhà, sân phơi, sân thượng
Đánh giá (1)
ĐÁNH GIÁ TRUNG BÌNH
5/5
(
1 Nhận xét)
Bản vẽ rất tốt (1)
Bản vẽ tốt (0)
Bản vẽ rất hay (0)
Bản vẽ hay (0)
Bình thường (0)
Bản vẽ rất tốt
Đã đăng bản vẽ này
Bản vẽ rất tốt và phù hợp để tham khảo