MÃ BẢN VẼ
54984
Nhà phố 3 tầng, 7.8x8m trọn bộ kiến trúc và phối cảnh
(
1 Nhận xét)
Viết đánh giá
Bình luận: 0
Download: 1
Lượt xem: 114
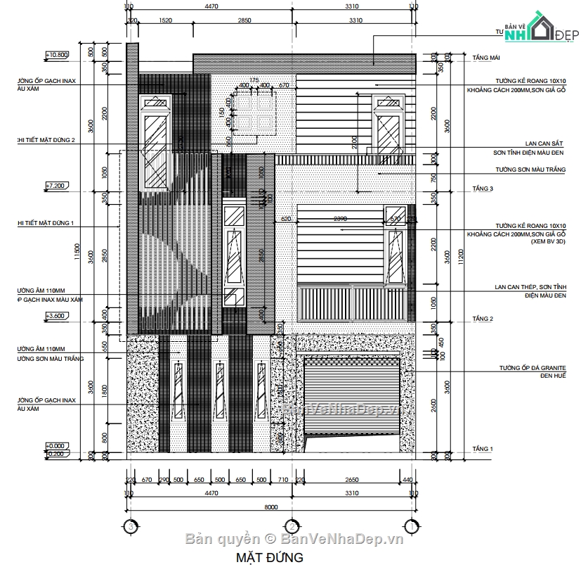
Nhà phố 7.8x8m 3 tầng đã có kiến trúc và phối cảnh, được thiết kế theo phong cách hiện đại
Ngày đăng: 29/5/2025
File download:
Nha phố 7.8x8m.rar
Dung lượng file:
13.8 MB
Phong cách: Hiện đại
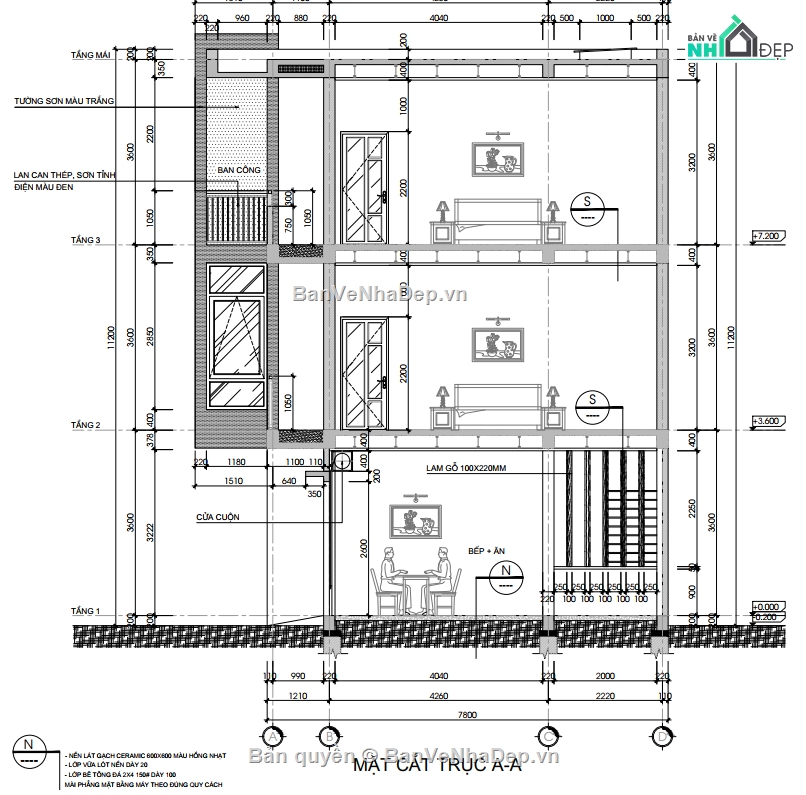
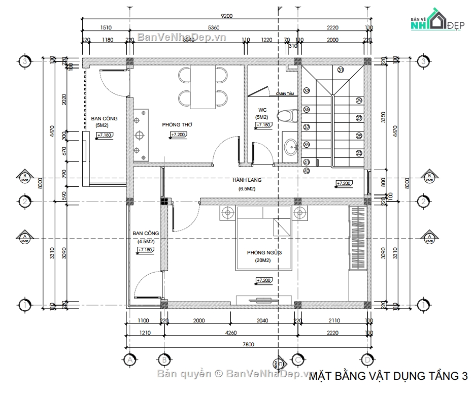
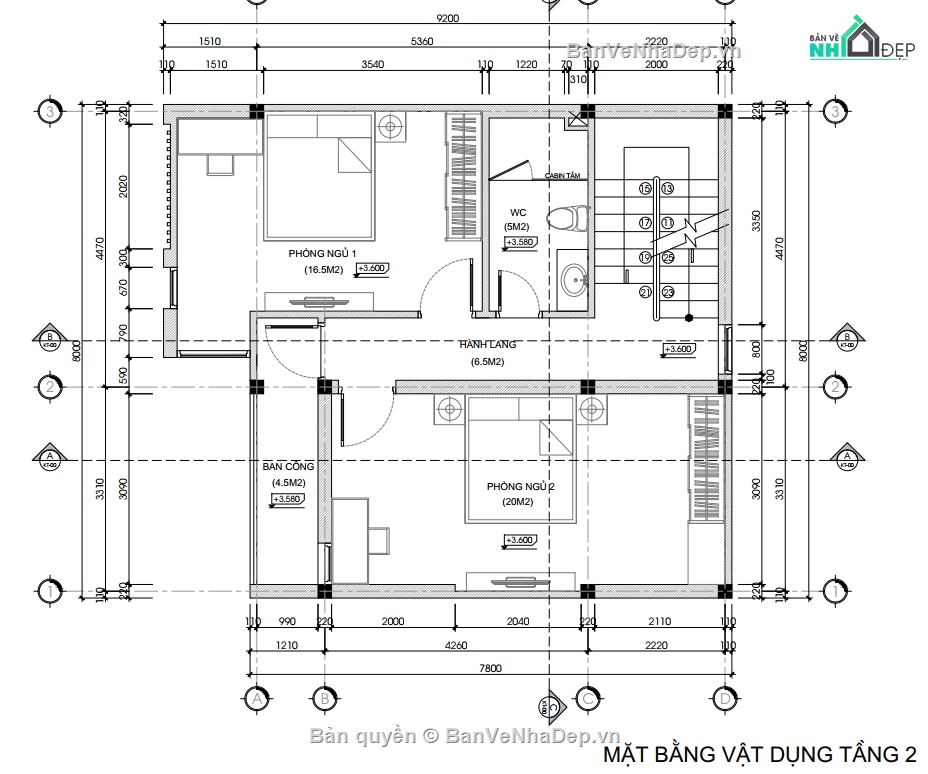
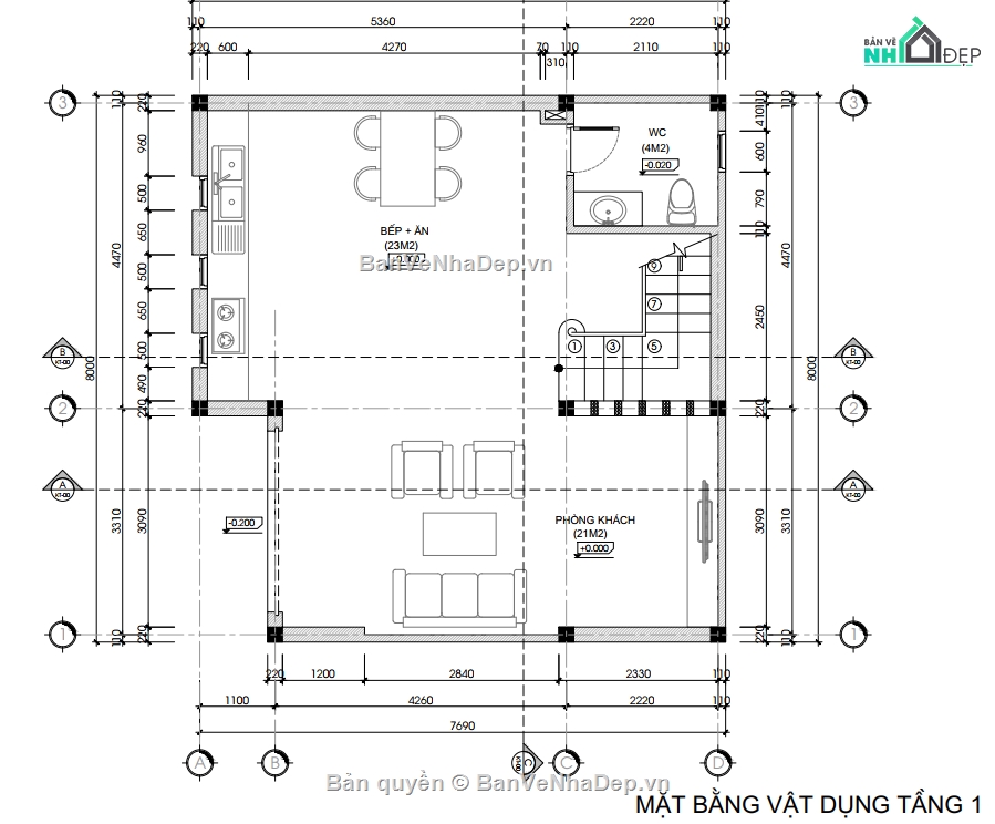
Kích thước: Rộng 7,8m, Dài 8m, DT 62,4m2
CÔNG CỤ THIẾT KẾ:

Autocad

Sketchup

3D Max

Revit

Khác...
CÁC HẠNG MỤC CỦA BẢN VẼ:

Kiến trúc

Kết cấu

Điện

Nước

PCCC

Phối cảnh

Dự toán

Tài liệu

Khác...
NGƯỜI ĐĂNG
Bản vẽ
20
Bộ sưu tập
0
Đánh giá (25)
5/5
Ngày tham gia
25/4/2025
Mô tả chi tiết
Tầng 1, phòng khách, 1 bếp ăn, 1 vệ sinh.
Tầng 2: 2 phòng ngủ, 1 vệ sinh.
Tầng 3: phòng thờ, 1 phòng ngủ, 1 vệ sinh.
Bình luận (0)
Đánh giá (1)
ĐÁNH GIÁ TRUNG BÌNH
5/5
(
1 Nhận xét)
Bản vẽ rất tốt (1)
Bản vẽ tốt (0)
Bản vẽ rất hay (0)
Bản vẽ hay (0)
Bình thường (0)
Bản vẽ rất tốt
Đã mua bản vẽ tại Banvenhadep.vn
Bản vẽ rất tốt và phù hợp để tham khảo