MÃ BẢN VẼ
61738
Nhà phố 4 tầng 5x25m (full hồ sơ thi công kiến trúc, kết cấu, điện nước)
Nhà phố 4 tầng có thang máy thiết kế theo xu hướng đẹp hiện đại có đầy đủ phối cảnh, bản vẽ kiến trúc, kết cấu và điện nước thi công.
Ngày đăng: 20/9/2025
File download:
NHÀ PHỐ 4 TẦNG 5x25m.rar
Dung lượng file:
4.16 MB
Phong cách: Hiện đại
Kích thước: Rộng 5m, Dài 25m, DT 125m2
CÔNG CỤ THIẾT KẾ:

Autocad

Sketchup

3D Max

Revit

Khác...
CÁC HẠNG MỤC CỦA BẢN VẼ:

Kiến trúc

Kết cấu

Điện

Nước

PCCC

Phối cảnh

Dự toán

Tài liệu

Khác...
NGƯỜI ĐĂNG
Bản vẽ
24
Bộ sưu tập
0
Đánh giá (61)
5/5
Ngày tham gia
18/9/2025
Mô tả chi tiết
Nhà phố 4 tầng có thang máy thiết kế theo xu hướng đẹp hiện đại có đầy đủ phối cảnh, bản vẽ kiến trúc, kết cấu và điện nước thi công.
Có đầy đủ phối cảnh, bản vẽ autocad kiến trúc, kết cấu, điện nước thi công
Phù hợp tham khảo và phát triển
Tầng 1: Sân trước, phòng khám
Tầng 2: 2 phòng ngủ,1 phòng Sinh hoạt chung + tiếp khách, phòng bếp + ăn
Tầng 3: 2 phòng ngủ, 1 phòng Gym
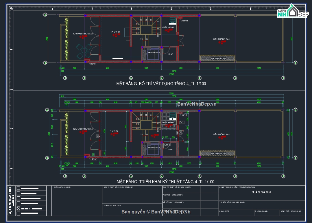
Tầng 4: phòng thờ, phòng giặt phơi, sân thượng
Bình luận (0)
Đánh giá (1)
ĐÁNH GIÁ TRUNG BÌNH
5/5
(
1 Nhận xét)
Bản vẽ rất tốt (1)
Bản vẽ tốt (0)
Bản vẽ rất hay (0)
Bản vẽ hay (0)
Bình thường (0)
Bản vẽ rất tốt
Đã đăng bản vẽ này
Bản vẽ rất tốt và phù hợp để tham khảo