MÃ BẢN VẼ
54325
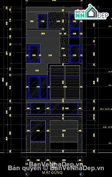
Nhà phố 5 tầng 6x10m.
Nhà phố 5 tầng 6x10m, được thiết kế theo phong cách hiện đại, có phòng tập gym phù hợp cho các gia đình muốn có một không gian tập gym tại nhà rộng rãi, tiện nghi.
Ngày đăng: 07/5/2025
File download:
Nha pho 5 tầng 6x10m.dwg
Dung lượng file:
2.1 MB
Phong cách: Hiện đại
Kích thước: Rộng 6m, Dài 10m, DT 60m2
CÔNG CỤ THIẾT KẾ:

Autocad

Sketchup

3D Max

Revit

Khác...
CÁC HẠNG MỤC CỦA BẢN VẼ:

Kiến trúc

Kết cấu

Điện

Nước

PCCC

Phối cảnh

Dự toán

Tài liệu

Khác...
NGƯỜI ĐĂNG
Bản vẽ
20
Bộ sưu tập
0
Đánh giá (25)
5/5
Ngày tham gia
25/4/2025
Mô tả chi tiết
Tầng trệt: gara để xe, kho, 1wc.
Tầng lửng: phòng bếp
Tầng 2: phòng khách, 1 phòng ngủ lớn, 1 phòng thay đồ, 1wc.
Tầng 3: 2 phòng ngủ, 1 phòng thay đồ, 2wc.
Tầng áp mái: 1 phòng thờ, 1 phòng tập gym, sân giặt và phơi quần áo.
Bình luận (0)
Đánh giá (1)
ĐÁNH GIÁ TRUNG BÌNH
5/5
(
1 Nhận xét)
Bản vẽ rất tốt (1)
Bản vẽ tốt (0)
Bản vẽ rất hay (0)
Bản vẽ hay (0)
Bình thường (0)
Bản vẽ rất tốt
Đã mua bản vẽ tại Banvenhadep.vn
Bản vẽ rất tốt và phù hợp để tham khảo