MÃ BẢN VẼ
54314
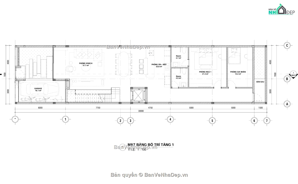
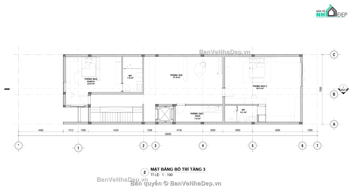
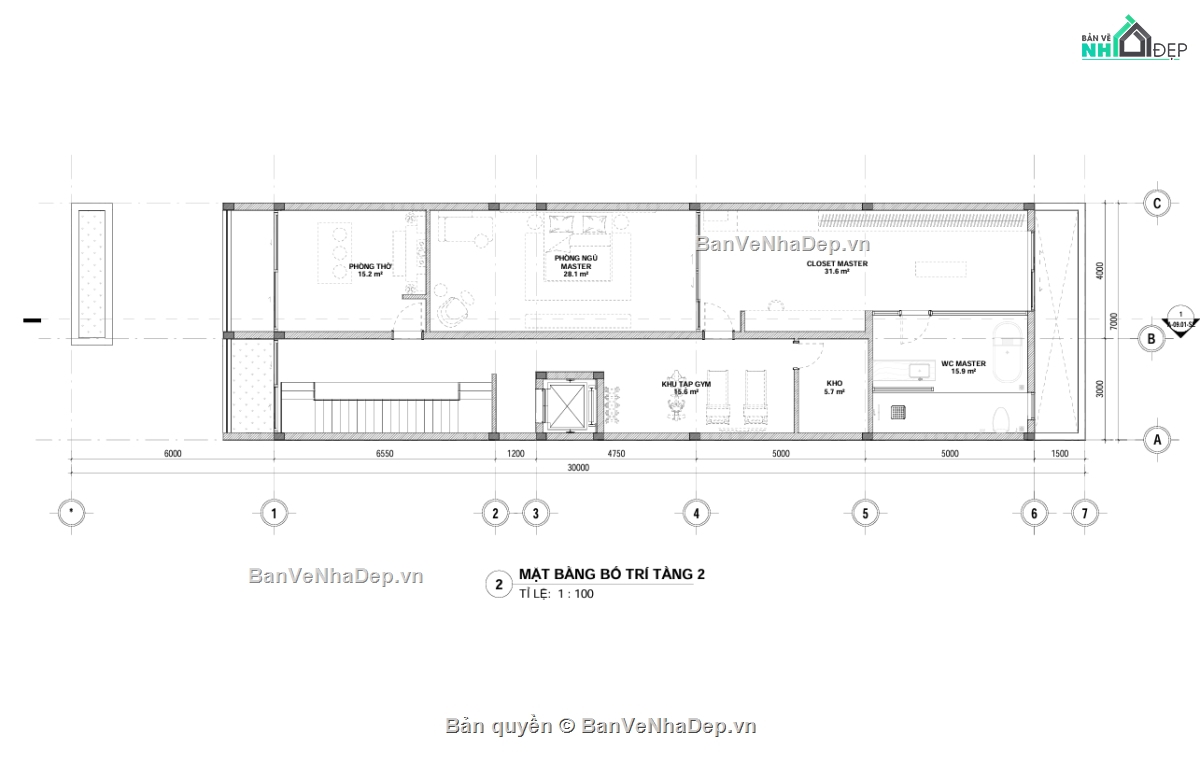
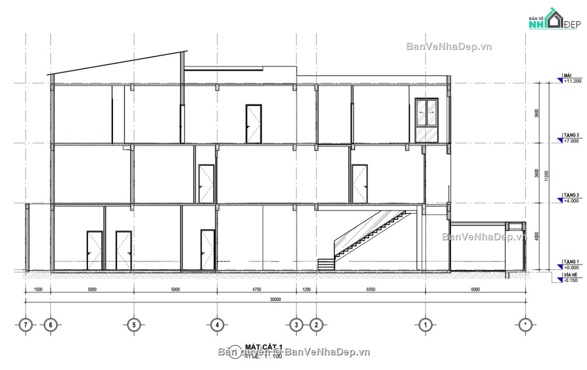
Nhà phố 7x30m 3 tầng
Bản vẽ trình bày theo tiêu chuẩn đồ án rõ ràng , đầy đủ thông tin cơ bản cho các bạn sinh viên và các kiến trúc sư mới vào nghề tham khảo. Bố trí không gian hợp lý và tối ưu
Ngày đăng: 02/5/2025
File download:
GUI - DO AN KIEN TRUC -7X30 -full-20250503T004956Z-001.zip
Dung lượng file:
188 MB
Phong cách: Hiện đại
Kích thước: Rộng 7m, Dài 30m, DT 210m2
CÔNG CỤ THIẾT KẾ:

Autocad

Sketchup

3D Max

Revit

Khác...
CÁC HẠNG MỤC CỦA BẢN VẼ:

Kiến trúc

Kết cấu

Điện

Nước

PCCC

Phối cảnh

Dự toán

Tài liệu

Khác...
NGƯỜI ĐĂNG
Bản vẽ
8
Bộ sưu tập
0
Đánh giá (11)
5/5
Ngày tham gia
17/7/2022
Mô tả chi tiết
File revit được set up family gọn gàng để ae lưu templet. Nhà diện tích 7x30 là 1 bài toán nan giải cho 1 đại gia đình có nhiều thế hệ và thành viên, Thiết kế hiện đại đơn giản nhưng không đơn điệu. Đáp ứng tối đa yêu cầu của gia chủ tên thực tế. Bài vừa là đồ án đạt 9đ của khoa kiến trúc đại học Bình Dương vừa là 1 công trình thực tế tại quận 7 của 1 bạn cựu sinh viên. Hy vọng sẽ gửi gấm thêm ý tưởng thiết kế độc đáo cho các bạn kiến trúc sư Việt Nam.
Lưu ý: File kiến trúc: Mặt bằng, mặt đứng, mặt cắt, cầu thang; Kết cấu: mặt bằng kết cấu thép 3 tầng.
Bình luận (0)
Đánh giá (1)
ĐÁNH GIÁ TRUNG BÌNH
5/5
(
1 Nhận xét)
Bản vẽ rất tốt (1)
Bản vẽ tốt (0)
Bản vẽ rất hay (0)
Bản vẽ hay (0)
Bình thường (0)
Bản vẽ rất tốt
Đã đăng bản vẽ này
Bản vẽ rất tốt và phù hợp để tham khảo