MÃ BẢN VẼ
62165
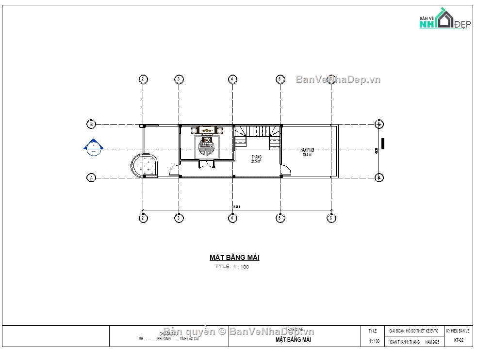
Nhà phố diện tích xây dựng 4.5x20m 3 tầng
Nhà phố kích thước xây dựng 4.5x20mx3 tầng, kiến trúc sang trọng xanh mát và trẻ trung mang lại không gian sống đẳng cấp và hướng tới thiên nhiên xanh
Ngày đăng: 23/8/2025
File download:
4.5X20M.rvt
Dung lượng file:
206 MB
Phong cách: Hiện đại
Kích thước: ...
CÔNG CỤ THIẾT KẾ:

Autocad

Sketchup

3D Max

Revit

Khác...
CÁC HẠNG MỤC CỦA BẢN VẼ:

Kiến trúc

Kết cấu

Điện

Nước

PCCC

Phối cảnh

Dự toán

Tài liệu

Khác...
NGƯỜI ĐĂNG
Bản vẽ
55
Bộ sưu tập
0
Đánh giá (67)
5/5
Ngày tham gia
2/3/2022
Mô tả chi tiết
File revit kiến trúc phương án mẫu nhà phố kích thước xây dựng 4.5mx20mx3 tầng
-công năng tầng 1 hạng mục bản vẽ : sân trước để xe ô tô, phòng khách, bếp kết hợp cầu thang lên tầng, phòng ngủ có lối ra sân sau, nhà vệ sinh chung
- công năng tầng 2 gồm: 2 phòng ngủ khép kín có vệ sinh riêng, sân chơi phía sau , sân chơi phía trước, ô cầu thang lên tầng
- công năng tầng 3 gồm: 1 phòng thờ, sân trước trồng câu, ô thang, sân sau giặt phơi
- bố trí công năng hợp lý thông thoáng phù hợp với tiêu chí xanh mát cho gia chủ
-kiến trúc sang trọng trẻ trung
Bình luận (0)
Đánh giá (1)
ĐÁNH GIÁ TRUNG BÌNH
5/5
(
1 Nhận xét)
Bản vẽ rất tốt (1)
Bản vẽ tốt (0)
Bản vẽ rất hay (0)
Bản vẽ hay (0)
Bình thường (0)
Bản vẽ rất tốt
Đã đăng bản vẽ này
Bản vẽ thiết tốt thích hợp để tham khảo