MÃ BẢN VẼ
53819
Nhà phố kích thước thiết kế 5m x 15m x 1.5 tầng gác lửng đẹp
(
1 Nhận xét)
Viết đánh giá
Bình luận: 0
Download: 2
Lượt xem: 122
Bản vẽ phương án nhà ở kích thước thiết kế 5m x 15m x 1.5 tầng phù hợp với chi phí xây dựng khiêm tốn
Ngày đăng: 18/3/2025
File download:
5x15m.rvt
Dung lượng file:
26.3 MB
Phong cách: Hiện đại
Kích thước: Rộng 5m, Dài 15m, DT 75m2
CÔNG CỤ THIẾT KẾ:

Autocad

Sketchup

3D Max

Revit

Khác...
CÁC HẠNG MỤC CỦA BẢN VẼ:

Kiến trúc

Kết cấu

Điện

Nước

PCCC

Phối cảnh

Dự toán

Tài liệu

Khác...
NGƯỜI ĐĂNG
Bản vẽ
55
Bộ sưu tập
0
Đánh giá (67)
5/5
Ngày tham gia
2/3/2022
Mô tả chi tiết
bản vẽ revit phương án nhà ở phố diện tích thiết kế 5m x 15m x 1.5 tầng
công năng tầng 1 danh mục 1 phòng khách và cầu thang + phòng ăn bếp + khu vệ sinh chung + phòng ngủ + sân gia công phía sau
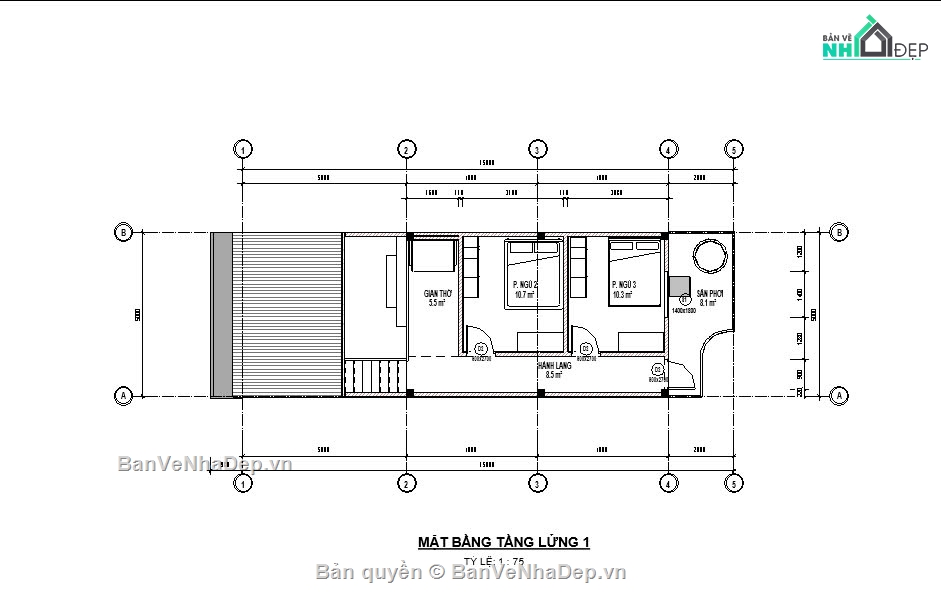
tầng lửng bố trí công năng danh mục phòng thờ + 02 phòng ngủ + sân giặt phơi phía sau
phương án phù hợp dự toán với gia đình làng còn hạn chế
file file bản vẽ đã dựng đầy đủ mặt bằng, mặt đứng, mặt cắt điển hình và các góc phối cảnh
Bình luận (0)
Đánh giá (1)
ĐÁNH GIÁ TRUNG BÌNH
5/5
(
1 Nhận xét)
Bản vẽ rất tốt (1)
Bản vẽ tốt (0)
Bản vẽ rất hay (0)
Bản vẽ hay (0)
Bình thường (0)
Bản vẽ rất tốt
Đã đăng bản vẽ này
Bản vẽ thiết tốt thích hợp để tham khảo