MÃ BẢN VẼ
60138
Nhà thờ họ model cad danh mục kiến trúc
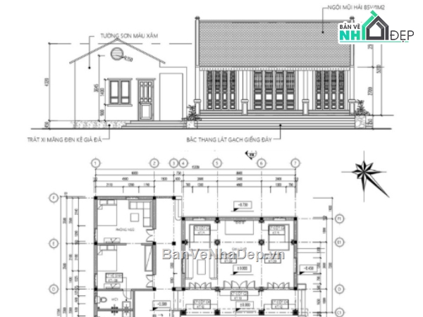
Bản vẽ thi công nhà thờ họ công trình này là một tổ hợp kiến trúc nhà thờ họ kết hợp nhà phố
Ngày đăng: 24/7/2025
File download:
.rar
Dung lượng file:
MB
Phong cách: Hiện đại
Kích thước: ...
CÔNG CỤ THIẾT KẾ:

Autocad

Sketchup

3D Max

Revit

Khác...
CÁC HẠNG MỤC CỦA BẢN VẼ:

Kiến trúc

Kết cấu

Điện

Nước

PCCC

Phối cảnh

Dự toán

Tài liệu

Khác...
NGƯỜI ĐĂNG
Bản vẽ
355
Bộ sưu tập
0
Đánh giá (458)
5/5
Ngày tham gia
9/6/2025
Mô tả chi tiết
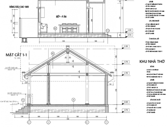
khu nhà thờ được bố trí tách riêng và nằm vuông góc với khu nhà ở
khu ở bao hạng mục bản vẽ phòng bếp ăn, 2 phòng ngủ và 2 nhà vệ sinh
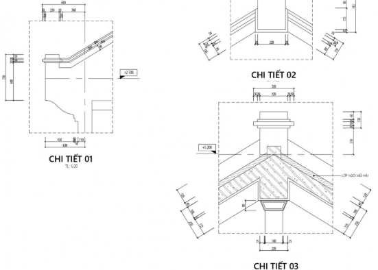
thiết kế nhà thờ họ kiểu truyền thống bắc bộ 3 gian, với những đầy đủ kiến trúc truyền thống rất đặc trưng
Bình luận (0)
Đánh giá (1)
ĐÁNH GIÁ TRUNG BÌNH
5/5
(
1 Nhận xét)
Bản vẽ rất tốt (1)
Bản vẽ tốt (0)
Bản vẽ rất hay (0)
Bản vẽ hay (0)
Bình thường (0)
Bản vẽ rất tốt
Đã mua bản vẽ tại Banvenhadep.vn
Bản vẽ thiết tốt thích hợp để tham khảo