MÃ BẢN VẼ
53829
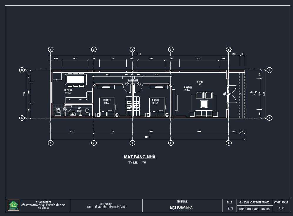
Phương án nhà ở phố diện tích thiết kế 5x20m trệt
File kiến trúc phương án nhà phố trệt diện tích thiết kế 5x20m, phù hợp với nhà phố
Ngày đăng: 20/3/2025
File download:
5X20M.rvt
Dung lượng file:
29.9 MB
Phong cách: Hiện đại
Kích thước: Rộng 5m, Dài 20m, DT 100m2
CÔNG CỤ THIẾT KẾ:

Autocad

Sketchup

3D Max

Revit

Khác...
CÁC HẠNG MỤC CỦA BẢN VẼ:

Kiến trúc

Kết cấu

Điện

Nước

PCCC

Phối cảnh

Dự toán

Tài liệu

Khác...
NGƯỜI ĐĂNG
Bản vẽ
55
Bộ sưu tập
0
Đánh giá (67)
5/5
Ngày tham gia
2/3/2022
Mô tả chi tiết
File kiến trúc phương án nhà ở phố trệt diện tích thiết kế 5x20m
-công năng bố trí danh mục 1 phòng khach, 2 phòng ngủ, 1 vệ sinh chung, bếp + ăn
-phương án kiến trúc phù hợp với gia đình làng dự toán eo hẹp
Bình luận (0)
Đánh giá (1)
ĐÁNH GIÁ TRUNG BÌNH
5/5
(
1 Nhận xét)
Bản vẽ rất tốt (1)
Bản vẽ tốt (0)
Bản vẽ rất hay (0)
Bản vẽ hay (0)
Bình thường (0)
Bản vẽ rất tốt
Đã đăng bản vẽ này
Bản vẽ thiết tốt thích hợp để tham khảo