MÃ BẢN VẼ
14788

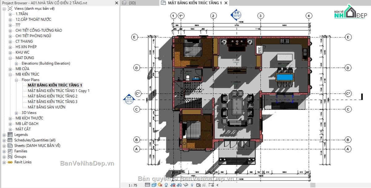
Revit 2019 mẫu biệt thự 2 tầng 13.865x14.83m đầy đủ kiến trúc

  (1 Nhận xét)     Viết đánh giá        0     0     851

Bản vẽ revit 2019 nhà biệt thự 2 tầng 13.865x14.83m đầy đủ kiến trúc, cùng 1 số danh mục phụ trợ, file phối cảnh 3dmax view,...

Ngày đăng: 04/11/2020
File download: A01.NHÀ TÂN CỔ ĐIỂN 2 TẦNG.rar
Dung lượng file: 94 MB
Phong cách: Hiện đại
Kích thước: Rộng 13,86m, Dài 14,83m, DT 205,62m2
CÔNG CỤ THIẾT KẾ:
Autocad
Sketchup
3D Max
Revit
Khác...
CÁC HẠNG MỤC CỦA BẢN VẼ:
Kiến trúc
Kết cấu
Điện
Nước
PCCC
Phối cảnh
Dự toán
Tài liệu
Khác...

NGƯỜI ĐĂNG
(Hạng vàng)
Xem trang
bản vẽ nhà
Bản vẽ
163
bộ sưu tập bản vẽ nhà
Bộ sưu tập
0
đánh giá mẫu bản vẽ
Đánh giá (184)
4/5
ngày tham gia bản vẽ nhà đẹp
Ngày tham gia
27/4/2019

Mô tả chi tiết

File revit 2019 - file bản vẽ nhà biệt thự tân cổ 2 tầng. Full hạng mục kiến trúc

Với thiết kế file cad này, các bạn xem file bản vẽ từ hình ảnh dưới đây: https://drive.google.com/drive/folders/19iyxczlmqayeu2xpocggiipilbbgsfap?usp=sharing

Bình luận (0)


Đánh giá (1)

ĐÁNH GIÁ TRUNG BÌNH
5/5

(1 Nhận xét)
Bản vẽ rất tốt (1)
Bản vẽ tốt (0)
Bản vẽ rất hay (0)
Bản vẽ hay (0)
Bình thường (0)
Chia sẻ nhận xét về bản vẽ
 Viết nhận xét của bạn
KTS Long
Thời gian 08:47
13/1/2021
Bản vẽ rất tốt   
 Đã mua bản vẽ tại Banvenhadep.vn
Bản vẽ thiết tốt thích hợp để tham khảo
HỖ TRỢ TRỰC TUYẾN