MÃ BẢN VẼ
58136
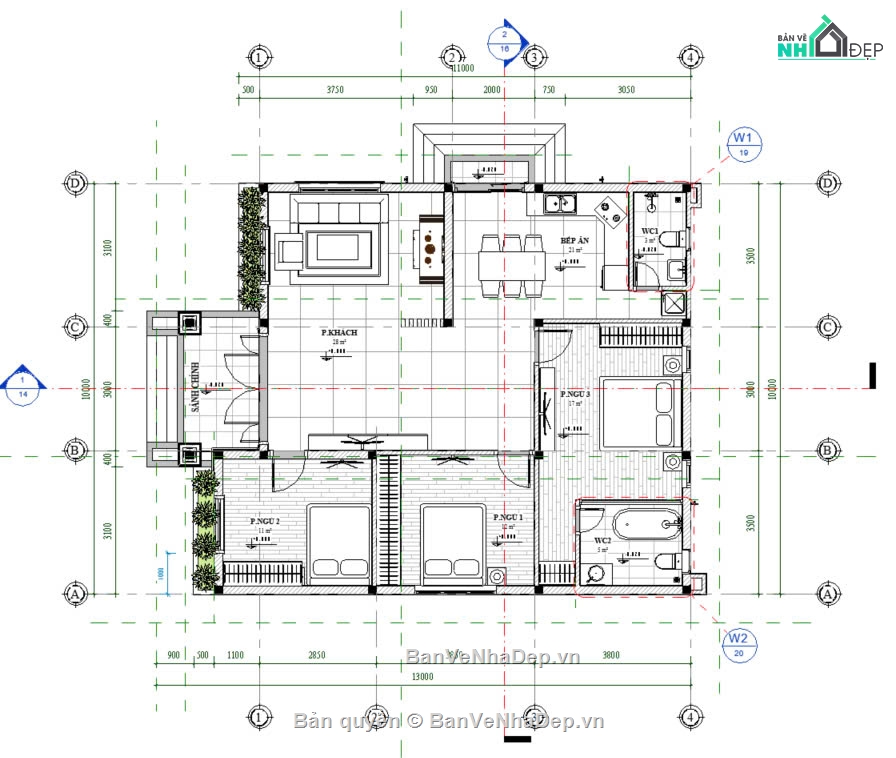
Revit mẫu biệt thự mái thái kích thước: 10x11m (đầy đủ model kiến trúc, kết cấu, điện nước, tặng kèm bộ sưu tập áp dụng cho các nhà ở dụng)
Ngôi nhà có bản vẽ đối xứng với cửa sắt chính lớn, hai cửa sắt sổ hai bên và hai cửa sắt sổ tròn nhỏ trên tầng áp mái. mái lợp ngói xanh với các tầng mái chồng lên nhau, tạo điểm nhấn kiến trúc. phần chân tường
Ngày đăng: 27/5/2025
File download:
FILE REVIT BIET THU MAI THAI KT11X10M FULL KT+KC+DN +THU VIEN..zip
Dung lượng file:
254 MB
Phong cách: Hiện đại
Kích thước: Rộng 10m, Dài 11m, DT 110m2
CÔNG CỤ THIẾT KẾ:

Autocad

Sketchup

3D Max

Revit

Khác...
CÁC HẠNG MỤC CỦA BẢN VẼ:

Kiến trúc

Kết cấu

Điện

Nước

PCCC

Phối cảnh

Dự toán

Tài liệu

Khác...
NGƯỜI ĐĂNG
Bản vẽ
1
Bộ sưu tập
0
Đánh giá (1)
5/5
Ngày tham gia
14/9/2023
Mô tả chi tiết
1. tổng quan kiến trúc
-
ngôi nhà có file cad cấp 4 với phần mái dốc đặc trưng của phong cách nhà mái thái.
-
hình khối công trình khá cân đối, với bố cục mặt tiền được file cad đối xứng.
-
ngôi nhà được xây trên nền móng cao, có bậc tam cấp dẫn lên cửa sắt chính, giúp tôn lên vẻ bề thế và tránh ẩm thấp.
2. phần mái
-
mái được file cad theo phong cách mái thái với độ dốc lớn, giúp thoát nước mưa nhanh chóng.
-
hệ mái có nhiều lớp chồng lên nhau, tạo điểm nhấn kiến trúc và giúp tăng tính thẩm mỹ.
-
vật liệu mái là ngói xanh sẫm, mang lại vẻ cao cấp nhưng vẫn giữ nét truyền thống.
-
phần mái hiên nhỏ phía trước tạo điểm nhấn, che chắn cho cửa sắt chính khỏi nắng mưa.
3. mặt tiền
-
cửa chính: đầy đủ 4 cánh, làm từ gỗ với kính trang trí, tạo sự hiện đại và thoáng sáng cho không gian bên trong.
-
cửa sổ: có hai cửa sắt sổ lớn hai bên cửa sắt chính, khung gỗ kết hợp kính, giúp lấy sáng và thông gió tốt.
-
cửa sổ tròn: hai cửa sắt sổ tròn nhỏ ở tầng áp mái tạo điểm nhấn độc đáo, giúp công trình bớt đơn điệu.
-
tường mặt tiền: phối hợp giữa sơn trắng chủ đạo và các mảng ốp gạch xám ở chân tường, giúp tăng tính bền vững và tạo hiệu ứng thị giác đẹp mắt.
4. hệ thống bậc tam cấp và nền móng
-
phần nền nhà được nâng cao so với mặt đất, giúp hạn chế ngập úng.
-
bậc tam cấp dẫn lên cửa sắt chính được file cad rộng rãi, tạo cảm giác bề thế.
-
hai bên bậc thềm có cột trang trí nhỏ, giúp công trình thêm chắc chắn và đẹp mắt.
5. đầy đủ phụ trợ
-
hai bên nhà có lối đi phụ, trong đó bên trái có bậc thang dẫn lên khu vực phụ.
-
một bên nhà có hệ lam chắn giúp che nắng và tăng tính thẩm mỹ.
kết luận
công trình mang lạ nhà ở mái thái với file cad hài hòa, kết hợp giữa yếu tố truyền thống và hiện đại. đây là phong cách nhà phù hợp với vùng nông thôn hoặc ngoại ô, có khả năng chống nóng, chống ẩm tốt, đồng thời tạo cảm giác sang trọng, ấm cúng.
Bình luận (0)
Đánh giá (1)
ĐÁNH GIÁ TRUNG BÌNH
5/5
(
1 Nhận xét)
Bản vẽ rất tốt (1)
Bản vẽ tốt (0)
Bản vẽ rất hay (0)
Bản vẽ hay (0)
Bình thường (0)
Bản vẽ rất tốt
Đã đăng bản vẽ này
Bản vẽ thiết tốt thích hợp để tham khảo