MÃ BẢN VẼ
52334

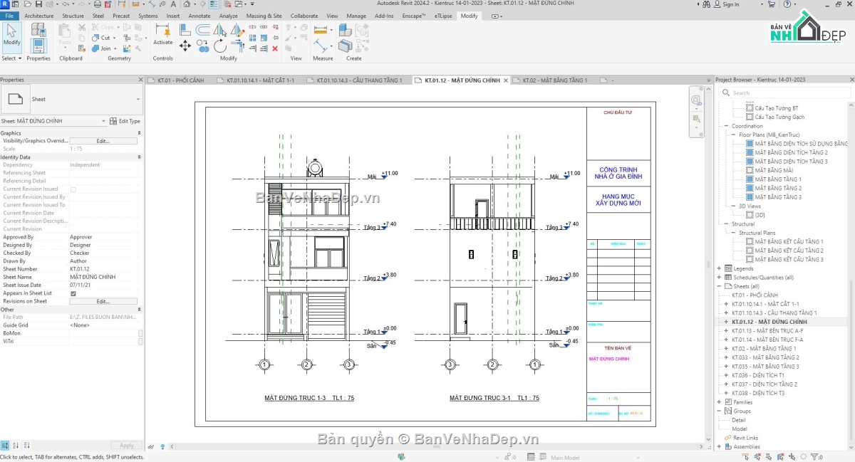
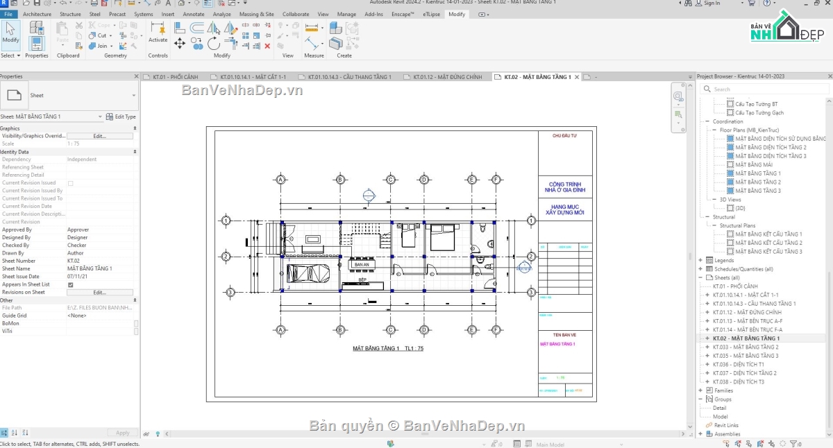
Revit nhà ở 3 tầng 1 sân thượng 6x18m thiết kế cao cấp

  (1 Nhận xét)     Viết đánh giá        0     0     140

Files revit nhà ở 3 tầng 1 sân thượng 6x18m thiết kế cao cấp có nội ngoại thất

Ngày đăng: 25/12/2024
File download: Kientruc 14-01-2023.rvt
Dung lượng file: 44.3 MB
Phong cách: Hiện đại
Kích thước: Rộng 6m, Dài 18m, DT 108m2
CÔNG CỤ THIẾT KẾ:
Autocad
Sketchup
3D Max
Revit
Khác...
CÁC HẠNG MỤC CỦA BẢN VẼ:
Kiến trúc
Kết cấu
Điện
Nước
PCCC
Phối cảnh
Dự toán
Tài liệu
Khác...

NGƯỜI ĐĂNG
(Hạng vàng)
Xem trang
bản vẽ nhà
Bản vẽ
14
bộ sưu tập bản vẽ nhà
Bộ sưu tập
0
đánh giá mẫu bản vẽ
Đánh giá (14)
5/5
ngày tham gia bản vẽ nhà đẹp
Ngày tham gia
24/4/2021

Mô tả chi tiết

Files revit nhà ở 3 tầng 1 sân thượng 6x18m thiết kế cao cấp có nội ngoại thất mong anh chị ủng hộ.

Bình luận (0)


Đánh giá (1)

ĐÁNH GIÁ TRUNG BÌNH
5/5

(1 Nhận xét)
Bản vẽ rất tốt (1)
Bản vẽ tốt (0)
Bản vẽ rất hay (0)
Bản vẽ hay (0)
Bình thường (0)
Chia sẻ nhận xét về bản vẽ
 Viết nhận xét của bạn
lập lê minh
Thời gian 15:16
1/2/2025
Bản vẽ rất tốt   
 Đã đăng bản vẽ này
Bản vẽ thiết tốt thích hợp để tham khảo
HỖ TRỢ TRỰC TUYẾN