Đăng nhập
Đăng kí
NẠP TIỀN
THƯ VIỆN BẢN VẼ
HỘI KIẾN TRÚC SƯ
ĐĂNG TIN & THẢO LUẬN
CÔNG CỤ
Autocad
Sketchup
3D Max
Revit
Khác...
DANH MỤC
Biệt thự
Lâu đài, dinh thự
Biệt thự 1 Tầng
Biệt thự 2 Tầng
Biệt thự 3 Tầng
Biệt thự Trên 3 Tầng
Nhà phố
Nhà phố 1 Tầng
Nhà phố 2 Tầng
Nhà phố 3 Tầng
Nhà phố 4 Tầng
Nhà phố Trên 4 Tầng
Nhà xưởng
Nội thất
Biệt thự
Nhà phố
Chung cư, Văn phòng
Cửa hàng, Quán
Nội thất khác...
Ngoại thất
Bản vẽ khác...
Nhà thờ, Đình chùa
Chung cư, Văn phòng
Công trình xã hội
Cửa hàng, Quán
Khách sạn
Nhà cấp 4
Bản vẽ khác...
BỘ SƯU TẬP
Tìm bản vẽ
Autocad
Sketchup
3D Max
Revit
Khác...
ĐĂNG BẢN VẼ
×
ĐĂNG NHẬP
Đăng nhập nhanh
Log in
Log in
Bạn chưa có tài khoản Banvenhadep.vn?
Đăng ký ngay
Email
*
Password
*
Mã khác
Quên mật khẩu?
Đăng nhập
Trang chủ
Nhà phố "Nhà phố 2 Tầng"
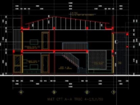
Sketchup nhà phố 2 tầng 4x23m
MÃ BẢN VẼ
49131
Sketchup nhà phố 2 tầng 4x23m
(
1 Nhận xét
)
Viết đánh giá
Bình luận:
0
Download:
0
Lượt xem:
164
Hiện nay có rất nhiều mẫu thiết kế đẹp, hôm nay mình chia sẻ mẫu Nhà phố 2 tầng được mình dựng chi tiết trên phần mềm sketchup, file được thiết kế theo phong cách hiện đại
Danh mục:
Nhà phố
Nhà phố 2 Tầng
Ngày đăng:
23/8/2024
File download:
nhapho2tang.rar
Dung lượng file:
40.6 MB
Phong cách:
Hiện đại
Kích thước:
Rộng
4m
, Dài
23m
, DT
92m
2
CÔNG CỤ THIẾT KẾ:
Autocad
Sketchup
3D Max
Revit
Khác...
CÁC HẠNG MỤC CỦA BẢN VẼ:
Kiến trúc
Kết cấu
Điện
Nước
PCCC
Phối cảnh
Dự toán
Tài liệu
Khác...
NGƯỜI ĐĂNG
Thanh Tâm
(Hạng vàng)
Xem
trang
Bản vẽ
1639
Bộ sưu tập
0
Đánh giá (
1711
)
5/5
Ngày tham gia
27/5/2022
Mô tả chi tiết
Dựng model su không còn xa lạ với các bạn đang theo học và am hiểu về phần mềm dựng sketchup, với thiết kế nhà phố 2 tầng dựng trên sketchup, phong cách thiết kế đơn giản nhưng toát lên vẻ đẹp sang trọng, mẫu thiết kế cho các bạn tham khảo nghiên cứu.
Bình luận (
0
)
BÌNH LUẬN
BÌNH LUẬN
Đánh giá (
1
)
ĐÁNH GIÁ TRUNG BÌNH
5
/5
(
1 Nhận xét
)
Bản vẽ rất tốt
(1)
Bản vẽ tốt
(0)
Bản vẽ rất hay
(0)
Bản vẽ hay
(0)
Bình thường
(0)
Chia sẻ nhận xét về bản vẽ
Viết nhận xét của bạn
Thanh Tâm
Thời gian 11:43
5/10/2024
Bản vẽ rất tốt
Đã đăng bản vẽ này
Bản vẽ thiết tốt thích hợp để tham khảo
Hiển thị 20
Hiển thị 50
Tất cả
×
NẠP TIỀN DOWNLOAD NGAY
Bạn đang download:
[Mã bản vẽ
49131
]
Phí tải
50.000
đ
CHUYỂN KHOẢN
Bạn cần đăng nhập để tải bản vẽ qua chức năng này!
ĐĂNG NHẬP NGAY
Phí download
50.000
đ
DOWNLOAD
NGAY
Link download dự phòng
Bạn có bản vẽ hay
ĐĂNG
BÁN
NGAY
LƯU
VÀO
YÊU THÍCH
Báo
vi phạm
bản quyền
Gửi hỗ trợ - Báo lỗi
Gửi ngay
CHIA SẺ NHANH
(BẢN VẼ
49131
)
Gửi tới email bạn bè
TỪ KHÓA LIÊN QUAN
nhà phố 2 tầng
Model SU Nhà phố 2 tầng
file sketchup nhà phố 2 tầng
Bản vẽ tương tự
BẢN VẼ
Nhà phố 2 Tầng
38
Nhà ở phố 2 tầng 5x21.5m
150.000
đ
BẢN VẼ
Nhà phố 2 Tầng
33
Revit nhà ở phố 2 tầng diện tích xây dựng 7x15m kiến trúc, kết cấu
159.000
đ
BẢN VẼ
Nhà phố 2 Tầng
26
File revit nhà ở 2 tầng kích thước thiết kế 7x17m
229.000
đ
BẢN VẼ
Nhà phố 2 Tầng
24
File revit mẫu nhà phố 2 tầng 8x14m
179.000
đ
BẢN VẼ
Nhà phố 2 Tầng
38
Nhà phố 2 tầng diện tích 5x14m model kt, kc, dn, dt
269.000
đ
Gợi ý cho bạn
BẢN VẼ
Nhà phố 2 Tầng
1392
Bản vẽ autocad Nhà phố 2 tầng có vỉ ruồi 6.8x9.35m
85.000
đ
BẢN VẼ
Nhà thờ, Đình chùa
2109
Bản vẽ autocad Nhà thờ họ 5 gian gỗ lim kích thước 6.2x13.5m
85.000
đ
BẢN VẼ
Biệt thự 2 Tầng
967
Bản vẽ autocad Biệt thự 2 tầng kích thước 9.4x14.3m
75.000
đ
BẢN VẼ
Nhà phố 2 Tầng
769
Nhà phố hiện đại đất hình thang 2 tầng 8.1x11.5m
150.000
đ
BẢN VẼ
Biệt thự 2 Tầng
813
Biệt thự 2 tầng chữ L 5x8x14.5m vẽ bằng revit
200.000
đ
HỖ TRỢ TRỰC TUYẾN