MÃ BẢN VẼ
3135

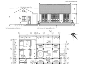
Thiết kế autocad bản vẽ nhà thờ tộc họ đẹp

  (1 Nhận xét)     Viết đánh giá        0     2     900

Chia sẻ gửi tới anh chị tham khảo file mình vừa mới vẽ xong. Thiết kế nhà thờ tộc họ rất đẹp và ưa nhìn.

Ngày đăng: 01/11/2016
File download: [filethietke.vn]nhà thờ.rar
Dung lượng file: 2.28 MB
Phong cách: Hiện đại
Kích thước: ...
CÔNG CỤ THIẾT KẾ:
Autocad
Sketchup
3D Max
Revit
Khác...
CÁC HẠNG MỤC CỦA BẢN VẼ:
Kiến trúc
Kết cấu
Điện
Nước
PCCC
Phối cảnh
Dự toán
Tài liệu
Khác...

NGƯỜI ĐĂNG
(Hạng vàng)
Xem trang
bản vẽ nhà
Bản vẽ
230
bộ sưu tập bản vẽ nhà
Bộ sưu tập
0
đánh giá mẫu bản vẽ
Đánh giá (249)
4/5
ngày tham gia bản vẽ nhà đẹp
Ngày tham gia
12/8/2014

Mô tả chi tiết

Hồ sơ thiết kế rất chi tiết và đầy đủ, mời mọi người tải file tham khảo ạ.

Hy vọng với chia sẻ chút phí nhỏ này sẽ hữu ích với tất cả các bạn.

Mọi người có thể vào trang cá nhân thành viên của mình để tham khảo được nhiều mẫu hơn ạ.

Bình luận (0)


Đánh giá (1)

ĐÁNH GIÁ TRUNG BÌNH
5/5

(1 Nhận xét)
Bản vẽ rất tốt (1)
Bản vẽ tốt (0)
Bản vẽ rất hay (0)
Bản vẽ hay (0)
Bình thường (0)
Chia sẻ nhận xét về bản vẽ
 Viết nhận xét của bạn
Nghia designer
Thời gian 11:46
7/1/2020
Bản vẽ rất tốt   
 Đã đăng bản vẽ này
Bản vẽ thiết tốt thích hợp để tham khảo
HỖ TRỢ TRỰC TUYẾN