MÃ BẢN VẼ
29483
Thiết kế autocad Nhà phố tân cổ điển 5 tầng kích thước 4x11.5m
(
1 Nhận xét)
Viết đánh giá
Bình luận: 0
Download: 0
Lượt xem: 630
Mẫu bản vẽ kiến trúc nhà phân lô thiết kế phong cách tân cổ điển 5 tầng 4x11.5m
Ngày đăng: 27/4/2023
File download:
Nha pho 5 tang 4.08x11.5m.rar
Dung lượng file:
9.54 MB
Phong cách: Tân cổ điển
Kích thước: Rộng 4m, Dài 11,5m, DT 46m2
CÔNG CỤ THIẾT KẾ:

Autocad

Sketchup

3D Max

Revit

Khác...
CÁC HẠNG MỤC CỦA BẢN VẼ:

Kiến trúc

Kết cấu

Điện

Nước

PCCC

Phối cảnh

Dự toán

Tài liệu

Khác...
NGƯỜI ĐĂNG
Bản vẽ
259
Bộ sưu tập
0
Đánh giá (601)
5/5
Ngày tham gia
25/2/2023
Mô tả chi tiết
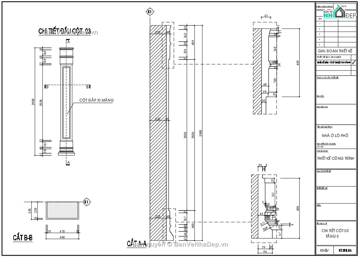
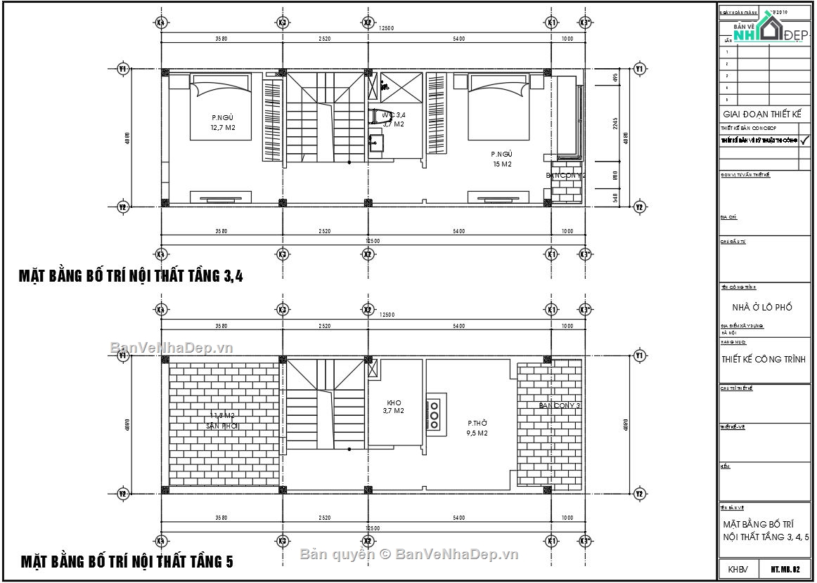
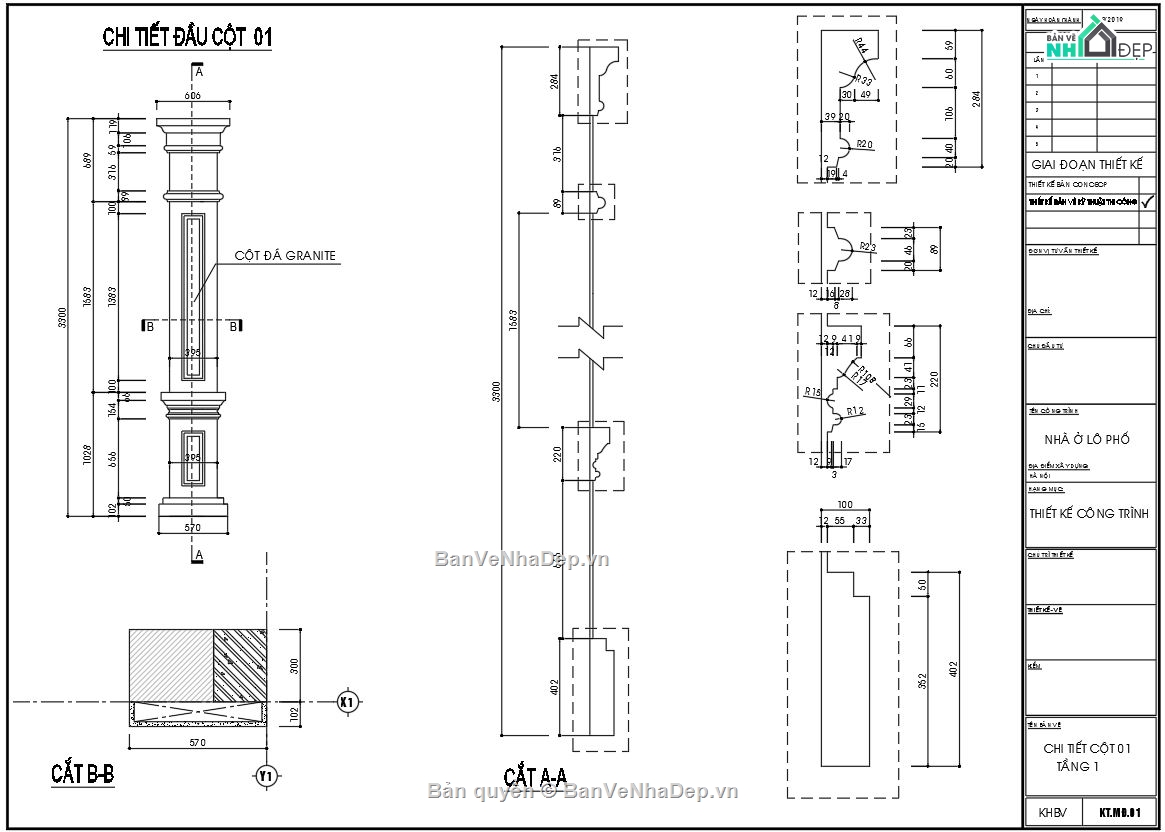
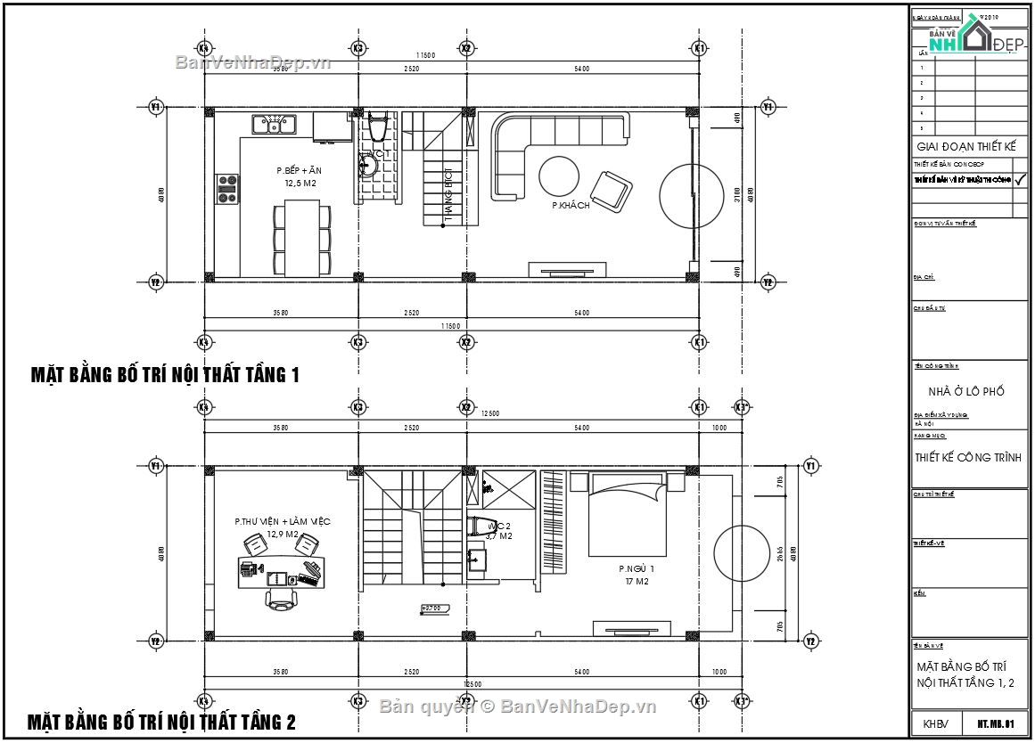
Bản vẽ thiết kế nhà phố tân cổ điển 5 tầng. Công năng các tầng như sau:
- Tầng 1: Phòng khách, Bếp + ăn, Wc tầng
- Tầng 2: 01 ngủ, 01 phòng làm việc: 01 Wc tầng
- Tầng 3, Tầng 4: 01 ngủ, 01 Wc tầng.
- Tầng tum: Phòng thờ, kho, sân phơi, ban công
Bản vẽ Autocad bao gồm:
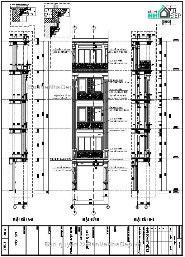
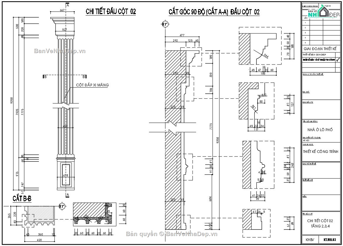
- Kiến trúc: Mặt bằng, mặt đứng, mặt cắt, Chi tiết mặt đứng, chi tiết wc, chi tiết thang
- Kết cấu: Bản vẽ TKKT
Bình luận (0)
Đánh giá (1)
ĐÁNH GIÁ TRUNG BÌNH
5/5
(
1 Nhận xét)
Bản vẽ rất tốt (1)
Bản vẽ tốt (0)
Bản vẽ rất hay (0)
Bản vẽ hay (0)
Bình thường (0)
7Plus
Thời gian 00:12
27/4/2023
Bản vẽ rất tốt
Đã đăng bản vẽ này
Bản vẽ rất tốt và phù hợp để tham khảo