MÃ BẢN VẼ
45983
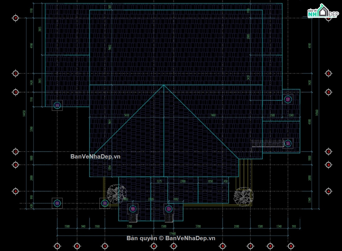
Thiết kế mẫu biệt thự vườn 18.5x15.5m (4 phòng ngủ)
(
1 Nhận xét)
Viết đánh giá
Bình luận: 0
Download: 5
Lượt xem: 436
Mẫu bản vẽ file cad file cad (có file sketchup) mẫu biệt thự vườn gửi các bạn tham khảo!
Ngày đăng: 22/3/2024
File download:
117. Biệt thự vườn 18.5x15.5m.rar
Dung lượng file:
70 MB
Phong cách: Hiện đại
Kích thước: Rộng 18,5m, Dài 15,5m, DT 286,75m2
CÔNG CỤ THIẾT KẾ:

Autocad

Sketchup

3D Max

Revit

Khác...
CÁC HẠNG MỤC CỦA BẢN VẼ:

Kiến trúc

Kết cấu

Điện

Nước

PCCC

Phối cảnh

Dự toán

Tài liệu

Khác...
NGƯỜI ĐĂNG
Bản vẽ
9
Bộ sưu tập
0
Đánh giá (12)
5/5
Ngày tham gia
16/3/2021
Mô tả chi tiết
thiết kế mẫu biệt thự vườn có công năng các tầng như sau: (file dwg + sketchup)
- gara, sân vườn, phòng khách, phòng thờ, 04 phòng ngủ, phòng bếp + ăn, 02 wc
hồ sơ bao gồm:
- kiến trúc:
+ phần phương án (đủ): mặt bằng, mặt cắt, mặt đứng.
+ phần đầy đủ (cơ bản): đầy đủ mặt đứng
Bình luận (0)
Đánh giá (1)
ĐÁNH GIÁ TRUNG BÌNH
5/5
(
1 Nhận xét)
Bản vẽ rất tốt (1)
Bản vẽ tốt (0)
Bản vẽ rất hay (0)
Bản vẽ hay (0)
Bình thường (0)
Hoàng
Thời gian 23:10
5/4/2024
Bản vẽ rất tốt
Đã mua bản vẽ tại Banvenhadep.vn
Bản vẽ thiết tốt thích hợp để tham khảo