MÃ BẢN VẼ
59994
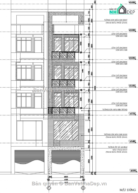
Thiết kế nhà dân 4 tầng 4.3x17m
Share file cad nhà dân 4 tầng diện tích xây dựng 4.3x17m đầy đủ kiến trúc kết cấu điện nước
Ngày đăng: 21/7/2025
File download:
.rar
Dung lượng file:
MB
Phong cách: Hiện đại
Kích thước: Rộng 4,3m, Dài 17m, DT 73,1m2
CÔNG CỤ THIẾT KẾ:

Autocad

Sketchup

3D Max

Revit

Khác...
CÁC HẠNG MỤC CỦA BẢN VẼ:

Kiến trúc

Kết cấu

Điện

Nước

PCCC

Phối cảnh

Dự toán

Tài liệu

Khác...
NGƯỜI ĐĂNG
Bản vẽ
355
Bộ sưu tập
0
Đánh giá (458)
5/5
Ngày tham gia
9/6/2025
Mô tả chi tiết
Công năng các tầng
- tầng 1: sân trước - gara - bếp ăn
- tầng 2: phòng khách - sinh hoạt chung
- tầng 3, 4: 2 phòng ngủ 2 vệ sinh
- tầng 5: phòng ngủ - phòng thờ
- tầng 6: sân thượng, giặt phơiý tưởng thiế
Bình luận (0)
Đánh giá (1)
ĐÁNH GIÁ TRUNG BÌNH
5/5
(
1 Nhận xét)
Bản vẽ rất tốt (1)
Bản vẽ tốt (0)
Bản vẽ rất hay (0)
Bản vẽ hay (0)
Bình thường (0)
Bản vẽ rất tốt
Đã mua bản vẽ tại Banvenhadep.vn
Bản vẽ thiết tốt thích hợp để tham khảo