MÃ BẢN VẼ
29477

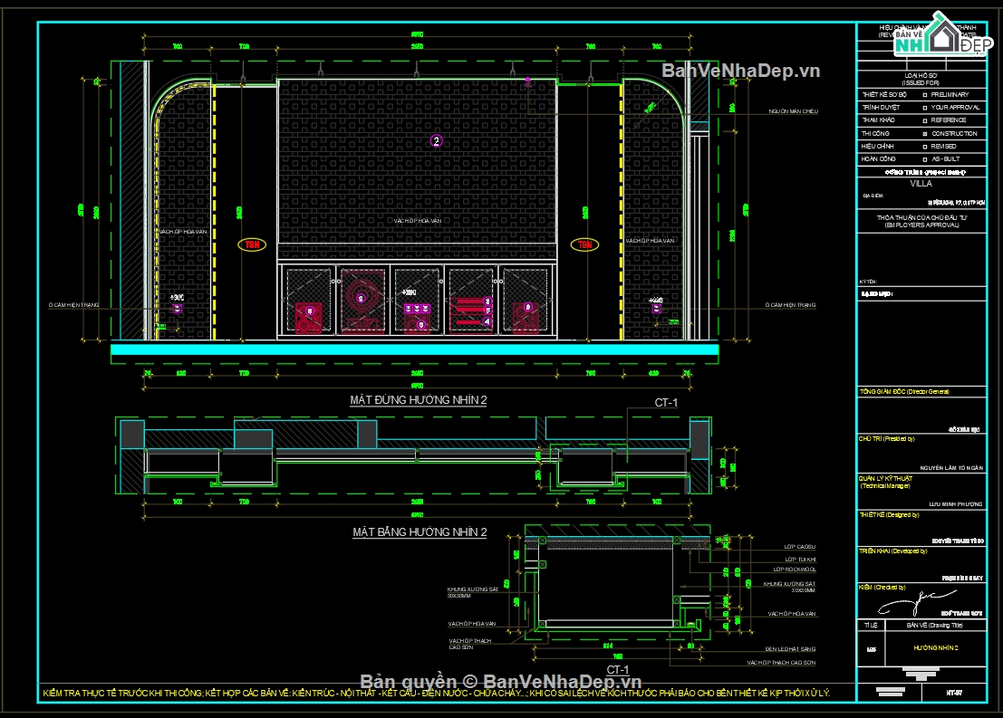
Bản vẽ autocad thiết kế nội thất Phòng xem phim 5.7x7m

  (2 Nhận xét)     Viết đánh giá        0     1     629

Mình xin chia sẻ file cad bản vẽ phòng xem phim để các bạn tham khảo

Ngày đăng: 25/4/2023
File download: BAN VE NOI THAT PHONG XEM PHIM.dwg
Dung lượng file: 6.59 MB
Phong cách: Hiện đại
Kích thước: Rộng 5,7m, Dài 7m, DT 39,9m2
CÔNG CỤ THIẾT KẾ:
Autocad
Sketchup
3D Max
Revit
Khác...
CÁC HẠNG MỤC CỦA BẢN VẼ:
Kiến trúc
Kết cấu
Điện
Nước
PCCC
Phối cảnh
Dự toán
Tài liệu
Khác...

NGƯỜI ĐĂNG
(Hạng vàng)
Xem trang
bản vẽ nhà
Bản vẽ
1
bộ sưu tập bản vẽ nhà
Bộ sưu tập
0
đánh giá mẫu bản vẽ
Đánh giá (2)
5/5
ngày tham gia bản vẽ nhà đẹp
Ngày tham gia
22/2/2022

Mô tả chi tiết

Bản vẽ autocad triển khai nội thất phòng xem phim, triển khai kiến trúc

Chia sẻ gửi tới các bạn tham khả

Bình luận (0)


Đánh giá (2)

ĐÁNH GIÁ TRUNG BÌNH
5/5

(2 Nhận xét)
Bản vẽ rất tốt (2)
Bản vẽ tốt (0)
Bản vẽ rất hay (0)
Bản vẽ hay (0)
Bình thường (0)
Chia sẻ nhận xét về bản vẽ
 Viết nhận xét của bạn
Duy Tân Võ Văn
Thời gian 12:29
26/4/2023
Bản vẽ rất tốt   
 Đã mua bản vẽ tại Banvenhadep.vn
Thanks bạn. Đúng cái mình đang cần, bản vẽ chi tiết á.
A Way
Thời gian 20:40
25/4/2023
Bản vẽ rất tốt   
 Đã đăng bản vẽ này
Bản vẽ rất tốt và phù hợp để tham khảo
HỖ TRỢ TRỰC TUYẾN