MÃ BẢN VẼ
55991

Bản vẽ mái thái 11x18m

  (1 Nhận xét)     Viết đánh giá        0     2     89

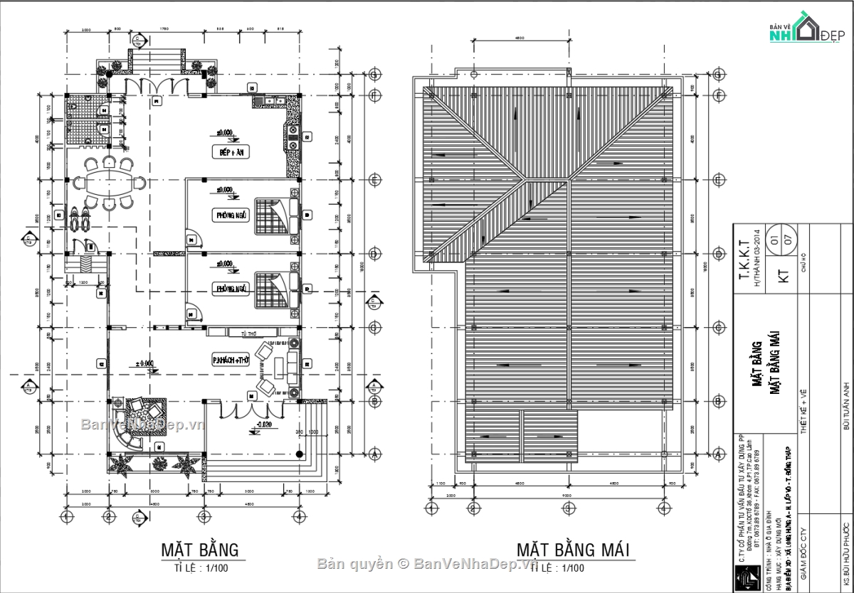
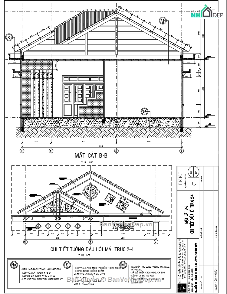
Bản vẽ mái thái 11x18m - Mái lợp tôn Công năng: 1 phòng khách+thờ, 1 phòng thờ, 2 phòng ngủ, 1 phòng bếp, WC khu khô và ướt riêng. Chi phí xây dung 300tr

Ngày đăng: 03/6/2025
File download: 31. Mai Thai Tole (11x18) - 1 Tang.rar
Dung lượng file: 6.2 MB
Phong cách: Hiện đại
Kích thước: Rộng 11m, Dài 18m, DT 198m2
CÔNG CỤ THIẾT KẾ:
Autocad
Sketchup
3D Max
Revit
Khác...
CÁC HẠNG MỤC CỦA BẢN VẼ:
Kiến trúc
Kết cấu
Điện
Nước
PCCC
Phối cảnh
Dự toán
Tài liệu
Khác...

NGƯỜI ĐĂNG
(Hạng vàng)
Xem trang
bản vẽ nhà
Bản vẽ
47
bộ sưu tập bản vẽ nhà
Bộ sưu tập
0
đánh giá mẫu bản vẽ
Đánh giá (98)
5/5
ngày tham gia bản vẽ nhà đẹp
Ngày tham gia
25/5/2024

Mô tả chi tiết

Bản vẽ mái thái 11x18m - Mái lợp tôn Công năng: 1 phòng khách+thờ, 1 phòng thờ, 2 phòng ngủ, 1 phòng bếp, WC khu khô và ướt riêng. Chi phí xây dung 300tr

Bình luận (0)


Đánh giá (1)

ĐÁNH GIÁ TRUNG BÌNH
5/5

(1 Nhận xét)
Bản vẽ rất tốt (1)
Bản vẽ tốt (0)
Bản vẽ rất hay (0)
Bản vẽ hay (0)
Bình thường (0)
Chia sẻ nhận xét về bản vẽ
 Viết nhận xét của bạn
Kỹ sư Phú
Thời gian 09:10
3/6/2025
Bản vẽ rất tốt   
 Đã đăng bản vẽ này
Bản vẽ rất tốt và phù hợp để tham khảo
HỖ TRỢ TRỰC TUYẾN