MÃ BẢN VẼ
61780

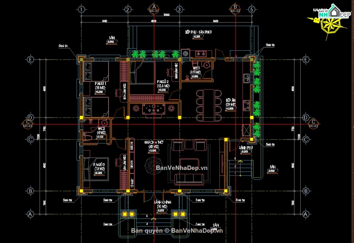
Bản vẽ kiến trúc Biệt thự 1 tầng 11x13m phong cách cổ điển Châu Âu

  (1 Nhận xét)     Viết đánh giá        0     2     134

Chia sẻ full hồ sơ bản vẽ thi công (Autocad kiến trúc) mẫu nhà vườn phong cách cổ điển châu Âu. Ngôi nhà với 3 phòng ngủ rộng rãi, công năng bố trí hợp lý.

Ngày đăng: 08/10/2025
File download: Kiến trúc chi tiết nhà vườn Phú Thọ-11x13m.dwg
Dung lượng file: 14.1 MB
Phong cách: Tân cổ điển
Kích thước: Rộng 11m, Dài 13m, DT 143m2
CÔNG CỤ THIẾT KẾ:
Autocad
Sketchup
3D Max
Revit
Khác...
CÁC HẠNG MỤC CỦA BẢN VẼ:
Kiến trúc
Kết cấu
Điện
Nước
PCCC
Phối cảnh
Dự toán
Tài liệu
Khác...

NGƯỜI ĐĂNG
(Hạng vàng)
Xem trang
bản vẽ nhà
Bản vẽ
109
bộ sưu tập bản vẽ nhà
Bộ sưu tập
0
đánh giá mẫu bản vẽ
Đánh giá (127)
5/5
ngày tham gia bản vẽ nhà đẹp
Ngày tham gia
2/4/2024

Mô tả chi tiết

Công năng

Phòng khách + thờ, phòng bếp ăn, 3 phòng ngủ

Hồ sơ thiết kế hạng mục kiến trúc

Bình luận (0)


Đánh giá (1)

ĐÁNH GIÁ TRUNG BÌNH
5/5

(1 Nhận xét)
Bản vẽ rất tốt (1)
Bản vẽ tốt (0)
Bản vẽ rất hay (0)
Bản vẽ hay (0)
Bình thường (0)
Chia sẻ nhận xét về bản vẽ
 Viết nhận xét của bạn
TungARC
Thời gian 11:54
8/10/2025
Bản vẽ rất tốt   
 Đã đăng bản vẽ này
Bản vẽ rất tốt và phù hợp để tham khảo
HỖ TRỢ TRỰC TUYẾN