MÃ BẢN VẼ
57002

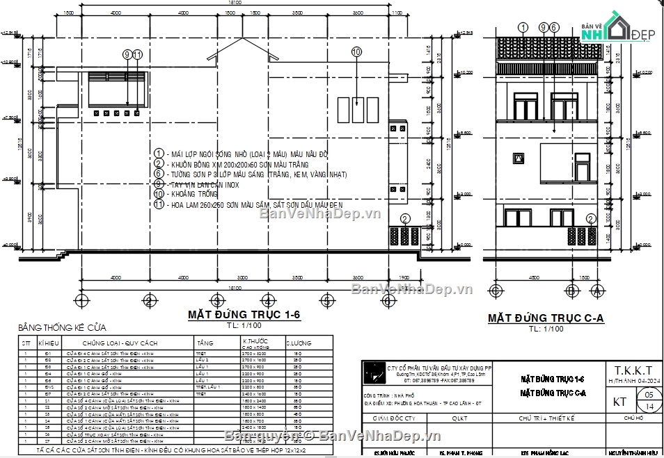
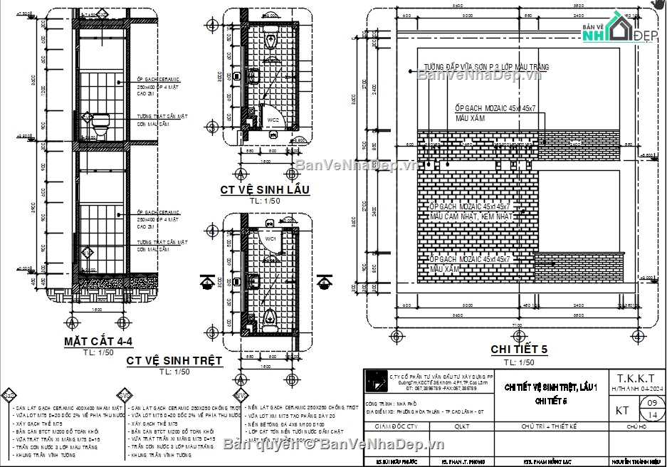
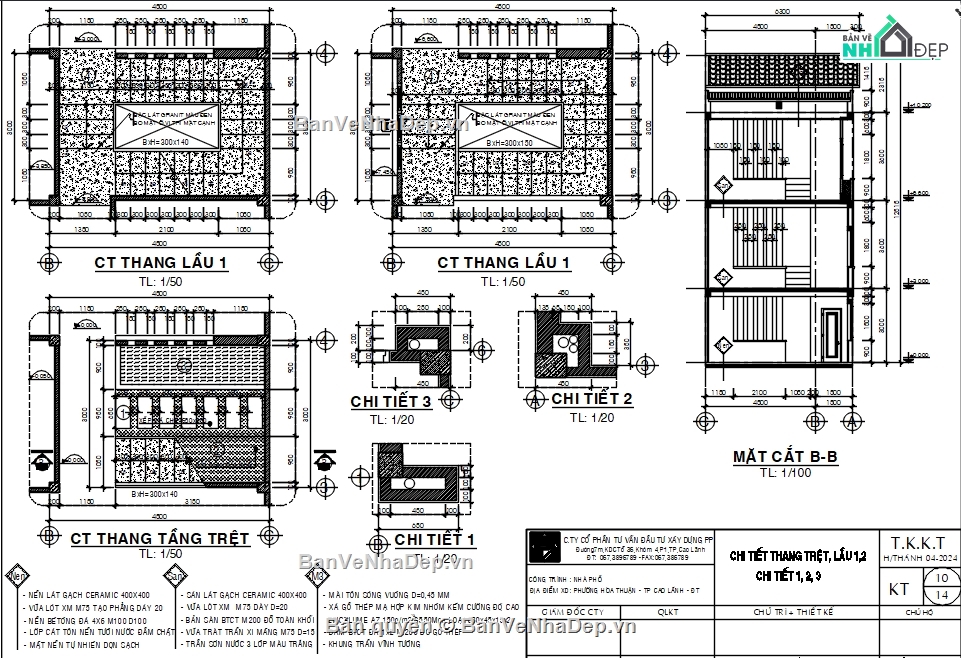
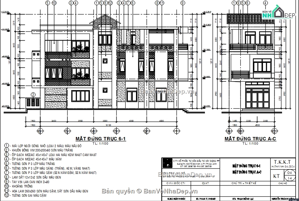
Bản vẽ nhà nhố 3 tầng 6x20m

  (1 Nhận xét)     Viết đánh giá        0     0     50

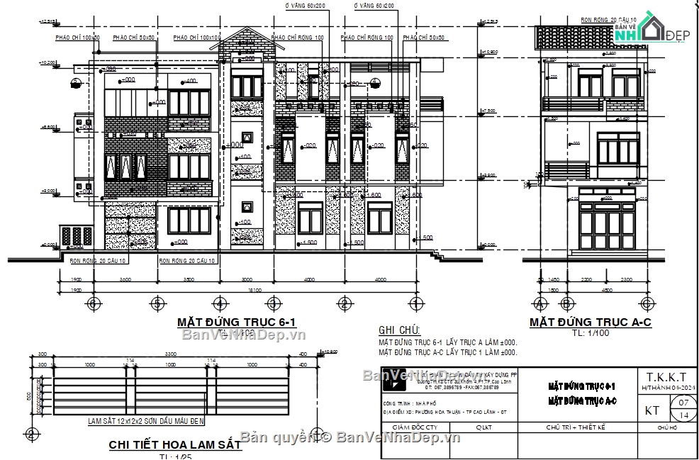
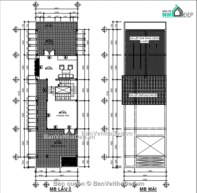
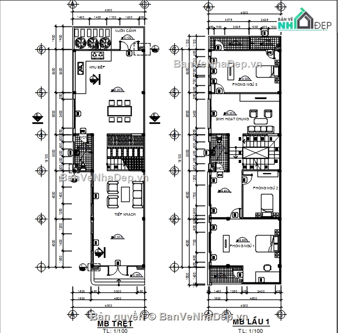
Phong cách thiết kế hiện đại. Công năng: 1 phòng khác, 1 phòng Bếp, 3 phòngNgủ, Tầng thượng là khu Sinh Hoạt Chung và phòng Thờ. Có ban công rộng rãi để tổ chức Party cuối tuần

Ngày đăng: 09/6/2025
File download: 34. Nha ong hien dai (6x20) - 3 Tang.rar
Dung lượng file: 13.3 MB
Phong cách: Hiện đại
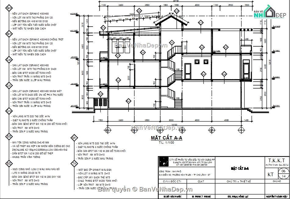
Kích thước: Rộng 6m, Dài 20m, DT 120m2
CÔNG CỤ THIẾT KẾ:
Autocad
Sketchup
3D Max
Revit
Khác...
CÁC HẠNG MỤC CỦA BẢN VẼ:
Kiến trúc
Kết cấu
Điện
Nước
PCCC
Phối cảnh
Dự toán
Tài liệu
Khác...

NGƯỜI ĐĂNG
(Hạng vàng)
Xem trang
bản vẽ nhà
Bản vẽ
47
bộ sưu tập bản vẽ nhà
Bộ sưu tập
0
đánh giá mẫu bản vẽ
Đánh giá (98)
5/5
ngày tham gia bản vẽ nhà đẹp
Ngày tham gia
25/5/2024

Mô tả chi tiết

Phong cách thiết kế hiện đại. Công năng: 1 phòng khác, 1 phòng Bếp, 3 phòngNgủ, Tầng thượng là khu Sinh Hoạt Chung và phòng Thờ. Có ban công rộng rãi để tổ chức Party cuối tuần

Bình luận (0)


Đánh giá (1)

ĐÁNH GIÁ TRUNG BÌNH
5/5

(1 Nhận xét)
Bản vẽ rất tốt (1)
Bản vẽ tốt (0)
Bản vẽ rất hay (0)
Bản vẽ hay (0)
Bình thường (0)
Chia sẻ nhận xét về bản vẽ
 Viết nhận xét của bạn
Kỹ sư Phú
Thời gian 19:48
9/6/2025
Bản vẽ rất tốt   
 Đã mua bản vẽ tại Banvenhadep.vn
Bản vẽ rất tốt và phù hợp để tham khảo
HỖ TRỢ TRỰC TUYẾN