MÃ BẢN VẼ
57011
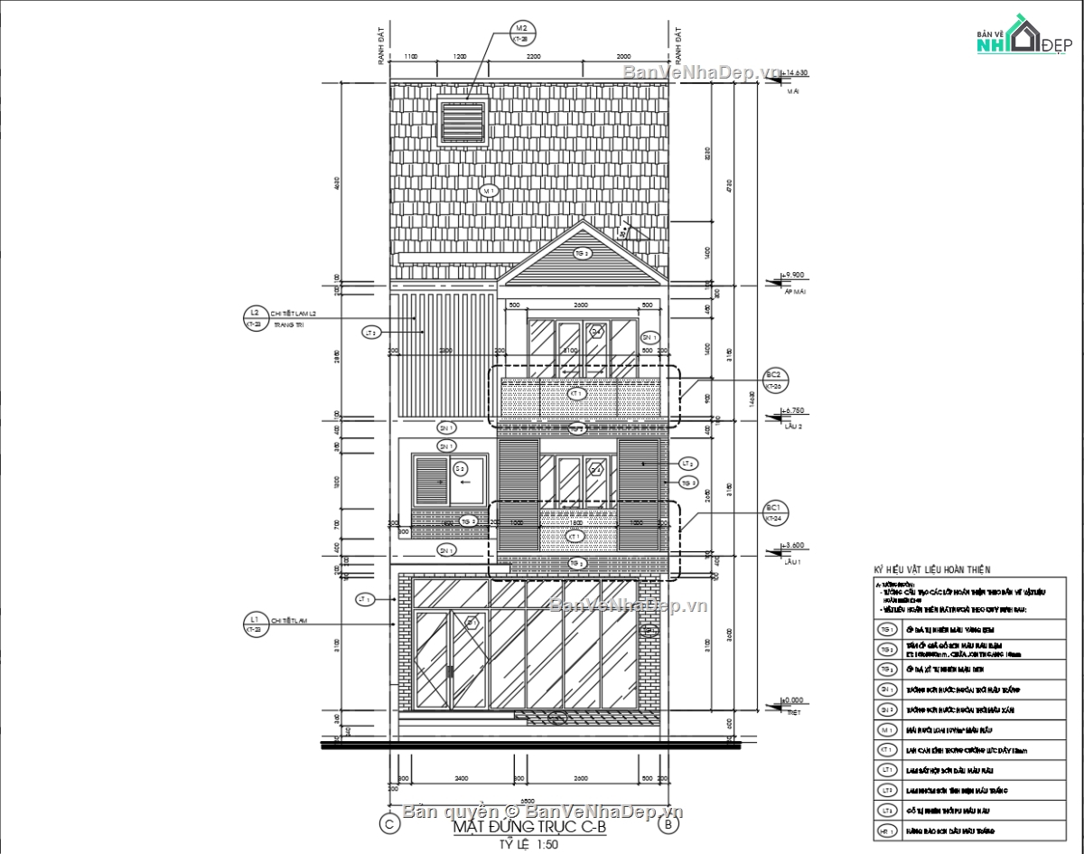
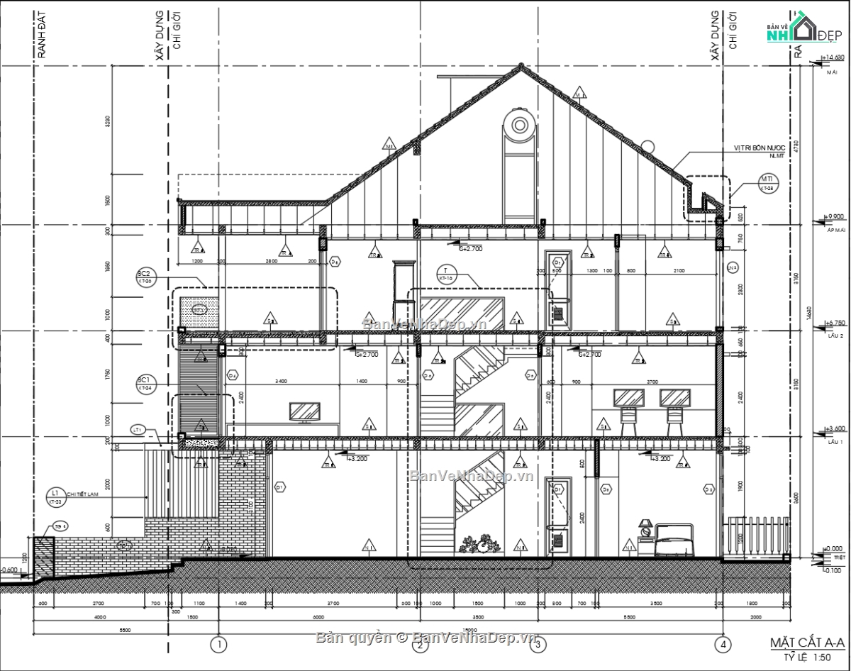
Bản vẽ nhà phố mái thái 2 tầng 6.5x22.5m
(
1 Nhận xét)
Viết đánh giá
Bình luận: 0
Download: 4
Lượt xem: 111
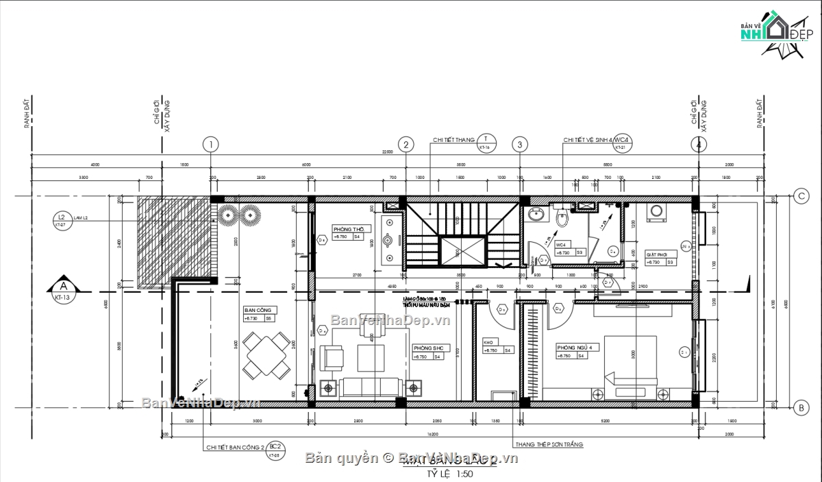
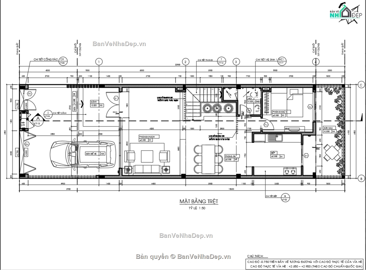
Ngôi nhà được thiết kế theo phong cách hiện đại. Công năng chính: Garare ô tô, phòng khách, phòng ăn bếp, 4 phòng ngủ, phòng thờ, phòng giặt không gian sinh hoạt chung & ban công rộng cho các tầng
Ngày đăng: 13/6/2025
File download:
37. Nha pho mai thai 6,5x22,5 - 3 Tang.rar
Dung lượng file:
15.3 MB
Phong cách: Hiện đại
Kích thước: Rộng 6,5m, Dài 22,5m, DT 146,3m2
CÔNG CỤ THIẾT KẾ:

Autocad

Sketchup

3D Max

Revit

Khác...
CÁC HẠNG MỤC CỦA BẢN VẼ:

Kiến trúc

Kết cấu

Điện

Nước

PCCC

Phối cảnh

Dự toán

Tài liệu

Khác...
NGƯỜI ĐĂNG
Bản vẽ
47
Bộ sưu tập
0
Đánh giá (98)
5/5
Ngày tham gia
25/5/2024
Mô tả chi tiết
Nhà phố hiện đại 3 tầng, diện tích 6.5x22.5m, thiết kế tối ưu cho gia đình trẻ.
Tầng 1 gồm gara, phòng khách, bếp – ăn liên thông, cùng 1 phòng ngủ khép kín.
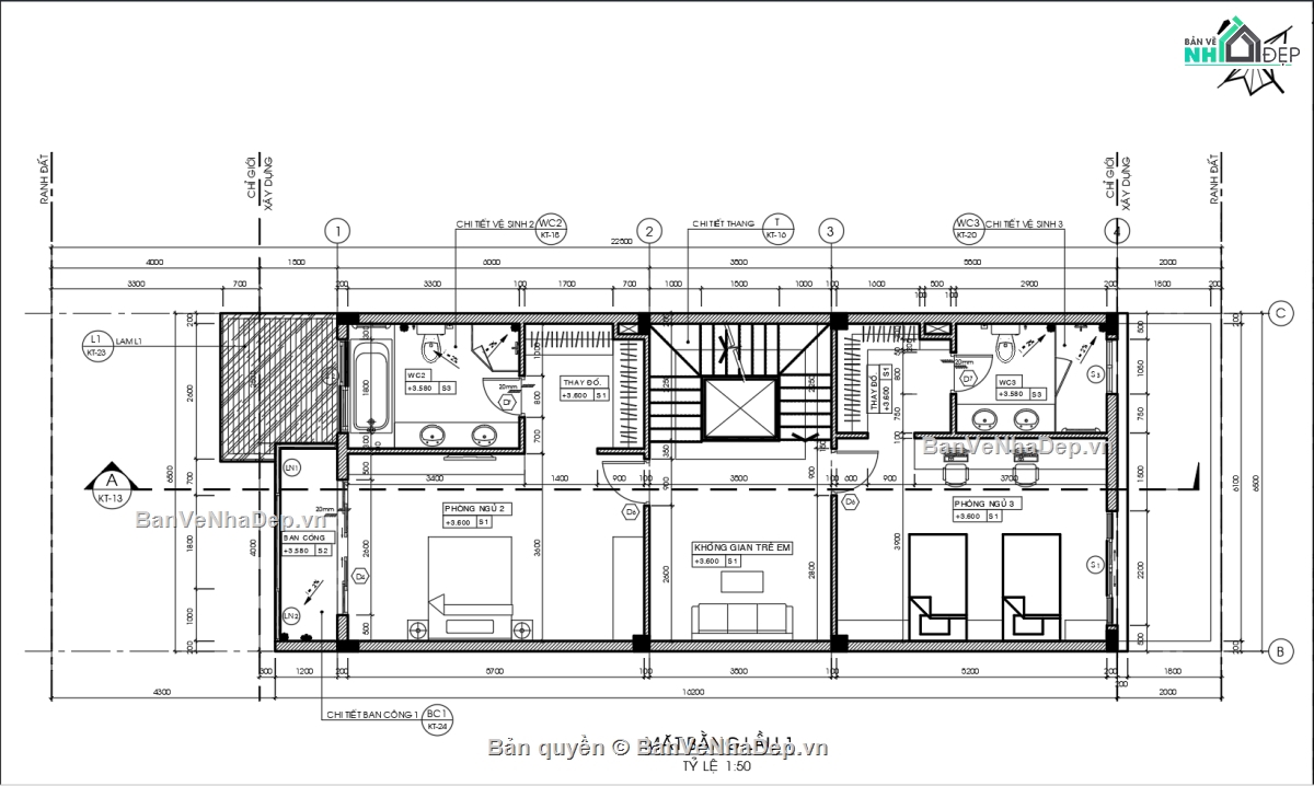
Tầng 2 bố trí không gian vui chơi trẻ em, 2 phòng ngủ riêng biệt có vệ sinh riêng và ban công thoáng.
Tầng 3 là nơi sinh hoạt chung, phòng thờ, khu giặt, 1 phòng ngủ khép kín, nổi bật với ban công rộng lý tưởng cho tiệc cuối tuần.
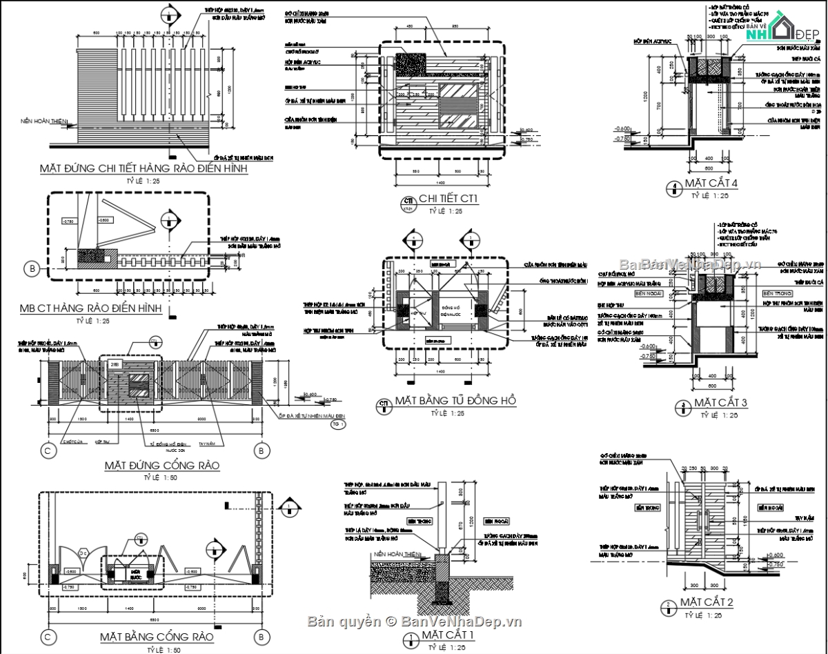
Hồ sơ bản vẽ gồm: Kiến trúc, Kết cấu, Điện, Nước, Điều Hòa Không Khí, Dự toán chi tiết công trình.
Bình luận (0)
Đánh giá (1)
ĐÁNH GIÁ TRUNG BÌNH
5/5
(
1 Nhận xét)
Bản vẽ rất tốt (1)
Bản vẽ tốt (0)
Bản vẽ rất hay (0)
Bản vẽ hay (0)
Bình thường (0)
Bản vẽ rất tốt
Đã đăng bản vẽ này
Bản vẽ rất tốt và phù hợp để tham khảo