MÃ BẢN VẼ
45153
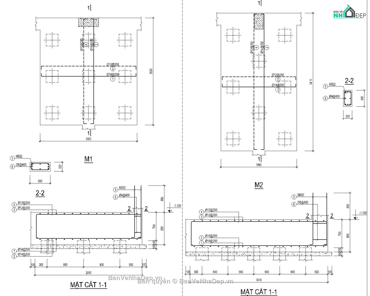
Bản vẽ thiết kế nhà biệt thự 11x16m
Biệt thự có đầy đủ phối cảnh, thiết kế chi tiết kết cấu, kiến trúc. bổ chi tiết nội thất, ngoại thất, cửa. bản vẽ được trình bày chuyên nghiệp
Ngày đăng: 13/3/2024
File download:
Bt anh QA 11x16m.rar
Dung lượng file:
64.4 MB
Phong cách: Hiện đại
Kích thước: Rộng 11m, Dài 16m, DT 176m2
CÔNG CỤ THIẾT KẾ:

Autocad

Sketchup

3D Max

Revit

Khác...
CÁC HẠNG MỤC CỦA BẢN VẼ:

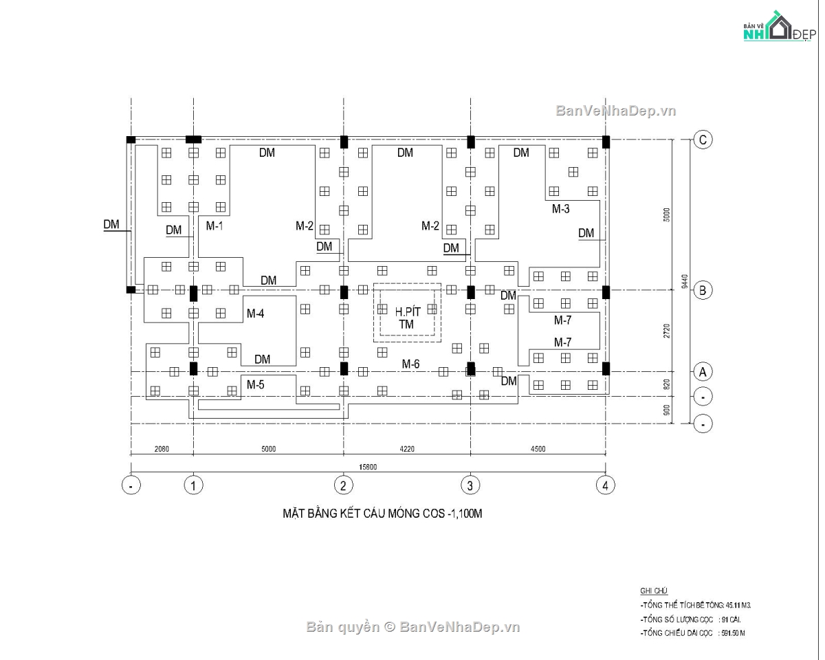
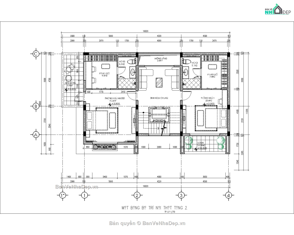
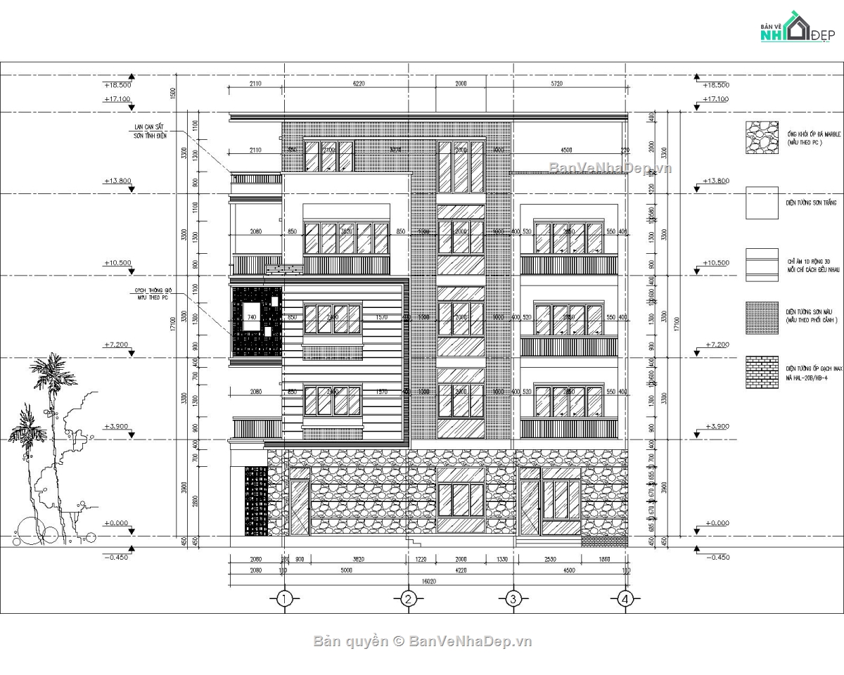
Kiến trúc

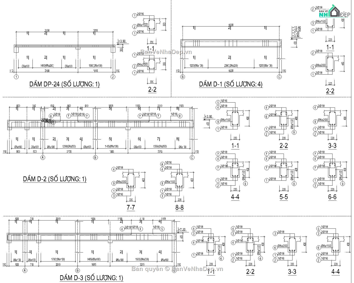
Kết cấu

Điện

Nước

PCCC

Phối cảnh

Dự toán

Tài liệu

Khác...
NGƯỜI ĐĂNG
Bản vẽ
9
Bộ sưu tập
0
Đánh giá (12)
5/5
Ngày tham gia
6/5/2018
Mô tả chi tiết
Bản vẽ thiết kế nhà
Bản vẽ autocad nhà biệt thự kích thước 11x16m
full kiến trúc, kết cấu.
full bổ chi tiết cửa.
file chạy kết cấu, bảng khối lượng đầy đủ.
bản vẽ cực kỳ chi tiết, trình bày chuyên nghiệp.
có thể linh động sửa lại với các công trình nhà dân dụng.
nhiều chi tiết cực chuyên nghiệp có thể sử dụng để lưu vào thư viện phục vụ cho các công trình sau.
Bình luận (0)
Đánh giá (1)
ĐÁNH GIÁ TRUNG BÌNH
5/5
(
1 Nhận xét)
Bản vẽ rất tốt (1)
Bản vẽ tốt (0)
Bản vẽ rất hay (0)
Bản vẽ hay (0)
Bình thường (0)
q
Thời gian 09:54
13/3/2024
Bản vẽ rất tốt
Đã mua bản vẽ tại Banvenhadep.vn
Bản vẽ rất tốt và phù hợp để tham khảo