MÃ BẢN VẼ
58034
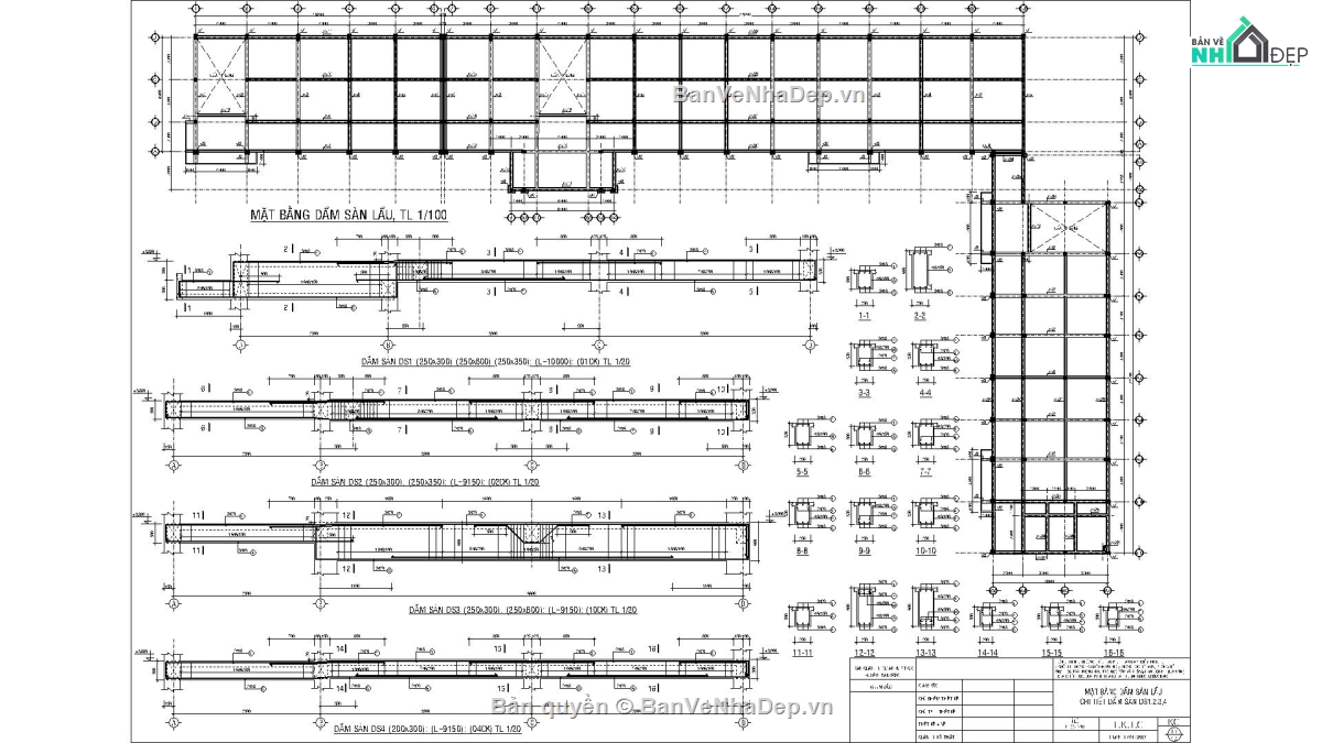
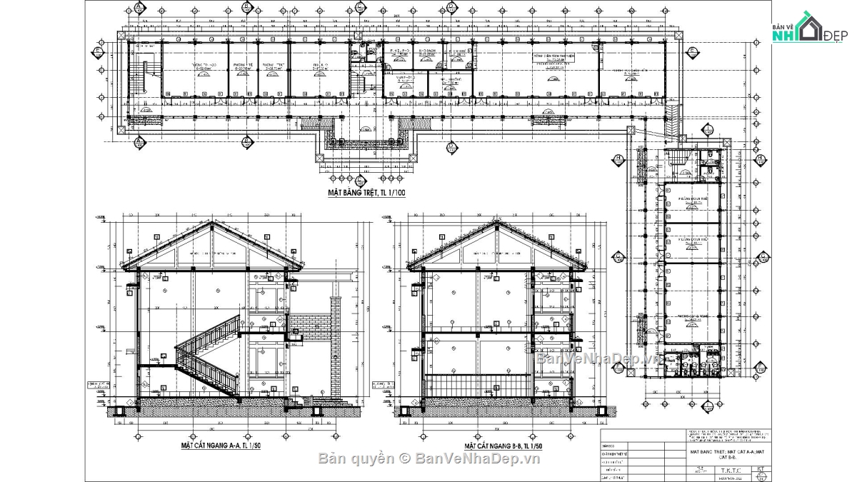
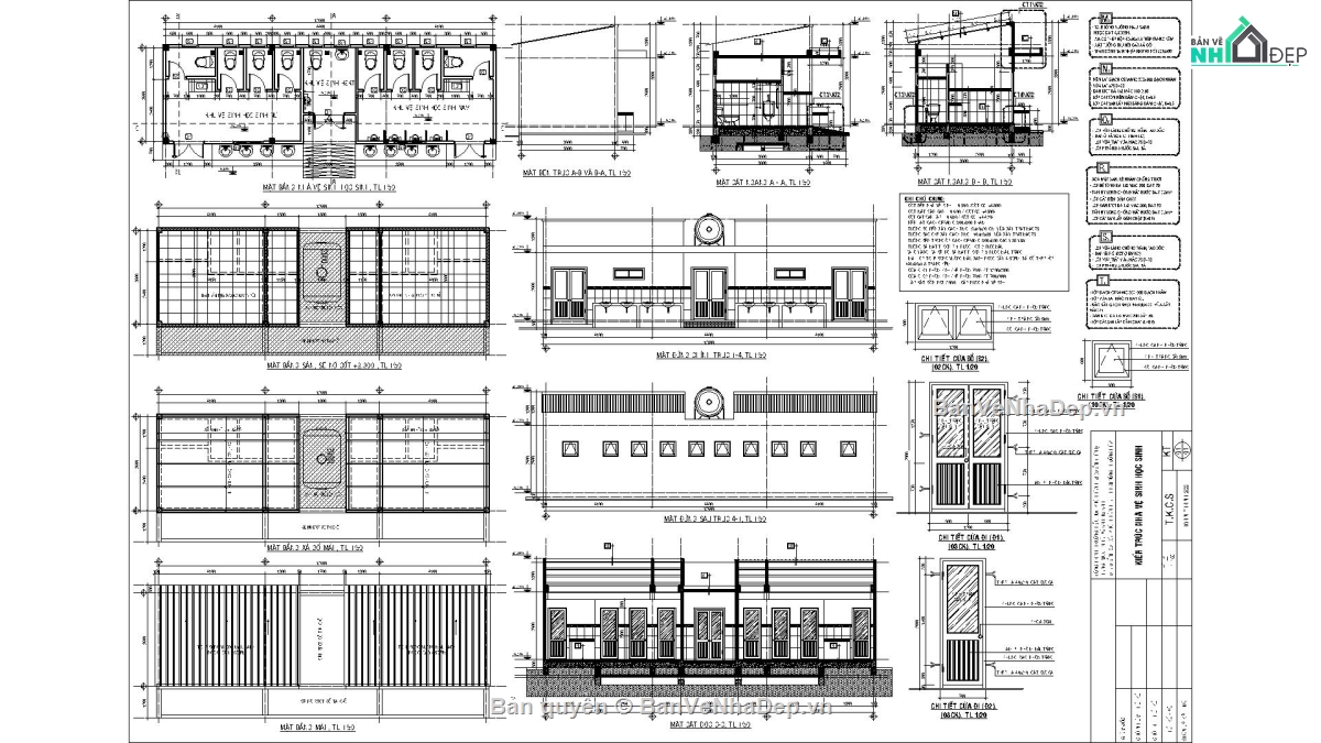
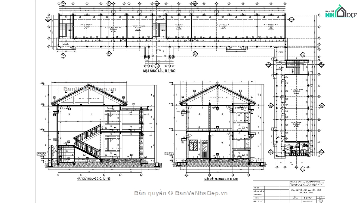
Bản vẽ trường tiểu học Phú Thành A2 64x8.9m
Chia sẻ gửi tới cho các bạn tham khảo bản vẽ trường tiểu học Phú Thành A2
Ngày đăng: 01/7/2025
File download:
4. Truong TH Phu Thanh A2 - TM.rar
Dung lượng file:
128 MB
Phong cách: Chưa xác định
Kích thước: Rộng 64m, Dài 8,9m, DT 569,6m2
CÔNG CỤ THIẾT KẾ:

Autocad

Sketchup

3D Max

Revit

Khác...
CÁC HẠNG MỤC CỦA BẢN VẼ:

Kiến trúc

Kết cấu

Điện

Nước

PCCC

Phối cảnh

Dự toán

Tài liệu

Khác...
NGƯỜI ĐĂNG
Bản vẽ
47
Bộ sưu tập
0
Đánh giá (98)
5/5
Ngày tham gia
25/5/2024
Mô tả chi tiết
Hồ sơ thiết kế bản vẽ thi công trường tiểu học Phú Thành A2.
Hồ sơ gồm: trường học, nhà vệ sinh, nhà xe giáo viên, cổng hàng rào, sân đan và hạ tầng kỹ thuật.
Bình luận (0)
Đánh giá (1)
ĐÁNH GIÁ TRUNG BÌNH
5/5
(
1 Nhận xét)
Bản vẽ rất tốt (1)
Bản vẽ tốt (0)
Bản vẽ rất hay (0)
Bản vẽ hay (0)
Bình thường (0)
Bản vẽ rất tốt
Đã mua bản vẽ tại Banvenhadep.vn
Bản vẽ rất tốt và phù hợp để tham khảo