MÃ BẢN VẼ
58038

Trường Tiểu Học An Phước 1 (Điểm Phụ 8.1x21.6m) và Hạng mục phụ

  (1 Nhận xét)     Viết đánh giá        0     0     47

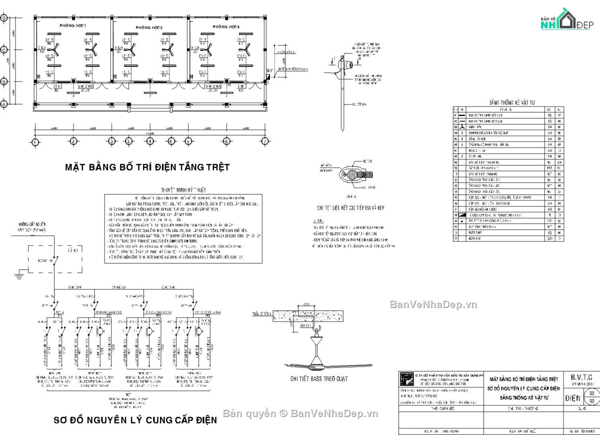
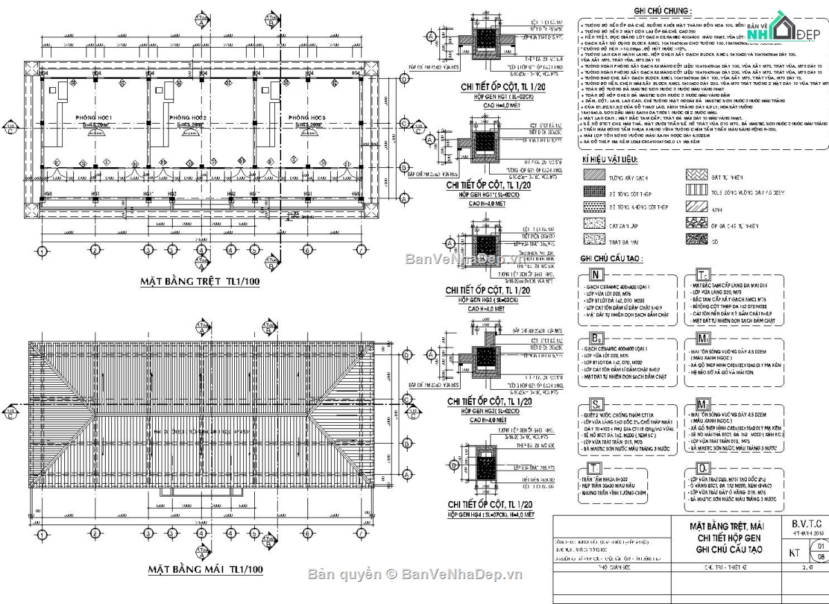
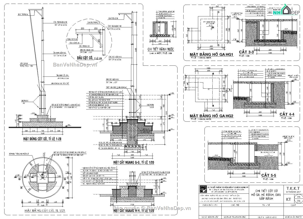
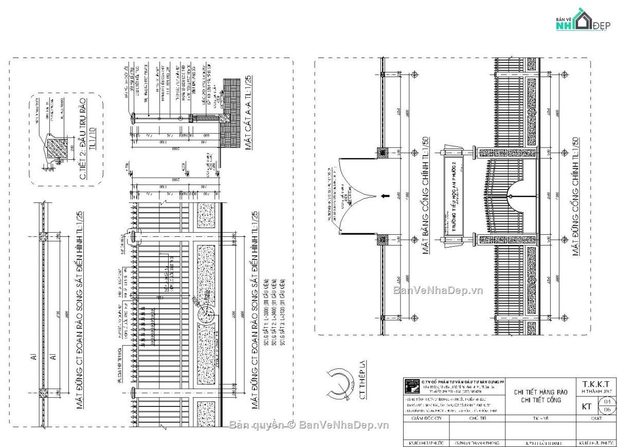
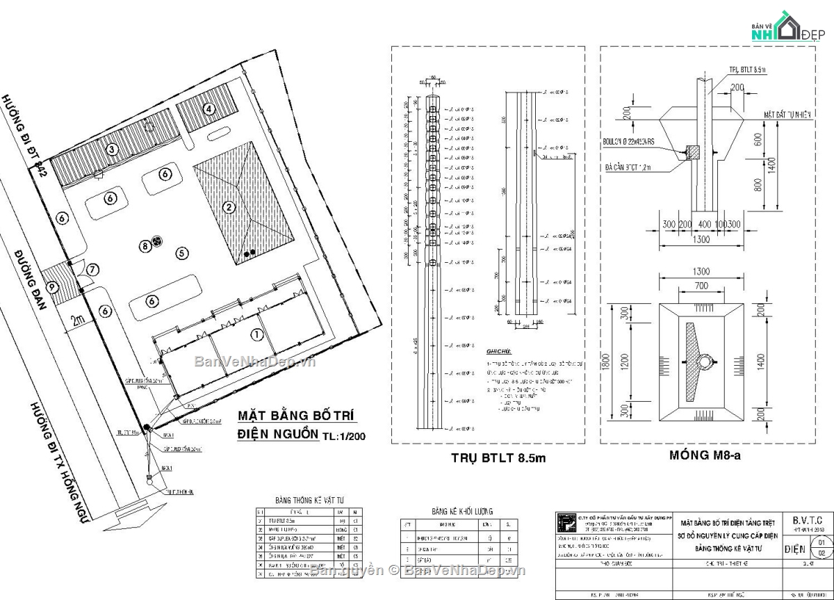
Hồ sơ bản vẽ kiến trúc, kết cấu, hạng mục phụ các công trình của trường TH An Phước: Khối trường học 8.1x21.6m; San lấp mặt bằng, Cổng hàng rào, Nhà vệ sinh.

Ngày đăng: 04/7/2025
File download: 7. Truong TH An Phuoc 1 (Diem Phu 8,1x21,6).rar
Dung lượng file: 5.87 MB
Phong cách: Chưa xác định
Kích thước: Rộng 8,1m, Dài 21,6m, DT 174,96m2
CÔNG CỤ THIẾT KẾ:
Autocad
Sketchup
3D Max
Revit
Khác...
CÁC HẠNG MỤC CỦA BẢN VẼ:
Kiến trúc
Kết cấu
Điện
Nước
PCCC
Phối cảnh
Dự toán
Tài liệu
Khác...

NGƯỜI ĐĂNG
(Hạng vàng)
Xem trang
bản vẽ nhà
Bản vẽ
47
bộ sưu tập bản vẽ nhà
Bộ sưu tập
0
đánh giá mẫu bản vẽ
Đánh giá (98)
5/5
ngày tham gia bản vẽ nhà đẹp
Ngày tham gia
25/5/2024

Mô tả chi tiết

Hồ sơ bản vẽ kiến trúc, kết cấu, hạng mục phụ các công trình của trường TH An Phước: Khối trường học 8.1x21.6m; San lấp mặt bằng, Cổng hàng rào, Nhà vệ sinh.

Bình luận (0)


Đánh giá (1)

ĐÁNH GIÁ TRUNG BÌNH
5/5

(1 Nhận xét)
Bản vẽ rất tốt (1)
Bản vẽ tốt (0)
Bản vẽ rất hay (0)
Bản vẽ hay (0)
Bình thường (0)
Chia sẻ nhận xét về bản vẽ
 Viết nhận xét của bạn
Kỹ sư Phú
Thời gian 14:03
4/7/2025
Bản vẽ rất tốt   
 Đã mua bản vẽ tại Banvenhadep.vn
Bản vẽ rất tốt và phù hợp để tham khảo
HỖ TRỢ TRỰC TUYẾN