MÃ BẢN VẼ
53914

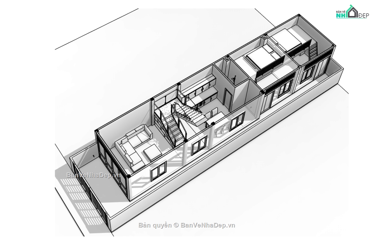
File bản vẽ revit nhà ở phố 3 tầng 5x20m

  (1 Nhận xét)     Viết đánh giá        0     2     122

Bản vẽ revit lên phối cảnh, có thêm một vài mặt bằng nhà phố để anh chị tham khảo

Ngày đăng: 29/3/2025
File download: 5X20.rar
Dung lượng file: 101.7 MB
Phong cách: Hiện đại
Kích thước: Rộng 5m, Dài 20m, DT 100m2
CÔNG CỤ THIẾT KẾ:
Autocad
Sketchup
3D Max
Revit
Khác...
CÁC HẠNG MỤC CỦA BẢN VẼ:
Kiến trúc
Kết cấu
Điện
Nước
PCCC
Phối cảnh
Dự toán
Tài liệu
Khác...

NGƯỜI ĐĂNG
(Hạng vàng)
Xem trang
bản vẽ nhà
Bản vẽ
119
bộ sưu tập bản vẽ nhà
Bộ sưu tập
0
đánh giá mẫu bản vẽ
Đánh giá (373)
5/5
ngày tham gia bản vẽ nhà đẹp
Ngày tham gia
24/10/2024

Mô tả chi tiết

chia sẻ file bản vẽ file phối cảnh bằng revit có lên nội thất các tầng mong anh chị ủng hộ

Bình luận (0)


Đánh giá (1)

ĐÁNH GIÁ TRUNG BÌNH
5/5

(1 Nhận xét)
Bản vẽ rất tốt (1)
Bản vẽ tốt (0)
Bản vẽ rất hay (0)
Bản vẽ hay (0)
Bình thường (0)
Chia sẻ nhận xét về bản vẽ
 Viết nhận xét của bạn
Kts Thành Long
Thời gian 11:40
16/4/2025
Bản vẽ rất tốt   
 Đã đăng bản vẽ này
Bản vẽ thiết tốt thích hợp để tham khảo
HỖ TRỢ TRỰC TUYẾN