MÃ BẢN VẼ
63071

File revit mẫu nhà hiện đại 2 tầng 1 tum 5x15m

  (1 Nhận xét)     Viết đánh giá        0     1     57

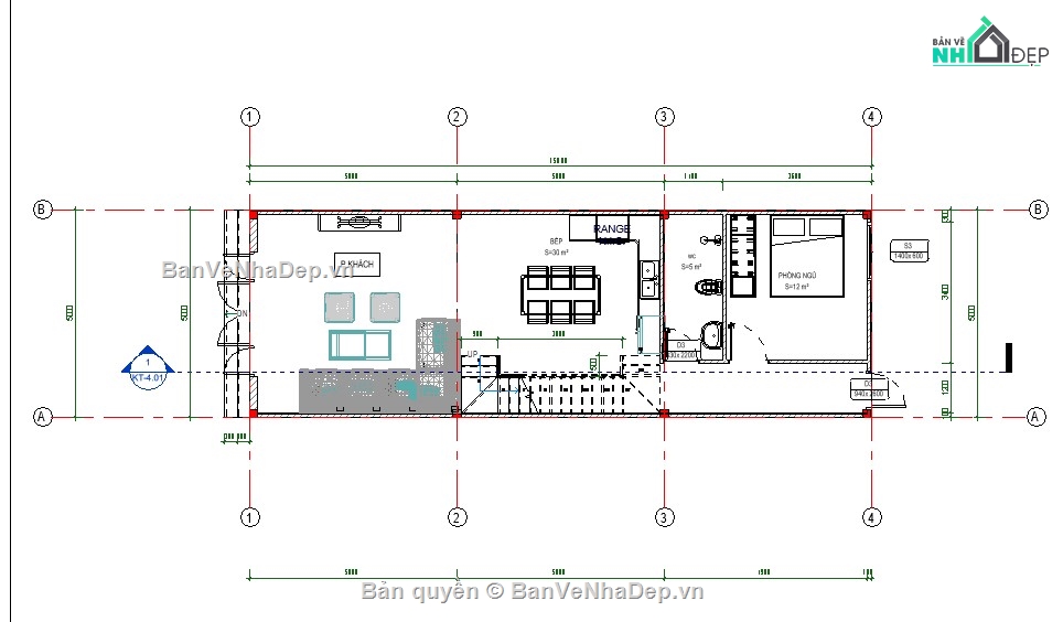
Chia sẻ file revit mẫu nhà phố 2 tầng 1 tum phong cách hiện đại với diện tích 5x15m

Ngày đăng: 07/11/2025
File download: 5x15m 3 tầng.rvt
Dung lượng file: 148 MB
Phong cách: Hiện đại
Kích thước: Rộng 5m, Dài 15m, DT 75m2
CÔNG CỤ THIẾT KẾ:
Autocad
Sketchup
3D Max
Revit
Khác...
CÁC HẠNG MỤC CỦA BẢN VẼ:
Kiến trúc
Kết cấu
Điện
Nước
PCCC
Phối cảnh
Dự toán
Tài liệu
Khác...

NGƯỜI ĐĂNG
(Hạng vàng)
Xem trang
bản vẽ nhà
Bản vẽ
52
bộ sưu tập bản vẽ nhà
Bộ sưu tập
0
đánh giá mẫu bản vẽ
Đánh giá (66)
5/5
ngày tham gia bản vẽ nhà đẹp
Ngày tham gia
2/4/2024

Mô tả chi tiết

Chia sẻ file revit kiến trúc 2024 mẫu nhà phố 2 tầng 1 tum phong cách hiện đại với diện tích 5x15m, 3 phòng ngủ, phòng thờ trên tầng tum, có phòng sinh hoạt chung

Bình luận (0)


Đánh giá (1)

ĐÁNH GIÁ TRUNG BÌNH
5/5

(1 Nhận xét)
Bản vẽ rất tốt (1)
Bản vẽ tốt (0)
Bản vẽ rất hay (0)
Bản vẽ hay (0)
Bình thường (0)
Chia sẻ nhận xét về bản vẽ
 Viết nhận xét của bạn
TungARC
Thời gian 16:43
7/11/2025
Bản vẽ rất tốt   
 Đã đăng bản vẽ này
Bản vẽ rất tốt và phù hợp để tham khảo
HỖ TRỢ TRỰC TUYẾN