MÃ BẢN VẼ
58748

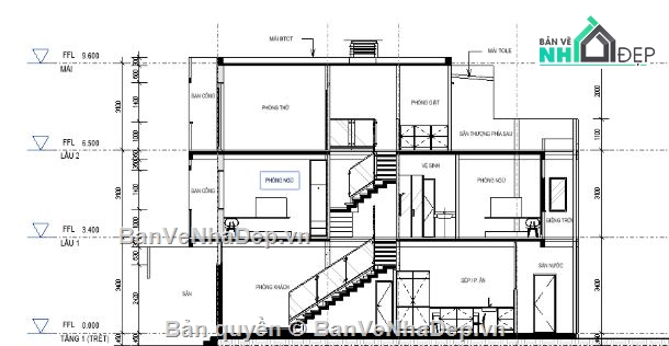
File revit nhà ở 3 tầng kích thước thiết kế 3.2x15.2m

  (1 Nhận xét)     Viết đánh giá        0     0     53

Kiến trúc model revit nhà ở 3 tầng 3.2x15.2m, bản vẽ đầy đủ mẫu công năng hợp lý

Ngày đăng: 12/6/2025
File download: #
Dung lượng file: #
Phong cách: Hiện đại
Kích thước: Rộng 3,2m, Dài 15,2m, DT 48,64m2
CÔNG CỤ THIẾT KẾ:
Autocad
Sketchup
3D Max
Revit
Khác...
CÁC HẠNG MỤC CỦA BẢN VẼ:
Kiến trúc
Kết cấu
Điện
Nước
PCCC
Phối cảnh
Dự toán
Tài liệu
Khác...

NGƯỜI ĐĂNG
(Hạng vàng)
Xem trang
bản vẽ nhà
Bản vẽ
355
bộ sưu tập bản vẽ nhà
Bộ sưu tập
0
đánh giá mẫu bản vẽ
Đánh giá (458)
5/5
ngày tham gia bản vẽ nhà đẹp
Ngày tham gia
9/6/2025

Mô tả chi tiết

revit kiến trúc nhà ở 3 tầng kích thước thiết kế 3.2×15.2m. model nặng 153mb

Bình luận (0)


Đánh giá (1)

ĐÁNH GIÁ TRUNG BÌNH
5/5

(1 Nhận xét)
Bản vẽ rất tốt (1)
Bản vẽ tốt (0)
Bản vẽ rất hay (0)
Bản vẽ hay (0)
Bình thường (0)
Chia sẻ nhận xét về bản vẽ
 Viết nhận xét của bạn
Lan Chi Arc
Thời gian 14:10
5/7/2025
Bản vẽ rất tốt   
 Đã đăng bản vẽ này
Bản vẽ thiết tốt thích hợp để tham khảo
HỖ TRỢ TRỰC TUYẾN