MÃ BẢN VẼ
18317
File revit nhà phố 3 tầng 5x9.2m đầy đủ bản vẽ kiến trúc
(
1 Nhận xét)
Viết đánh giá
Bình luận: 0
Download: 0
Lượt xem: 798
Mẫu revit thiết kế nhà phố 3 tầng kích thước 5x9.2m khá chi tiết, các bạn đang làm revit có thể tải bản vẽ mở trên phiên bản 2020 trở lên.
Ngày đăng: 01/6/2022
File download:
NP 3 TANG 5X9.2M.rar
Dung lượng file:
577 MB
Phong cách: Hiện đại
Kích thước: Rộng 5m, Dài 9,2m, DT 46m2
CÔNG CỤ THIẾT KẾ:

Autocad

Sketchup

3D Max

Revit

Khác...
CÁC HẠNG MỤC CỦA BẢN VẼ:

Kiến trúc

Kết cấu

Điện

Nước

PCCC

Phối cảnh

Dự toán

Tài liệu

Khác...
NGƯỜI ĐĂNG
Bản vẽ
285
Bộ sưu tập
0
Đánh giá (301)
4/5
Ngày tham gia
17/6/2018
Mô tả chi tiết
Revit nhà phố 3 tầng kích thước 5x9.2m
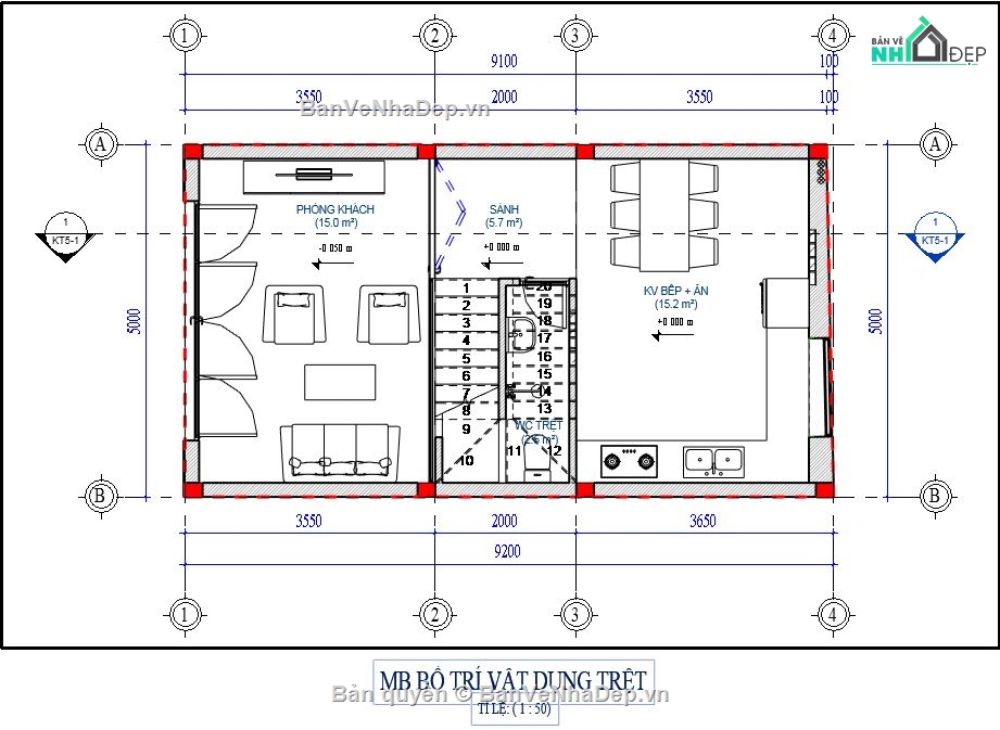
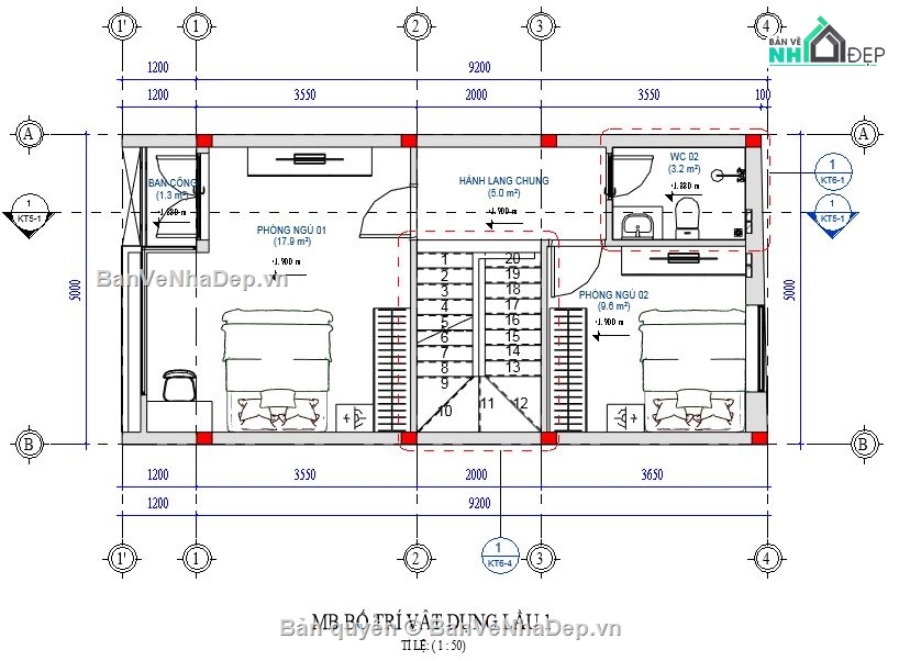
Bố trí vật dụng công năng các tầng
-
Tầng 1 gồm phòng khách, Cầu thang, bếp +ăn, 1wc
-
Tầng 2 gồm 2 ngủ, 1 wc
-
Tầng 3 gồm phòng Thờ, 1 ngủ,
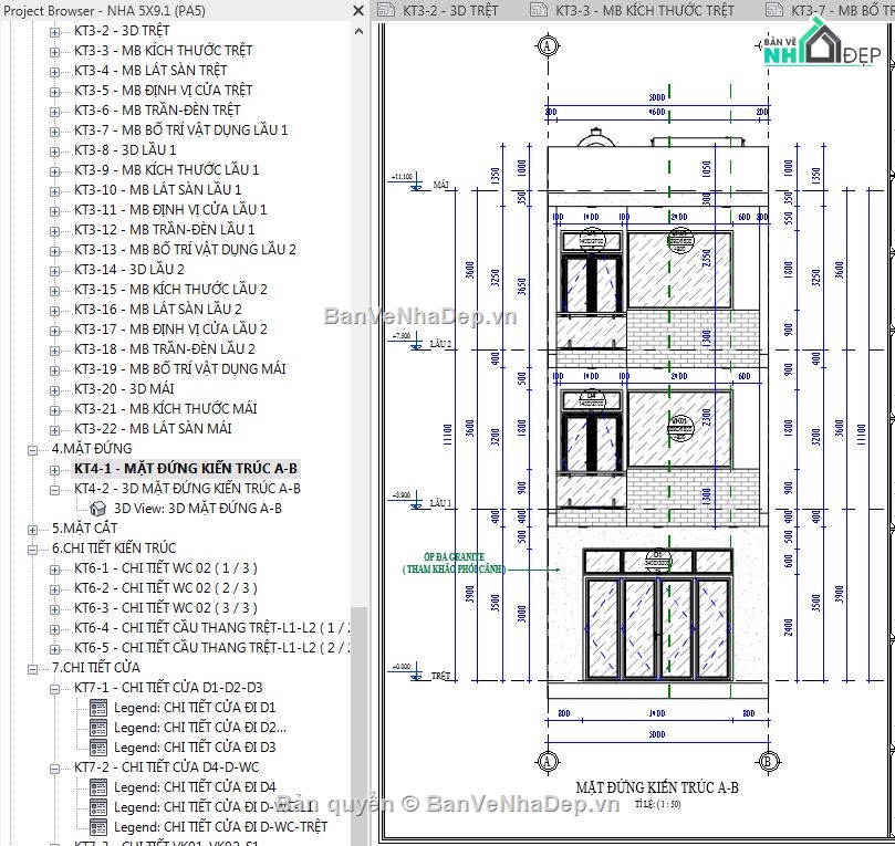
Danh mục bản vẽ: Bìa, Phối cảnh 1,2,3, mb bố trí vật dụng các tầng, 3D các tầng, MB kicshn thước các tầng, mb lát sàn, mb định vị cửa, bn trần đèn, mb kích thước mái, Mặt đứng KT AB, 3D mặt đứng ktr AB, Mặt cắt, 3D mặt cắt kiến trúc 1-2, Chi tiết wc (1,2,3) chi tiết cầu tàng (1,2), chi tiết cửa, chi tiết vách kính,...
Bình luận (0)
Đánh giá (1)
ĐÁNH GIÁ TRUNG BÌNH
5/5
(
1 Nhận xét)
Bản vẽ rất tốt (1)
Bản vẽ tốt (0)
Bản vẽ rất hay (0)
Bản vẽ hay (0)
Bình thường (0)
Bản vẽ rất tốt
Đã mua bản vẽ tại Banvenhadep.vn
Bản vẽ rất tốt và phù hợp để tham khảo