MÃ BẢN VẼ
59812

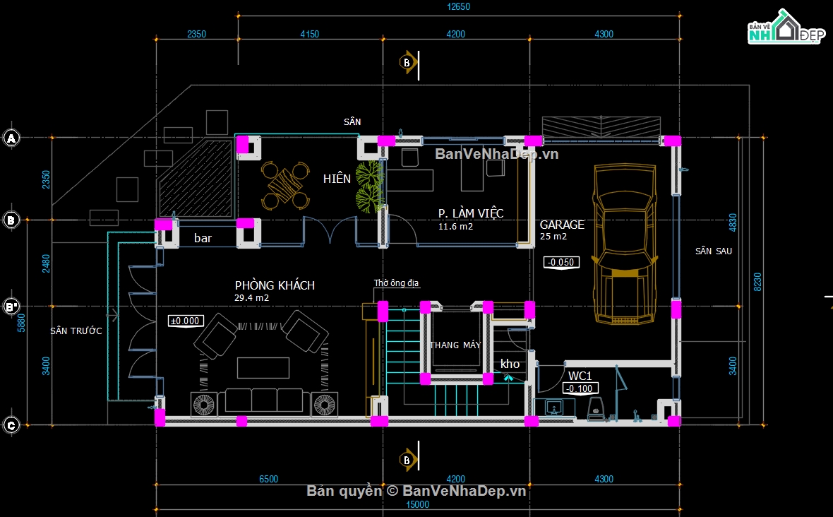
Full bản vẽ file cad nhà dân 2 mặt tiền cao cấp

  (1 Nhận xét)     Viết đánh giá        0     0     58

Full bản vẽ thiết kế nhà dân 2 mặt tiền, file cad nhà dân 2 mặt tiền lạ hiện đại, gồm file triển khai - file phối cảnh nội thất

Ngày đăng: 10/7/2025
File download: Nhà phố 2 mặt tiền.rar
Dung lượng file: 148 MB
Phong cách: Hiện đại
Kích thước: ...
CÔNG CỤ THIẾT KẾ:
Autocad
Sketchup
3D Max
Revit
Khác...
CÁC HẠNG MỤC CỦA BẢN VẼ:
Kiến trúc
Kết cấu
Điện
Nước
PCCC
Phối cảnh
Dự toán
Tài liệu
Khác...

NGƯỜI ĐĂNG
(Hạng vàng)
Xem trang
bản vẽ nhà
Bản vẽ
1
bộ sưu tập bản vẽ nhà
Bộ sưu tập
0
đánh giá mẫu bản vẽ
Đánh giá (1)
5/5
ngày tham gia bản vẽ nhà đẹp
Ngày tham gia
25/7/2019

Mô tả chi tiết

Full bản vẽ file cad nhà dân 2 mặt tiền , file cad triển khai gồm các bộ môn, có cả file sketchup

- kiến trúc 

- kết cấu

- điện nước - máy móc lạnh 

- file su ngoại thất

- nội thất 

Bình luận (0)


Đánh giá (1)

ĐÁNH GIÁ TRUNG BÌNH
5/5

(1 Nhận xét)
Bản vẽ rất tốt (1)
Bản vẽ tốt (0)
Bản vẽ rất hay (0)
Bản vẽ hay (0)
Bình thường (0)
Chia sẻ nhận xét về bản vẽ
 Viết nhận xét của bạn
Nguyên
Thời gian 23:17
10/8/2025
Bản vẽ rất tốt   
 Đã đăng bản vẽ này
Bản vẽ thiết tốt thích hợp để tham khảo
HỖ TRỢ TRỰC TUYẾN